BR
Heather Walk, Ivybridge, Devon
By Bradleys
£ 220,000
Bradleys says ..
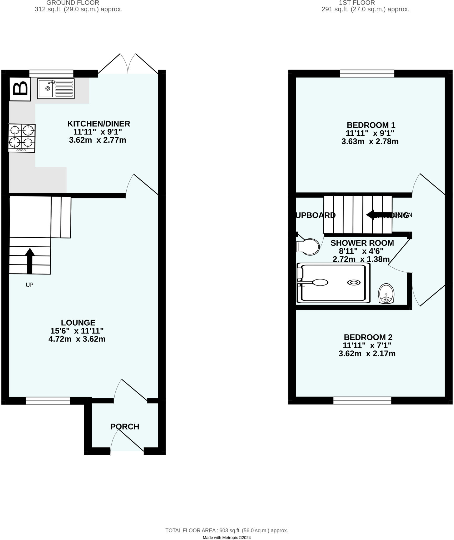
Modern terraced house located in the heart of a bustling town. This impressive property boasts 2 bedrooms, a private garden, and allocated parking space. With contemporary design features and convenient amenities nearby, this home offers the perfect blend of comfort and convenience. Ideal for tho...
- Bedrooms
- 2
- Bathrooms
- 1
- Sqft (est)
- 525.60
The heatmap indicates the level of crime in the area. The color of the heatmap indicates the crime severity and recency.
Metrics Year-on-Year
- Average area value
- 216,225.00 £Decreased by 4.32 %
- Est sale value
- 137,707.20 £Increased by 37.89 %
- Average area rental value
- 863.00 £/moDecreased by 37.87 %
- Est letting value
- 525.60 £/moUnchanged by 0.00 %
- Est rental Yield
- 4.79 %Decreased by 35.09 %
- Crime Rate
- 5.00 %Unchanged by 0.00 %
from 225,977.00 £
from 99,864.00 £
from 1,389.00 £/mo
from 525.60 £/mo
from 7.38 %
from 5.00 %
Agent Activity
Bradleys created the listing.
Nearby Schools
| Name | Type | Ofsted | Distance |
|---|---|---|---|
| Seamoor Ivybridge Area Children'S Centre | Children's Centre | 0.50 KM | |
| Ivybridge Community College | Academy Converter | Good | 0.62 KM |
| Stowford School | Academy Converter | Good | 0.64 KM |
| The Erme Primary School | Community School | Good | 0.82 KM |
| Manor Primary School, Ivybridge | Academy Converter | 1.17 KM |
Images
Nearby Streets
| Name | Average Price | Average Sqft | Distance |
|---|---|---|---|
| Brook Road | £ 239,800 | 0 | 0.00 KM |
| Canterbury Close | £ 325,000 | 0 | 0.00 KM |
| Woodside Close | £ 0 | 0 | 0.00 KM |
| Marshall Drive | £ 0 | 0 | 0.00 KM |
| Glanvilles Mill | £ 0 | 0 | 0.00 KM |
Nearby Transport
| Name | NLC | TLC | Distance |
|---|---|---|---|
| Ivybridge | 3555 | IVY | 1.42 KM |
Nearby Listings
| Address | Price | Type | Score | Distance |
|---|---|---|---|---|
| Heather Walk, Ivybridge, Devon | £ 220,000 | BUY | Unknown | 0.00 KM |
| Heather Walk, Ivybridge, Devon | £ 300,000 | BUY | 7 / 10 | 0.04 KM |
| Gorse Way, Ivybridge | £ 465,000 | BUY | 7 / 10 | 0.10 KM |
| Yeolland Lane, Ivybridge | £ 190,000 | BUY | 7 / 10 | 0.12 KM |
| Yeolland Lane, Ivybridge | £ 145,000 | BUY | 5 / 10 | 0.14 KM |
Nearby Properties
| Address | Price | Distance |
|---|---|---|
| 35 Heather Walk | £ 179,000 | 0.04 KM |
| 41 Heather Walk | £ 207,500 | 0.04 KM |
| 20 Heather Walk | £ 135,000 | 0.04 KM |
| 19 Heather Walk | £ 184,000 | 0.04 KM |
| 45 Heather Walk | £ 179,000 | 0.04 KM |