Blackberry Close, Shepton Mallet, BA4
By Keller Williams
£ 475,000
Reviews
3 out of 5 stars
Keller Williams says ..
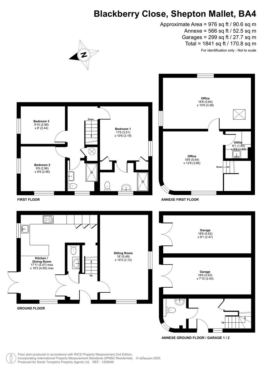
An attractive three-bedroom attached home with modern family living and rare home-working opportunity. A detached self-contained annexe provides a versatile space, perfect for combining home and business or creative pursuits
Property Oracle says ..
This is a semi-detached property located on Blackberry Close, Shepton Mallet. It features three bedrooms and two bathrooms. The property appears to be in good condition, with a modern kitchen and well-maintained bathrooms. It also benefits from a garden and off-street parking. The location is convenient, with nearby schools and transportation links. However, the price seems slightly above the average for the area.
Therefore, we give this property 6 / 10. *Disclaimer: This is our option and does constitute a recommendation or financial advice. Do your own research. *
- Price
- 5
- Condition
- 8
- Location
- 7
- Land
- 6
- Bedrooms
- 3
- Bathrooms
- 2
- Sqft (est)
- 132.53
The heatmap indicates the level of crime in the area. The color of the heatmap indicates the crime severity and recency.
Metrics Year-on-Year
- Average area value
- 314,986.00 £Increased by 12.98 %
- Est sale value
- 43,204.78 £Increased by 36.97 %
- Average area rental value
- 979.00 £/moDecreased by 9.35 %
- Est letting value
- 132.53 £/mo
- Est rental Yield
- 3.73 %Decreased by 19.78 %
- Crime Rate
- 8.00 %Unchanged by 0.00 %
Agent Activity
Keller Williams created the listing.
Nearby Schools
| Name | Type | Ofsted | Distance |
|---|---|---|---|
| Whitstone | Academy Converter | Good | 0.67 KM |
| St Paul'S Church Of England Vc Junior School | Voluntary Controlled School | Good | 0.90 KM |
| Mendip South East | Children's Centre | 1.20 KM | |
| Shepton Mallet Community Infants' School & Nursery | Community School | Good | 1.23 KM |
| Bowlish Infant School | Community School | Good | 2.30 KM |
Images
Nearby Streets
| Name | Average Price | Average Sqft | Distance |
|---|---|---|---|
| Blackberry Close | £ 0 | 0 | 0.00 KM |
| Millennium Way | £ 0 | 0 | 0.00 KM |
| Weavers Close | £ 0 | 0 | 0.00 KM |
| Regal Road | £ 0 | 0 | 0.00 KM |
| Douglas Drive | £ 0 | 0 | 0.00 KM |
Nearby Transport
| Name | NLC | TLC | Distance |
|---|---|---|---|
| Castle Cary | 5703 | CLC | 9.48 KM |
Nearby Listings
| Address | Price | Type | Score | Distance |
|---|---|---|---|---|
| Blackberry Close, Shepton Mallet, BA4 | £ 475,000 | BUY | 6 / 10 | 0.00 KM |
| Central Shepton, backing onto charming farmland | £ 385,000 | BUY | 7 / 10 | 0.03 KM |
| Blackberry Close,, Shepton Mallet, BA4 | £ 480,000 | BUY | 7 / 10 | 0.03 KM |
| Blackberry Close, Shepton Mallet | £ 395,000 | BUY | 8 / 10 | 0.04 KM |
| Starling Way, Shepton Mallet, BA4 | £ 225,000 | BUY | 6 / 10 | 0.10 KM |
Nearby Properties
| Address | Price | Distance |
|---|---|---|
| 4 Blackberry Close | £ 236,000 | 0.03 KM |
| 3 Blackberry Close | £ 155,950 | 0.03 KM |
| 1 Blackberry Close | £ 196,000 | 0.03 KM |
| 3 Garden Ground | £ 87,000 | 0.11 KM |
| 2 Garden Ground | £ 152,000 | 0.11 KM |