Constantine, Versatile and spacious home
By Mather Partnership
£ 685,000
Reviews
3 out of 5 stars
Mather Partnership says ..
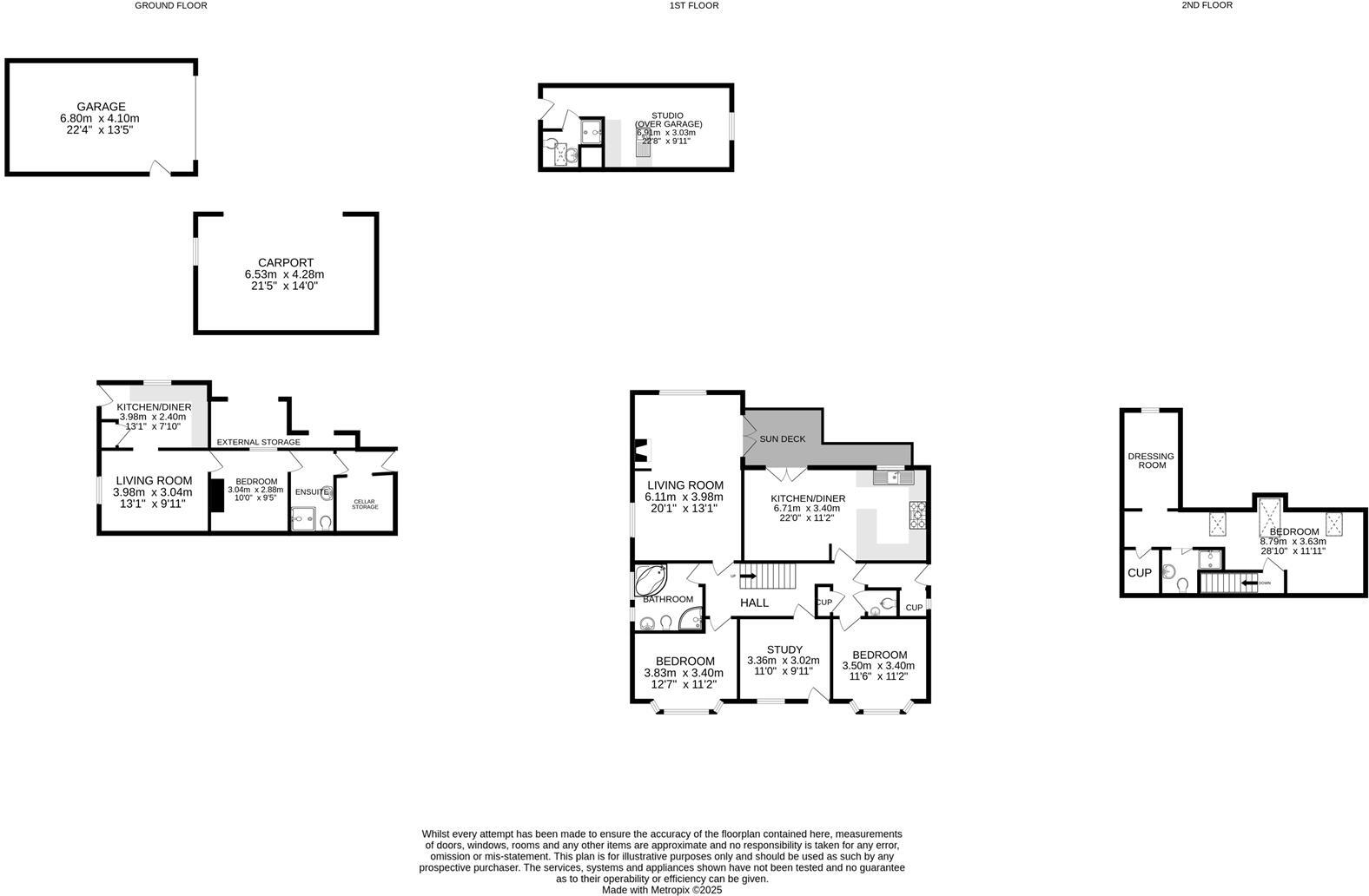
This versatile and spacious detached property offers exceptional accommodation, including a three bedroom main house, a self-contained one bedroom flat and additional one bedroom accommodation situated above the garage, ideal for multi generational living, guests, or rental opportunities.
Property Oracle says ..
This is a detached property located on Brillwater Road in Constantine, Cornwall. The property has 4 bedrooms and 4 bathrooms. The property is in good condition and has a well-maintained garden. The property is located close to local amenities, including a primary school and train station. The property is listed for sale at £685,000, which is slightly above the average price for properties in the area.
Therefore, we give this property 7 / 10. *Disclaimer: This is our option and does constitute a recommendation or financial advice. Do your own research. *
- Price
- 6
- Condition
- 8
- Location
- 7
- Land
- 7
- Bedrooms
- 4
- Bathrooms
- 4
The heatmap indicates the level of crime in the area. The color of the heatmap indicates the crime severity and recency.
Metrics Year-on-Year
- Average area value
- 380,500.00 £Decreased by 7.95 %
- Average area rental value
- 1,550.00 £/moIncreased by 31.91 %
- Est rental Yield
- 4.89 %Increased by 43.40 %
- Crime Rate
- 33.00 %Unchanged by 0.00 %
Agent Activity
Mather Partnership created the listing.
Nearby Schools
| Name | Type | Ofsted | Distance |
|---|---|---|---|
| Constantine Primary School | Academy Converter | Good | 0.13 KM |
| Halwin School | Academy Converter | 6.17 KM | |
| Garras Community Primary School | Academy Converter | Good | 6.44 KM |
| Boskenwyn Community Primary School | Foundation School | Good | 6.63 KM |
| Manaccan Primary School | Academy Converter | Good | 6.96 KM |
Images
Nearby Streets
| Name | Average Price | Average Sqft | Distance |
|---|---|---|---|
| Trebarvah Court | £ 615,000 | 0 | 0.00 KM |
| Clinton Road | £ 0 | 0 | 0.00 KM |
| Trewardreva Mill Cottages | £ 0 | 0 | 0.00 KM |
| Meadow Bank | £ 495,000 | 0 | 0.00 KM |
Nearby Transport
| Name | NLC | TLC | Distance |
|---|---|---|---|
| Penryn (Cornwall) | 3525 | PYN | 9.44 KM |
Nearby Listings
| Address | Price | Type | Score | Distance |
|---|---|---|---|---|
| Constantine, Versatile and spacious home | £ 685,000 | BUY | 7 / 10 | 0.00 KM |
| Brillwater Road - Constantine | £ 600,000 | BUY | Unknown | 0.05 KM |
| Bridge, Constantine | £ 895,000 | BUY | 7 / 10 | 0.19 KM |
| Trebarvah Road, Constantine, Falmouth | £ 125,000 | BUY | Unknown | 0.23 KM |
| Constantine, Two bed home in village setting | £ 170,000 | BUY | 6 / 10 | 0.38 KM |
Nearby Properties
| Address | Price | Distance |
|---|---|---|
| 18 Brillwater Road | £ 250,000 | 0.05 KM |
| 28 Brillwater Road | £ 280,000 | 0.05 KM |
| 24 Brillwater Road | £ 213,000 | 0.08 KM |
| 5 Brillwater Road | £ 280,000 | 0.08 KM |
| 11a Brillwater Road | £ 270,000 | 0.08 KM |