Stirling Road, Airdrie, Lanarkshire, ML6
By DM Hall
£ 265,000
Reviews
2 out of 5 stars
DM Hall says ..
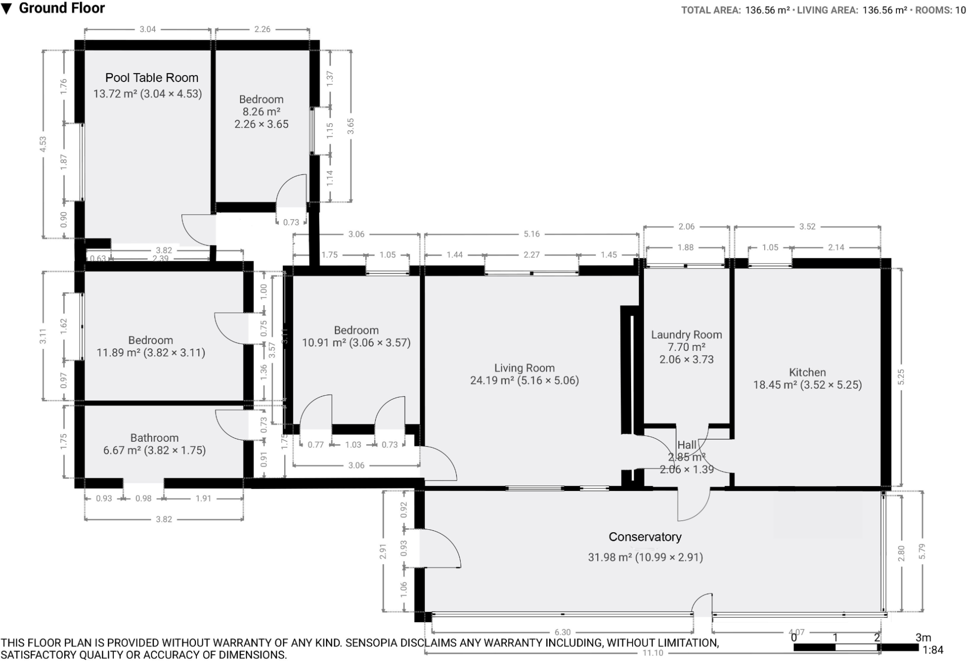
LOT 1 ONLY: A former traditional livestock farm with a farmhouse, a range of traditional outbuildings and land. Lotted sale, with additional land available.
Property Oracle says ..
Therefore, we give this property 5 / 10. *Disclaimer: This is our option and does constitute a recommendation or financial advice. Do your own research. *
- Price
- 4
- Condition
- 3
- Location
- 6
- Land
- 9
- Bedrooms
- 4
- Bathrooms
- 1
The heatmap indicates the level of crime in the area. The color of the heatmap indicates the crime severity and recency.
Metrics Year-on-Year
- Average area value
- 158,832.00 £Decreased by 18.12 %
- Average area rental value
- 1,157.00 £/moIncreased by 22.82 %
- Est rental Yield
- 8.74 %Increased by 49.91 %
- Crime Rate
- 0.00 %
from 193,971.00 £
from 942.00 £/mo
from 5.83 %
from 0.00 %
Agent Activity
DM Hall created the listing.
Images
Nearby Streets
| Name | Average Price | Average Sqft | Distance |
|---|---|---|---|
| Stirling Road | £ 233,999 | 0 | 0.00 KM |
| A73 | £ 275,000 | 0 | 0.00 KM |
| Eden Court | £ 115,000 | 0 | 0.00 KM |
| Mill Road | £ 327,000 | 0 | 0.00 KM |
| Dunnet Avenue | £ 92,498 | 0 | 0.00 KM |
Nearby Transport
| Name | NLC | TLC | Distance |
|---|---|---|---|
| Airdrie | 9759 | ADR | 3.87 KM |
| Greenfaulds | 9725 | GRL | 4.49 KM |
| Drumgelloch | 9757 | DRU | 4.60 KM |
| Cumbernauld | 9721 | CUB | 4.88 KM |
| Coatdyke | 9762 | COA | 4.91 KM |
Nearby Listings
| Address | Price | Type | Score | Distance |
|---|---|---|---|---|
| Stirling Road, Airdrie, Lanarkshire, ML6 | £ 265,000 | BUY | 5 / 10 | 0.00 KM |
| Stirling Road, Stand, Airdrie, ML6 | £ 447,995 | BUY | 6 / 10 | 0.25 KM |
| Eden Court, Glenmavis ML6 | £ 119,999 | BUY | 6 / 10 | 1.19 KM |
| Eden Court, Airdrie, ML6 | £ 115,000 | BUY | 6 / 10 | 1.21 KM |
| Dunnet Avenue, Glenmavis, Airdrie, ML6 | £ 135,000 | BUY | 6 / 10 | 1.23 KM |