Keighley Road, Colne, BB8
By Duckworths Estate Agents
£ 325,000
Reviews
3 out of 5 stars
Duckworths Estate Agents says ..
A substantial five bedroom family home in immaculate condition and offered with no onward chain.
Property Oracle says ..
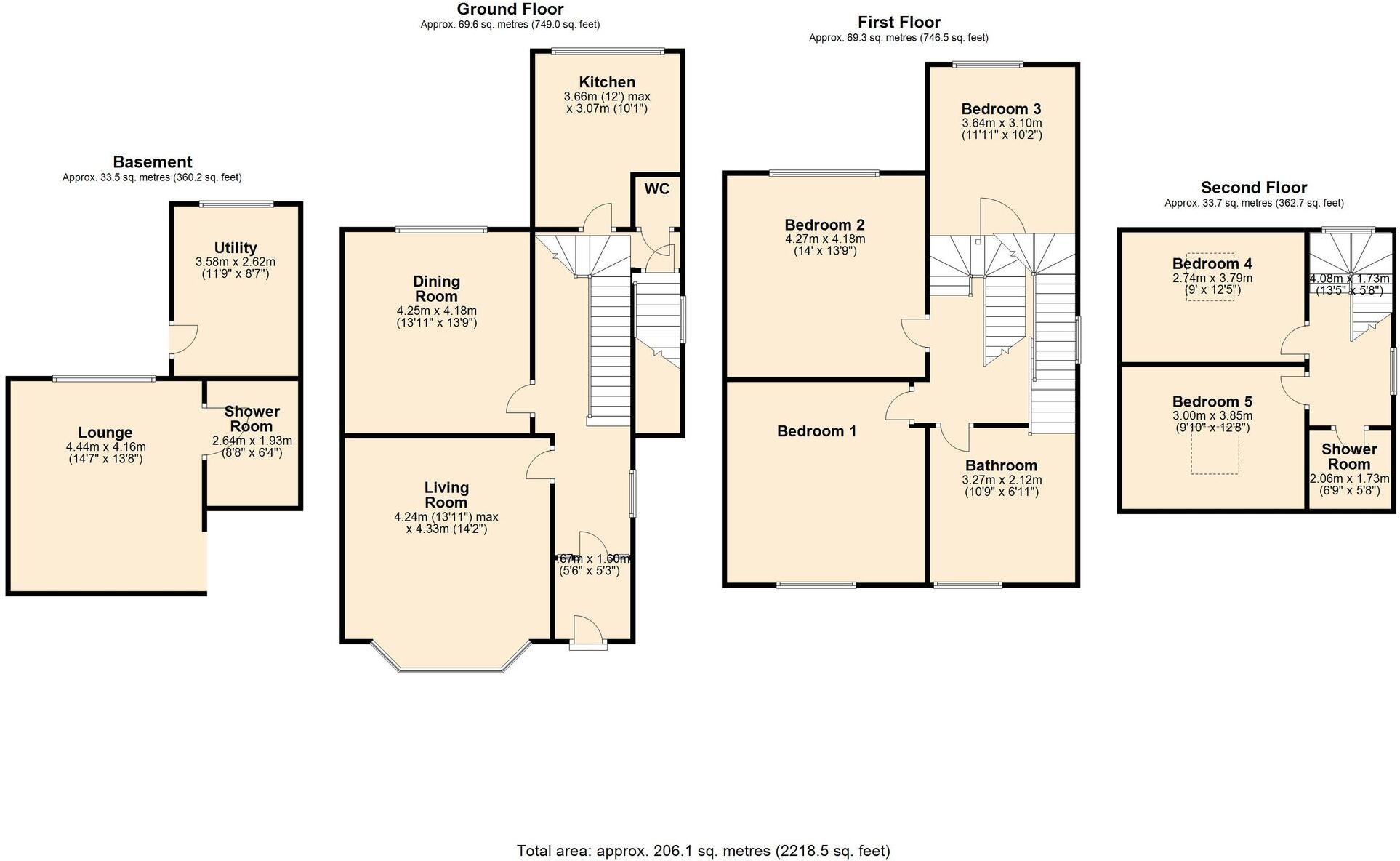
The property is located in Colne, Lancashire, a town in the Pendle district of North West England. The area has a mix of housing types, with average prices significantly lower than the list price of this property. The proximity to several schools, including Park Primary School and Colne Park High School, both within a kilometer, is a positive factor for families. Train stations at Colne, Nelson and Brierfield are within reasonable commuting distance. Based on the provided images, the property appears to be a period property, possibly Victorian or Edwardian in style. It shows evidence of recent renovations, particularly in the kitchen and some bathrooms, while retaining many original features. The overall condition seems good, though some aspects may require further attention. The property benefits from a relatively small garden area. Considering the list price of £325,000, the average house price in the area is considerably lower at £169,984. However, this property is larger (471.40 sqft compared to the average 1100 sqft) and has more bedrooms (5) and bathrooms (3). The average price per square foot in the area is £154. While the property’s list price is substantially higher than the average, the larger size, additional bedrooms and bathrooms, and recent renovations may justify a higher price point. However, a detailed comparison with similar recently sold properties in the immediate vicinity would be needed to definitively assess the price’s reasonableness. The lack of sqft information for nearby listings makes a precise comparison difficult. The presence of a small garden adds value.
Therefore, we give this property 6 / 10. *Disclaimer: This is our option and does constitute a recommendation or financial advice. Do your own research. *
- Price
- 6
- Condition
- 8
- Location
- 7
- Land
- 4
- Bedrooms
- 5
- Bathrooms
- 3
- Sqft (est)
- 471.40
- Lot (est)
- 2,218.50
The heatmap indicates the level of crime in the area. The color of the heatmap indicates the crime severity and recency.
Metrics Year-on-Year
- Average area value
- 190,541.00 £Increased by 16.43 %
- Est sale value
- 92,394.40 £Decreased by 18.67 %
- Average area rental value
- 580.00 £/moDecreased by 7.94 %
- Est letting value
- 0.00 £/mo
- Est rental Yield
- 3.65 %Decreased by 21.00 %
- Crime Rate
- 9.00 %Unchanged by 0.00 %
Agent Activity
Duckworths Estate Agents created the listing.
Nearby Schools
| Name | Type | Ofsted | Distance |
|---|---|---|---|
| Park Primary School | Community School | Good | 0.60 KM |
| Colne Park High School | Academy Converter | 0.64 KM | |
| Newtown Nursery School | Local Authority Nursery School | Good | 1.05 KM |
| Colne Christ Church Church Of England Voluntary Aided Primary School | Voluntary Aided School | Good | 1.22 KM |
| West Street Community Primary School | Community School | Good | 1.53 KM |
Images
Nearby Streets
| Name | Average Price | Average Sqft | Distance |
|---|---|---|---|
| Derwent Close | £ 0 | 0 | 0.00 KM |
| Lilac Street | £ 0 | 0 | 0.00 KM |
| Bath Street | £ 70,000 | 0 | 0.00 KM |
| Matthew Close | £ 0 | 0 | 0.00 KM |
| Brownhill Lane | £ 875,000 | 0 | 0.00 KM |
Nearby Transport
| Name | NLC | TLC | Distance |
|---|---|---|---|
| Colne | 2562 | CNE | 3.16 KM |
| Nelson | 2565 | NEL | 7.16 KM |
| Brierfield | 2554 | BRF | 9.95 KM |
Nearby Listings
| Address | Price | Type | Score | Distance |
|---|---|---|---|---|
| Keighley Road, Colne, BB8 | £ 325,000 | BUY | 6 / 10 | 0.00 KM |
| Claremont Street, Colne | £ 149,950 | BUY | 6 / 10 | 0.04 KM |
| Keighley Road, Colne, BB8 | £ 219,950 | BUY | 7 / 10 | 0.04 KM |
| Claremont Street, Colne | £ 160,000 | BUY | 6 / 10 | 0.07 KM |
| Claremont Street, Colne | £ 392,500 | BUY | 7 / 10 | 0.07 KM |
Nearby Properties
| Address | Price | Distance |
|---|---|---|
| 154 Keighley Road | £ 240,000 | 0.05 KM |
| 164 Keighley Road | £ 177,500 | 0.05 KM |
| 130 Keighley Road | £ 250,000 | 0.05 KM |
| 122 Keighley Road | £ 239,950 | 0.05 KM |
| 156 Keighley Road | £ 185,000 | 0.05 KM |