Dorset Avenue, High Crompton, Oldham
By Habitat
£ 230,000
Reviews
3 out of 5 stars
Habitat says ..
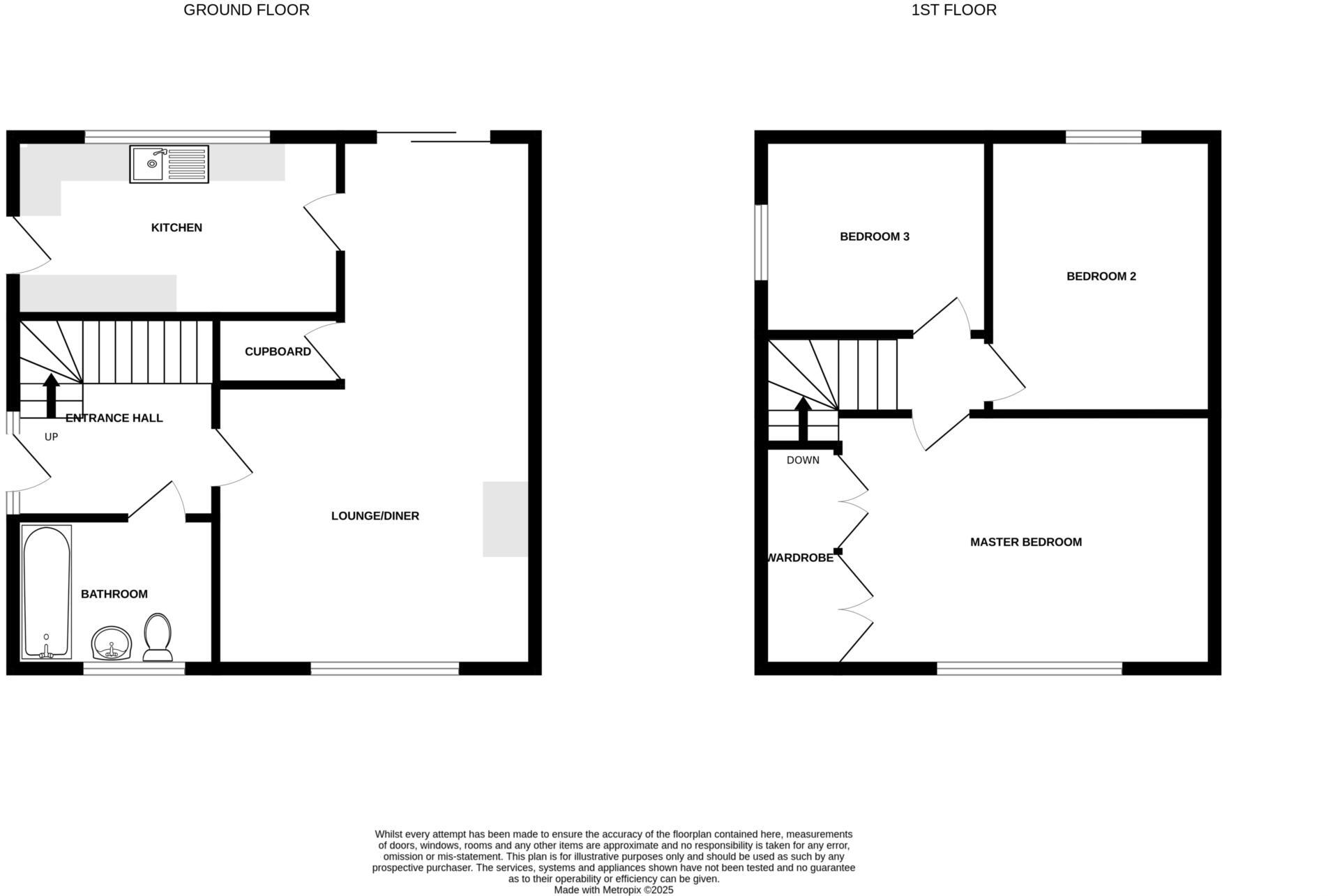
A three bedroom SEMI DETACHED PROPERTY in High Crompton, offered with NO CHAIN!
Property Oracle says ..
This three-bedroom semi-detached house in High Crompton, Oldham is listed at £230,000. The property benefits from a good-sized garden and is conveniently located near several schools and train stations. However, the property is in need of some modernisation and updating, which is reflected in the lower price per square foot compared to the area average. The average price per sqft in the area is £264, while this property is significantly less. This suggests that the asking price may be reasonable considering the required renovations.
Therefore, we give this property 6 / 10. *Disclaimer: This is our option and does constitute a recommendation or financial advice. Do your own research. *
- Price
- 7
- Condition
- 6
- Location
- 7
- Land
- 7
- Bedrooms
- 3
- Bathrooms
- 1
- Sqft (est)
- 780.00
The heatmap indicates the level of crime in the area. The color of the heatmap indicates the crime severity and recency.
Metrics Year-on-Year
- Average area value
- 196,030.00 £Decreased by 11.53 %
- Est sale value
- 205,920.00 £Increased by 15.79 %
- Average area rental value
- 806.00 £/moDecreased by 16.99 %
- Est letting value
- 780.00 £/moUnchanged by 0.00 %
- Est rental Yield
- 4.93 %Decreased by 6.27 %
- Crime Rate
- 0.00 %
Agent Activity
Habitat created the listing.
Nearby Schools
| Name | Type | Ofsted | Distance |
|---|---|---|---|
| The Crompton House Church Of England Academy | Academy Converter | Good | 0.51 KM |
| St Mary'S Cofe Primary School High Crompton | Voluntary Aided School | Good | 0.58 KM |
| Crompton Primary School | Community School | Good | 0.83 KM |
| Royton Hall Primary School | Community School | Good | 1.26 KM |
| Royton Children'S Centre | Children's Centre | 1.40 KM |
Images
Nearby Streets
| Name | Average Price | Average Sqft | Distance |
|---|---|---|---|
| Hereford Close | £ 229,950 | 0 | 0.00 KM |
| Denbigh Drive | £ 0 | 0 | 0.00 KM |
| Astley Close | £ 0 | 0 | 0.00 KM |
| Salisbury Street | £ 0 | 0 | 0.00 KM |
| The Orchards | £ 325,000 | 0 | 0.00 KM |
Nearby Transport
| Name | NLC | TLC | Distance |
|---|---|---|---|
| Rochdale | 2924 | RCD | 5.84 KM |
| Smithy Bridge | 2660 | SMB | 6.08 KM |
| Mills Hill (Manchester) | 2920 | MIH | 7.31 KM |
| Littleborough | 2661 | LTL | 7.40 KM |
| Castleton (Manchester) | 2919 | CAS | 7.54 KM |
Nearby Listings
| Address | Price | Type | Score | Distance |
|---|---|---|---|---|
| Dorset Avenue, High Crompton, Oldham | £ 230,000 | BUY | 6 / 10 | 0.00 KM |
| Hereford Close, High Crompton, Shaw, Oldham, OL2 | £ 229,950 | BUY | Unknown | 0.05 KM |
| 6 Devon Close, Shaw, Oldham, OL2 7EP | £ 255,000 | BUY | 5 / 10 | 0.13 KM |
| Warwick Close, High Crompton, Oldham, Greater Manchester, OL2 | £ 270,000 | BUY | 6 / 10 | 0.14 KM |
| Dorset Avenue, High Crompton | £ 325,000 | BUY | 7 / 10 | 0.18 KM |
Nearby Properties
| Address | Price | Distance |
|---|---|---|
| 21 Dorset Avenue | £ 186,000 | 0.01 KM |
| 5 Dorset Avenue | £ 191,000 | 0.01 KM |
| 23 Dorset Avenue | £ 145,000 | 0.01 KM |
| 25 Dorset Avenue | £ 135,000 | 0.01 KM |
| 53 Dorset Avenue | £ 164,950 | 0.01 KM |