Pellew Way, Teignmouth, TQ14
By Fraser & Wheeler
£ 340,000
Reviews
4 out of 5 stars
Fraser & Wheeler says ..
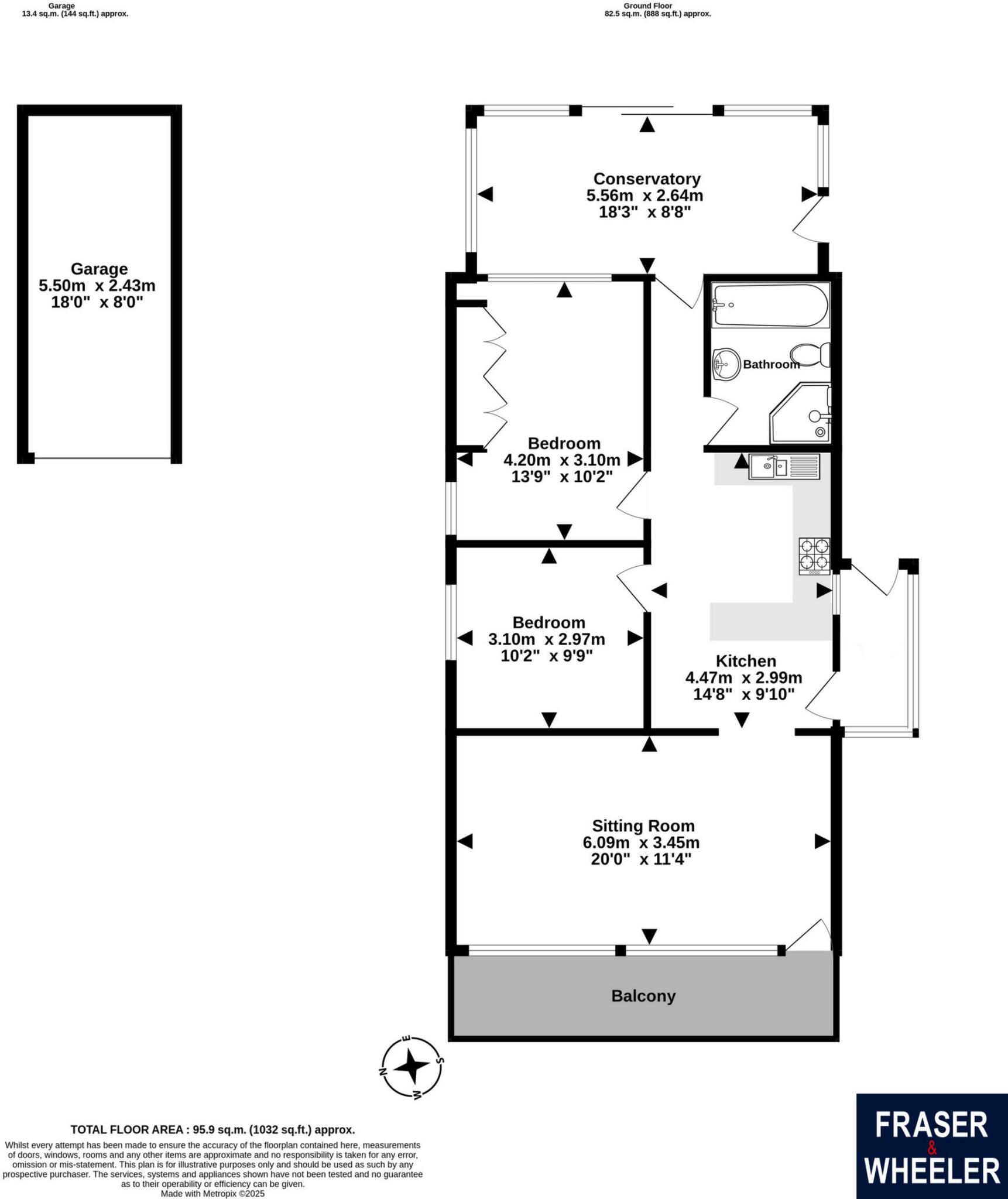
Located on the outskirts of Teignmouth is this beautifully presented and remodelled detached bungalow. The accommodation consists of 2 double bedrooms, lounge/diner, modern kitchen and bathroom. The property also enjoys a wonderful open outlook with balcony, and good size enclosed garden. FREEHOL...
Property Oracle says ..
The property located at Pellew Way, Teignmouth, is a 2-bedroom, 1-bathroom house with a total area of 911.06 sqft and a plot size of 1,032.26 sqft. The asking price is £340,000.
The property appears to be in excellent condition based on the provided photographs. The kitchen and bathroom have been recently updated to a modern standard, and the overall presentation is clean and well-maintained. The property benefits from a conservatory and a large deck offering views.
The plot size is relatively small, but sufficient for a property of this size. The presence of a garden and a deck adds to the property’s appeal.
Considering the average price of £336,292 and average price per sqft of £298 in the area, the list price of £340,000 appears reasonable. While the property is slightly smaller than the average sqft in the area, its modern condition and desirable features, such as the conservatory and deck, could justify the slightly higher price per sqft. The proximity to local amenities and schools further enhances its value. Nearby comparable properties on Pellew Way also support this assessment.
The location is good, with nearby schools receiving good Ofsted ratings and relatively easy access to Teignmouth train station. This makes the property attractive to families and commuters.
Therefore, we give this property 8 / 10. *Disclaimer: This is our option and does constitute a recommendation or financial advice. Do your own research. *
- Price
- 8
- Condition
- 9
- Location
- 8
- Land
- 7
- Bedrooms
- 2
- Bathrooms
- 1
- Sqft (est)
- 911.06
- Lot (est)
- 1,032.26
The heatmap indicates the level of crime in the area. The color of the heatmap indicates the crime severity and recency.
Metrics Year-on-Year
- Average area value
- 288,750.00 £Decreased by 25.15 %
- Est sale value
- 208,632.74 £Decreased by 22.90 %
- Average area rental value
- 821.00 £/moDecreased by 25.30 %
- Est letting value
- 0.00 £/mo
- Est rental Yield
- 3.41 %Decreased by 0.29 %
- Crime Rate
- 12.00 %Unchanged by 0.00 %
Agent Activity
Fraser & Wheeler created the listing.
Nearby Schools
| Name | Type | Ofsted | Distance |
|---|---|---|---|
| Trinity School | Other Independent School | 0.67 KM | |
| Hazeldown School | Community School | Good | 0.68 KM |
| Our Lady And St Patrick'S Roman Catholic Primary School | Academy Sponsor Led | Good | 0.76 KM |
| Teignmouth Community School, Exeter Road | Academy Converter | Requires improvement | 0.81 KM |
| Teignmouth Community School, Mill Lane | Academy Converter | Good | 0.98 KM |
Images
Nearby Streets
| Name | Average Price | Average Sqft | Distance |
|---|---|---|---|
| Raleigh Road | £ 0 | 0 | 0.00 KM |
| Howard Court | £ 0 | 0 | 0.00 KM |
| Grace Gardens | £ 1,050,000 | 0 | 0.00 KM |
| Grange Drive | £ 439,975 | 0 | 0.00 KM |
| Larch Close | £ 0 | 0 | 0.00 KM |
Nearby Transport
| Name | NLC | TLC | Distance |
|---|---|---|---|
| Teignmouth | 3430 | TGM | 1.71 KM |
| Dawlish | 3408 | DWL | 5.33 KM |
| Dawlish Warren | 3409 | DWW | 8.35 KM |
Nearby Listings
| Address | Price | Type | Score | Distance |
|---|---|---|---|---|
| Pellew Way, Teignmouth, Devon | £ 194,250 | BUY | 6 / 10 | 0.00 KM |
| Pellew Way, Teignmouth, TQ14 | £ 340,000 | BUY | 8 / 10 | 0.00 KM |
| Pellew Way, Teignmouth, Devon | £ 290,000 | BUY | 7 / 10 | 0.01 KM |
| Higher Coombe Drive, Teignmouth, TQ14 | £ 540,000 | BUY | 7 / 10 | 0.05 KM |
| Higher Coombe Drive, Teignmouth, Devon | £ 234,500 | BUY | Unknown | 0.05 KM |
Nearby Properties
| Address | Price | Distance |
|---|---|---|
| 18 Pellew Way | £ 195,000 | 0.00 KM |
| 8 Pellew Way | £ 160,000 | 0.00 KM |
| 19 Pellew Way | £ 152,000 | 0.00 KM |
| 20 Pellew Way | £ 250,000 | 0.00 KM |
| 15 Pellew Way | £ 187,000 | 0.00 KM |