Trafalgar Street, York
Churchills Estate Agents logo

Trafalgar Street, York

By Churchills Estate Agents

£ 275,000

Reviews

3 out of 5 stars

Churchills Estate Agents says ..

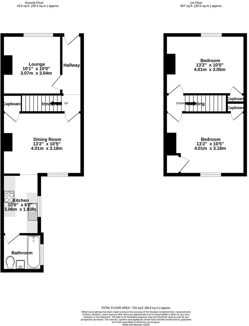
A LARGER THAN AVERAGE 2 BEDROOM PERIOD MID TERRACE HOUSE WITH A LONG REAR COURTYARD SET IN THIS SOUGHT AFTER LOCATION CLOSE TO POPULAR LOCAL AMENITIES AND WITHIN WALKING DISTANCE OF THE CITY CENTRE. The property has recently had upgrading works to include full redecoration and newly fitted kitche...

Property Oracle says ..

This is a two-bedroom terraced property located in Micklegate, York. The house has a modern kitchen and bathroom, but the garden needs some attention. The property is located close to local schools and transport links. The asking price of £275,000 seems reasonable when compared to similar properties in the area.

Therefore, we give this property 6 / 10. *Disclaimer: This is our option and does constitute a recommendation or financial advice. Do your own research. *

Price
7
Condition
6
Location
7
Land
4
Bedrooms
2
Bathrooms
1
Sqft (est)
720.00

The heatmap indicates the level of crime in the area. The color of the heatmap indicates the crime severity and recency.

Metrics Year-on-Year

Average area value
542,496.00 £
Increased by 34.28 %
from 404,000.00 £
Est sale value
300,960.00 £
Increased by 33.55 %
from 225,360.00 £
Average area rental value
1,435.00 £/mo
Increased by 6.30 %
from 1,350.00 £/mo
Est letting value
720.00 £/mo
Unchanged by 0.00 %
from 720.00 £/mo
Est rental Yield
3.17 %
Decreased by 20.95 %
from 4.01 %
Crime Rate
1.00 %
Unchanged by 0.00 %
from 1.00 %

Agent Activity

  • Churchills Estate Agents created the listing.

Nearby Schools

NameTypeOfstedDistance
Knavesmire Children'S CentreChildren's Centre0.21 KM
Knavesmire Primary SchoolAcademy Converter0.21 KM
Millthorpe SchoolAcademy ConverterGood0.40 KM
Scarcroft Primary SchoolAcademy Converter0.78 KM
The Mount School (York)Other Independent School1.24 KM

Images

Front 2a.jpeg Lounge 2.jpeg Bedroom 1.jpeg Dining Room.jpeg Dining Room 2.jpeg Front 3a.jpeg Lounge 1.jpeg Kitchen 2.jpeg kitchen.jpeg Bedroom 2.jpeg Bedroom 3.jpeg Bedroom 1.jpeg Bedroom 3.jpeg Bedroom 2.jpeg Bathroom.jpeg Back of House 2.jpeg Back of House 3.jpeg Back of house.jpeg Front 3a.jpeg

Nearby Streets

NameAverage PriceAverage SqftDistance
Drake Street £ 180,00000.00 KM
Nunnery Lane £ 000.00 KM
Bishopthorpe Road £ 000.00 KM
Bishopgate Street £ 000.00 KM
Bishopthorpegate Street £ 230,00000.00 KM

Nearby Transport

NameNLCTLCDistance
York8263YRK1.44 KM
Poppleton8254POP7.43 KM

Nearby Listings

AddressPriceTypeScoreDistance
Trafalgar Street, York £ 275,000BUY6 / 100.00 KM
Balmoral Terrace, York £ 395,000BUY6 / 100.07 KM
Balmoral Terrace, South Bank, York, YO23 £ 315,000BUY6 / 100.07 KM
South Bank Avenue, Bishopthorpe Road £ 500,000BUY7 / 100.10 KM
Kensington Street, York, North Yorkshire, YO23 £ 315,000BUY8 / 100.11 KM

Nearby Properties

AddressPriceDistance
20 Trafalgar Street £ 163,5000.01 KM
14 Trafalgar Street £ 145,0000.01 KM
18 Trafalgar Street £ 185,0000.01 KM
26 Trafalgar Street £ 169,5000.01 KM
22 Trafalgar Street £ 260,0000.01 KM