CO
Flat 5 28 Cleveden Drive, Kelvinside, G12 0RX
By Corum
£ 469,000
Reviews
4 out of 5 stars
Corum says ..
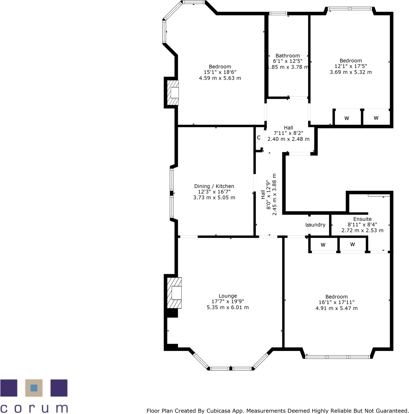
A beautifully presented and fully renovated three bedroom, first floor conversion in Kelvinside, with vibrant residents' garden grounds.
Property Oracle says ..
Therefore, we give this property 8 / 10. *Disclaimer: This is our option and does constitute a recommendation or financial advice. Do your own research. *
- Price
- 8
- Condition
- 9
- Location
- 9
- Land
- 7
- Bedrooms
- 3
- Bathrooms
- 2
- Sqft (est)
- 1,642.90
The heatmap indicates the level of crime in the area. The color of the heatmap indicates the crime severity and recency.
Metrics Year-on-Year
- Average area value
- 273,565.00 £Increased by 3.79 %
- Est sale value
- 463,297.80 £Increased by 9.73 %
- Average area rental value
- 1,350.00 £/moDecreased by 11.01 %
- Est letting value
- 1,642.90 £/moUnchanged by 0.00 %
- Est rental Yield
- 5.92 %Decreased by 14.33 %
- Crime Rate
- 0.00 %
from 263,578.00 £
from 422,225.30 £
from 1,517.00 £/mo
from 1,642.90 £/mo
from 6.91 %
from 0.00 %
Agent Activity
Corum created the listing.
Images
Nearby Streets
| Name | Average Price | Average Sqft | Distance |
|---|---|---|---|
| Redlands Terrace Lane | £ 0 | 0 | 0.00 KM |
| Belhaven Terrace West Lane | £ 450,000 | 0 | 0.00 KM |
| Kirklee Gardens | £ 395,000 | 0 | 0.00 KM |
| Horselethill Road | £ 380,000 | 0 | 0.00 KM |
| Kirklee Gardens Lane | £ 585,000 | 0 | 0.00 KM |
Nearby Transport
| Name | NLC | TLC | Distance |
|---|---|---|---|
| Maryhill | 9957 | MYH | 1.61 KM |
| Kelvindale | 1655 | KVD | 1.61 KM |
| Hyndland | 9845 | HYN | 1.74 KM |
| Partick | 9917 | PTK | 1.81 KM |
| Summerston | 9959 | SUM | 1.94 KM |
Nearby Listings
| Address | Price | Type | Score | Distance |
|---|---|---|---|---|
| Flat 5 28 Cleveden Drive, Kelvinside, G12 0RX | £ 469,000 | BUY | 8 / 10 | 0.00 KM |
| Main Door, Flat 1, 28 Cleveden Drive, Kelvinside, G12 0RX | £ 345,000 | BUY | 6 / 10 | 0.00 KM |
| Julian Court, Julian Avenue, Flat 0/1, Kelvinside, Glasgow, G12 0RB | £ 209,000 | BUY | Unknown | 0.11 KM |
| 10 Bellshaugh Lane, Kelvinside, G12 0PE | £ 475,000 | BUY | 6 / 10 | 0.11 KM |
| Cleveden Drive, Cleveden, Glasgow | £ 479,000 | BUY | 6 / 10 | 0.12 KM |