Stroudwater Court, Cainscross Road, Stroud
By Hunters
£ 350,000
Reviews
3 out of 5 stars
Hunters says ..
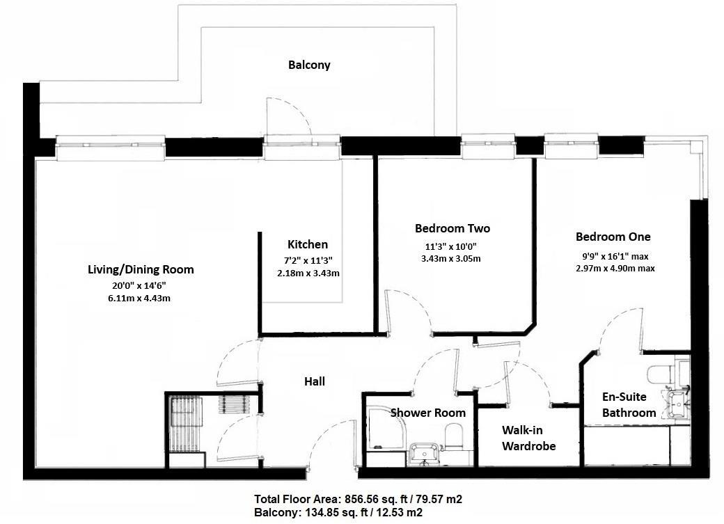
** CHAIN FREE ** Hunters Estate Agents are delighted to be offering this top floor retirement flat located in popular Stroudwater Court retirement development. Overlooking the Stroudwater canal and Stroud centre being a short walk away, this charming two bedroom flat is excellent for anyone looki...
Property Oracle says ..
The property is a two bedroom, two bathroom apartment located in Stroudwater Court, Cainscross Road, Stroud, Gloucestershire. It is situated in Stroud Central, a convenient location with nearby transportation links, including Stroud (Gloucs) train station just 0.55km away. Several highly-rated primary schools are within a 1km radius, making it attractive to families.
The apartment itself appears to be in good condition based on the provided images. The interior is modern and well-maintained, with a contemporary kitchen and bathrooms. The property benefits from a balcony offering some outdoor space, although it’s relatively small.
Given the average price per square foot in the area is £251, and this 746.24 sqft apartment is listed at £350,000, the price seems slightly above average. However, considering the modern condition, convenient location, and proximity to amenities and schools, the price might be justifiable for the right buyer. Further analysis of comparable properties in the immediate vicinity would help to solidify this assessment. The lack of plot size information limits a more detailed land assessment.
Therefore, we give this property 6 / 10. *Disclaimer: This is our option and does constitute a recommendation or financial advice. Do your own research. *
- Price
- 7
- Condition
- 8
- Location
- 9
- Land
- 3
- Bedrooms
- 2
- Bathrooms
- 2
- Sqft (est)
- 746.24
The heatmap indicates the level of crime in the area. The color of the heatmap indicates the crime severity and recency.
Metrics Year-on-Year
- Average area value
- 251,538.00 £Increased by 21.55 %
- Est sale value
- 154,471.68 £Decreased by 4.17 %
- Average area rental value
- 754.00 £/moDecreased by 18.22 %
- Est letting value
- 0.00 £/mo
- Est rental Yield
- 3.60 %Decreased by 32.71 %
- Crime Rate
- 1.00 %Unchanged by 0.00 %
Agent Activity
Hunters marked this listing as sold.
Hunters created the listing.
Nearby Schools
| Name | Type | Ofsted | Distance |
|---|---|---|---|
| Rodborough Community Primary School | Community School | Good | 0.34 KM |
| The Rosary Catholic Primary School | Academy Converter | Good | 0.43 KM |
| St Rose'S Special School | Non-maintained Special School | Good | 0.49 KM |
| St Martins Centre (St Roses School) | Special Post 16 Institution | Good | 0.50 KM |
| Stroud High School | Academy Converter | 0.92 KM |
Images
Nearby Streets
| Name | Average Price | Average Sqft | Distance |
|---|---|---|---|
| Oak drive | £ 179,950 | 0 | 0.00 KM |
| Strachan's Close | £ 0 | 0 | 0.00 KM |
| Church Place | £ 0 | 0 | 0.00 KM |
| Painswick Old Road | £ 0 | 0 | 0.00 KM |
| Salmon Springs Industrial Estate | £ 0 | 0 | 0.00 KM |
Nearby Transport
| Name | NLC | TLC | Distance |
|---|---|---|---|
| Stroud (Gloucs) | 4771 | STD | 0.55 KM |
| Stonehouse | 4770 | SHU | 6.09 KM |
Nearby Listings
| Address | Price | Type | Score | Distance |
|---|---|---|---|---|
| Stroudwater Court, Cainscross Road, Stroud | £ 350,000 | BUY | 6 / 10 | 0.00 KM |
| Stroudwater Court, Cainscross Road, Stroud, GL5 4ET | £ 260,000 | BUY | 7 / 10 | 0.02 KM |
| 1 Cainscross Road, Stroud, GL5 | £ 340,000 | BUY | Unknown | 0.03 KM |
| Stroudwater Court, Cainscross Road, Stroud | £ 275,000 | BUY | 7 / 10 | 0.06 KM |
| The Hill, Merrywalks, Stroud, Gloucestershire, GL5 | £ 250,000 | BUY | 6 / 10 | 0.12 KM |
Nearby Properties
| Address | Price | Distance |
|---|---|---|
| 38 Cainscross Road | £ 546,500 | 0.06 KM |
| 30 Cainscross Road | £ 475,000 | 0.06 KM |
| 28 Cainscross Road | £ 455,000 | 0.06 KM |
| 39 The Hill | £ 159,500 | 0.12 KM |
| 15 The Hill | £ 235,000 | 0.12 KM |