Reid & Dean says ..
A stunning 4/5 bedroom environmentally friendly town house with three independent balconies- allowing for 360 viewing of the Downs, sea and Pevensey Castle. Situated moments from the harbour and beach and forming part of this architecturally striking contemporary Harbour development by J W Stratton.
Property Oracle says ..
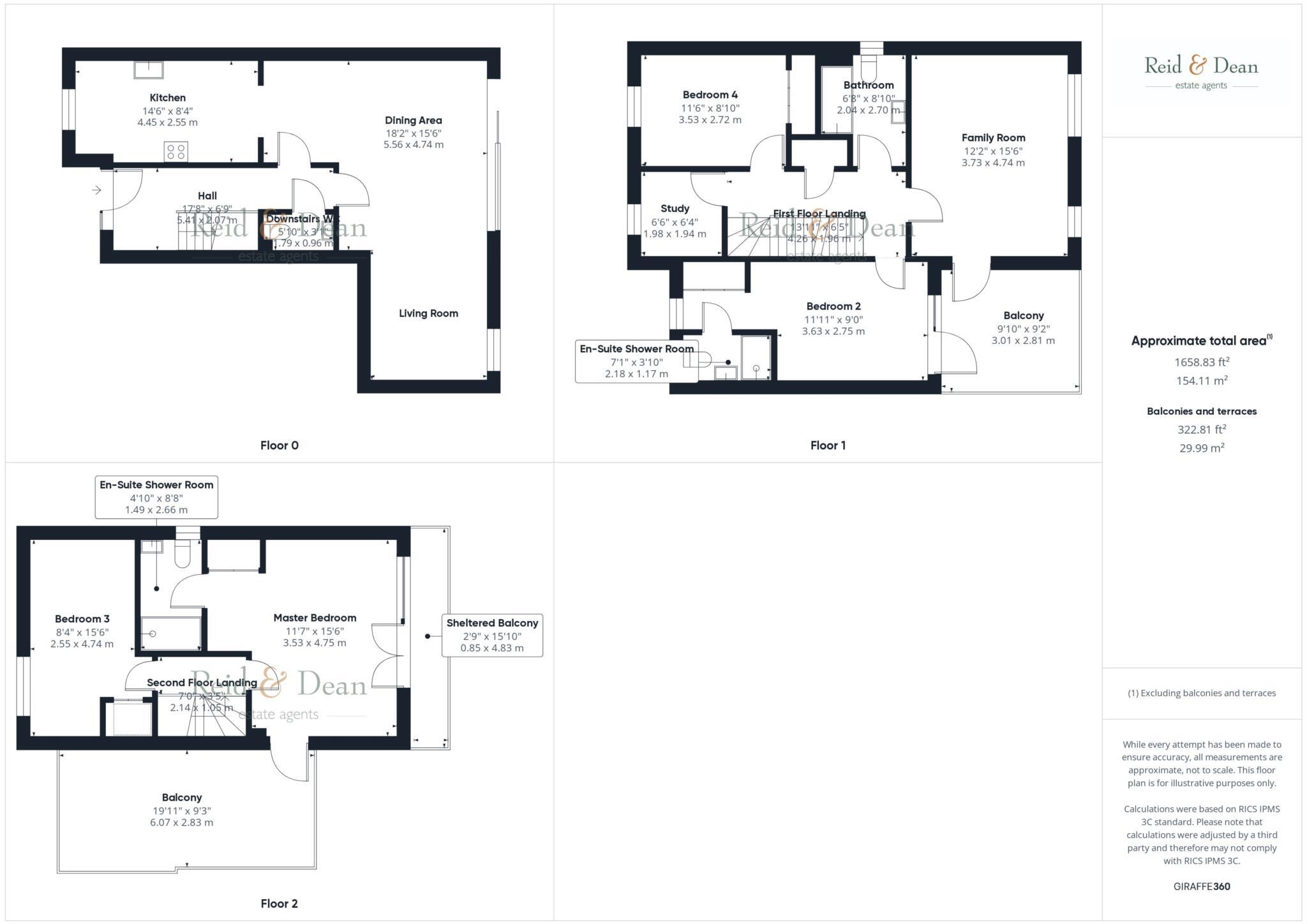
The property is a 5 bedroom, 3 bathroom detached house located in Sovereign, Eastbourne. The property is modern in design and is presented in excellent condition throughout. The images show a well-maintained property with a contemporary interior and a good-sized garden. There is also a balcony with views over open countryside. The location is within easy reach of several good schools, as well as transport links. Eastbourne town centre is also a short distance away. Based on the average price per sqft in the area of £346, and given the size of the property (1740.40 sqft), a reasonable estimate for the price would be in the region of £600,000. The asking price of £640,000 is slightly higher than this, but given the property’s condition, location, and the additional features (garden, balcony), it is not unreasonable.
Therefore, we give this property 8 / 10. *Disclaimer: This is our option and does constitute a recommendation or financial advice. Do your own research. *
- Price
- 8
- Condition
- 10
- Location
- 9
- Land
- 8
- Bedrooms
- 5
- Bathrooms
- 3
- Sqft (est)
- 1,740.40
The heatmap indicates the level of crime in the area. The color of the heatmap indicates the crime severity and recency.
Metrics Year-on-Year
- Average area value
- 354,423.00 £Increased by 4.54 %
- Est sale value
- 866,719.20 £Increased by 55.14 %
- Average area rental value
- 1,358.00 £/moDecreased by 3.21 %
- Est letting value
- 1,740.40 £/moUnchanged by 0.00 %
- Est rental Yield
- 4.60 %Decreased by 7.44 %
- Crime Rate
- 1.00 %Unchanged by 0.00 %
Agent Activity
Reid & Dean created the listing.
Nearby Schools
| Name | Type | Ofsted | Distance |
|---|---|---|---|
| St Catherine'S College | Academy Converter | Good | 1.76 KM |
| Pevensey And Westham Cofe Primary School | Voluntary Controlled School | Good | 1.80 KM |
| The Haven Voluntary Aided Cofe/Methodist Primary School | Voluntary Aided School | Good | 1.97 KM |
| Langney Primary Academy | Academy Converter | 2.06 KM | |
| Tollgate Community Junior School | Community School | Good | 3.04 KM |
Images
Nearby Streets
| Name | Average Price | Average Sqft | Distance |
|---|---|---|---|
| Old Martello Road | £ 0 | 0 | 0.00 KM |
| Silver Strand | £ 0 | 0 | 0.00 KM |
| Saint Lawrence Place | £ 350,000 | 0 | 0.00 KM |
| Saint Lawrence Way | £ 0 | 0 | 0.00 KM |
| Saint Lawrence Mews | £ 0 | 0 | 0.00 KM |
Nearby Transport
| Name | NLC | TLC | Distance |
|---|---|---|---|
| Pevensey And Westham | 5461 | PEV | 1.82 KM |
| Pevensey Bay | 5462 | PEB | 2.09 KM |
| Hampden Park (Sussex) | 5450 | HMD | 5.95 KM |
| Eastbourne | 5448 | EBN | 6.75 KM |
| Normans Bay | 5460 | NSB | 6.82 KM |
Nearby Listings
| Address | Price | Type | Score | Distance |
|---|---|---|---|---|
| Macauley Drive, Eastbourne, BN23 5BU | £ 470,000 | BUY | 8 / 10 | 0.00 KM |
| Macauley Drive, Eastbourne | £ 640,000 | BUY | 8 / 10 | 0.00 KM |
| Macauley Drive, Eastbourne | £ 600,000 | BUY | 8 / 10 | 0.00 KM |
| Macauley Drive, Eastbourne, BN23 5BU | £ 650,000 | BUY | 7 / 10 | 0.00 KM |
| Macauley Drive, Eastbourne, BN23 5BU | £ 540,000 | BUY | 8 / 10 | 0.00 KM |
Nearby Properties
| Address | Price | Distance |
|---|---|---|
| 49 Samoa Way | £ 287,000 | 0.14 KM |
| 16 Samoa Way | £ 227,000 | 0.14 KM |
| 19 Samoa Way | £ 189,000 | 0.14 KM |
| 23 Samoa Way | £ 365,000 | 0.14 KM |
| 39 Samoa Way | £ 240,000 | 0.14 KM |