Albion Court, Kingsbridge
By Kingsbridge Estate Agents Ltd
£ 230,000
Reviews
3 out of 5 stars
Kingsbridge Estate Agents Ltd says ..
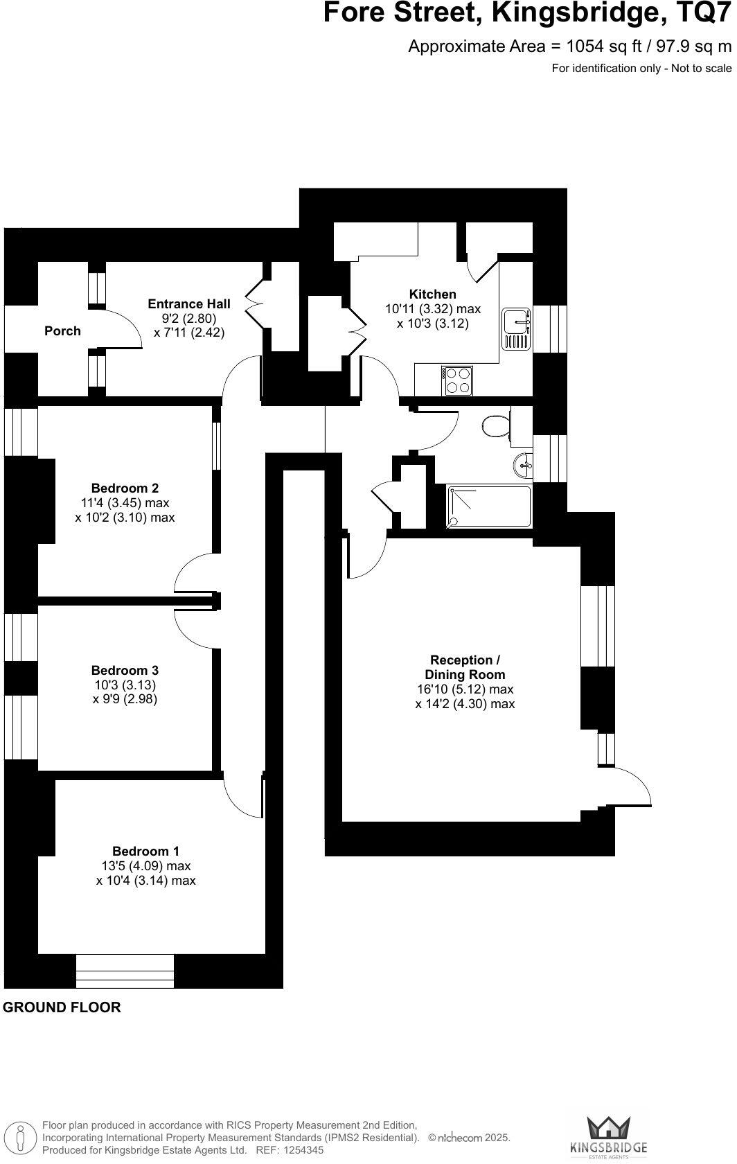
A refurbished 3-bedroom ground-floor apartment, perfectly situated in the heart of Kingsbridge. Freshly updated with brand-new carpets and offered with no onward chain, this home is ready for you to move straight in. Boasting three generous double bedrooms, a sleek and modern kitchen and bathr...
Property Oracle says ..
The property is a 3-bedroom ground floor apartment situated in the heart of Kingsbridge. The location is a significant advantage, placing it within easy reach of local amenities. The proximity to Kingsbridge Academy (0.87km), Kingsbridge Community Primary School (1.00km), and other schools, makes it attractive to families. The apartment appears to be in good condition, with recently updated carpets and a modern kitchen and bathroom. Images show a clean and well-maintained interior, suggesting minimal need for repair or renovation. However, the lack of information regarding the plot size and square footage of the property makes it difficult to fully assess the land and price aspects. While the list price of £230,000 is lower than the average price for the area (£275,043), the absence of square footage data prevents a proper price-per-square-foot comparison and a conclusive assessment of its value. Further information on the property’s size would be needed to provide a more comprehensive analysis of the price. The presence of a small communal garden area is noted, but the lack of a private garden may be a drawback for some buyers.
Therefore, we give this property 6 / 10. *Disclaimer: This is our option and does constitute a recommendation or financial advice. Do your own research. *
- Price
- 7
- Condition
- 8
- Location
- 9
- Land
- 3
- Bedrooms
- 3
- Bathrooms
- 1
- Sqft (est)
- 700.20
- Lot (est)
- 1,054.00
The heatmap indicates the level of crime in the area. The color of the heatmap indicates the crime severity and recency.
Metrics Year-on-Year
- Average area value
- 320,980.00 £Decreased by 8.16 %
- Est sale value
- 200,957.40 £Decreased by 21.58 %
- Average area rental value
- 954.00 £/moDecreased by 20.76 %
- Est letting value
- 0.00 £/moDecreased by 100.00 %
- Est rental Yield
- 3.57 %Decreased by 13.56 %
- Crime Rate
- 27.00 %Unchanged by 0.00 %
Agent Activity
Kingsbridge Estate Agents Ltd created the listing.
Nearby Schools
| Name | Type | Ofsted | Distance |
|---|---|---|---|
| Kingsbridge Academy | Academy Converter | 0.87 KM | |
| Kingsbridge Community Primary School | Community School | Requires improvement | 1.00 KM |
| Kingsbridge & District | Children's Centre | 1.30 KM | |
| West Alvington Church Of England Academy | Academy Converter | Good | 1.76 KM |
| Charleton Church Of England Academy | Academy Converter | Good | 3.77 KM |
Images
Nearby Streets
| Name | Average Price | Average Sqft | Distance |
|---|---|---|---|
| Plymouth Road | £ 0 | 0 | 0.00 KM |
| Mill Street | £ 0 | 0 | 0.00 KM |
| Springfield Drive | £ 850,000 | 0 | 0.00 KM |
| Square's Quay | £ 0 | 0 | 0.00 KM |
| West Alvington Hill | £ 450,000 | 0 | 0.00 KM |
Nearby Listings
| Address | Price | Type | Score | Distance |
|---|---|---|---|---|
| Albion Court, Kingsbridge | £ 230,000 | BUY | 6 / 10 | 0.00 KM |
| Fore Street, Kingsbridge, TQ7 | £ 165,000 | BUY | Unknown | 0.01 KM |
| Fore Street, Kingsbridge | £ 350,000 | BUY | Unknown | 0.05 KM |
| Albion Gardens, Kingsbridge | £ 230,000 | BUY | 6 / 10 | 0.06 KM |
| 78 Fore Street, Kingsbridge | £ 160,000 | BUY | 5 / 10 | 0.07 KM |
Nearby Properties
| Address | Price | Distance |
|---|---|---|
| 2 Albion Gardens | £ 145,000 | 0.07 KM |
| 7 Albion Gardens | £ 85,000 | 0.07 KM |
| 5 Albion Gardens | £ 155,000 | 0.07 KM |
| 6 Albion Gardens | £ 177,500 | 0.07 KM |
| 8 Albion Gardens | £ 146,000 | 0.07 KM |