Chancellors says ..
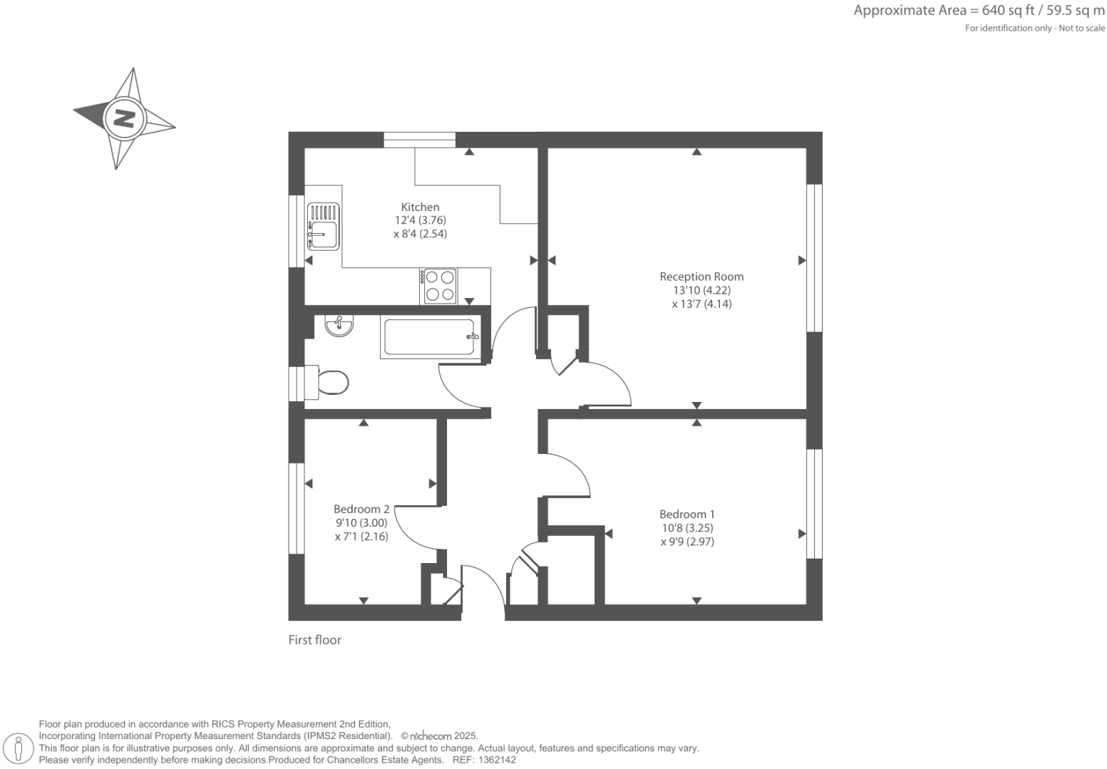
A generously sized two-bedroom top-floor apartment ideally located just half a mile from the heart of Lightwater Village. Surrounded by highly sought-after schools, this property also enjoys proximity to the beautiful Lightwater Country Park and the popular Lightwater Leisure Centre within a mile
Property Oracle says ..
This two-bedroom flat in Lightwater, Surrey, presents a promising opportunity for buyers. The interior boasts modern decor and updated amenities, while the exterior shows some signs of wear. Its location offers proximity to schools and transportation, enhancing its appeal. The inclusion of a garden is a definite plus. Considering the local market and comparable properties, the asking price seems reasonable, making it an attractive option.
Therefore, we give this property 7 / 10. *Disclaimer: This is our option and does constitute a recommendation or financial advice. Do your own research. *
- Price
- 8
- Condition
- 7
- Location
- 7
- Land
- 6
- Bedrooms
- 2
- Bathrooms
- 1
The heatmap indicates the level of crime in the area. The color of the heatmap indicates the crime severity and recency.
Metrics Year-on-Year
- Average area value
- 631,026.00 £Increased by 16.57 %
- Average area rental value
- 1,918.00 £/moDecreased by 33.29 %
- Est rental Yield
- 3.65 %Decreased by 42.70 %
- Crime Rate
- 8.00 %Unchanged by 0.00 %
Agent Activity
Chancellors created the listing.
Nearby Schools
| Name | Type | Ofsted | Distance |
|---|---|---|---|
| Hammond School | Academy Converter | Good | 0.06 KM |
| Lightwater Village School | Academy Converter | 0.61 KM | |
| Connaught Junior School | Academy Converter | Good | 1.19 KM |
| Bagshot Infant School & Sure Start Children'S Centre | Children's Centre | 1.79 KM | |
| Bagshot Infant School | Community School | Good | 1.79 KM |
Images
Nearby Streets
| Name | Average Price | Average Sqft | Distance |
|---|---|---|---|
| Maple Drive | £ 0 | 0 | 0.00 KM |
| The Close | £ 550,000 | 0 | 0.00 KM |
| Butler Road | £ 695,000 | 0 | 0.00 KM |
| Hammond Way | £ 0 | 0 | 0.00 KM |
| Elizabeth Avenue | £ 450,000 | 0 | 0.00 KM |
Nearby Transport
| Name | NLC | TLC | Distance |
|---|---|---|---|
| Bagshot | 5681 | BAG | 1.78 KM |
| Ascot (Berks) | 5666 | ACT | 6.13 KM |
| Sunningdale | 5671 | SNG | 6.83 KM |
| Brookwood | 5687 | BKO | 7.16 KM |
| Camberley | 5682 | CAM | 7.37 KM |
Nearby Listings
| Address | Price | Type | Score | Distance |
|---|---|---|---|---|
| Lightwater, Surrey, GU18 | £ 260,000 | BUY | 7 / 10 | 0.00 KM |
| The Avenue, Lightwater, Surrey, GU18 | £ 600,000 | BUY | 7 / 10 | 0.05 KM |
| The Avenue, Lightwater, Surrey, GU18 | £ 399,950 | BUY | Unknown | 0.06 KM |
| The Avenue, Lightwater, Surrey, GU18 | £ 500,000 | BUY | Unknown | 0.06 KM |
| The Avenue, Lightwater | £ 735,000 | BUY | Unknown | 0.08 KM |
Nearby Properties
| Address | Price | Distance |
|---|---|---|
| 67 The Avenue | £ 467,000 | 0.09 KM |
| 64 The Avenue | £ 240,000 | 0.09 KM |
| 72 The Avenue | £ 702,000 | 0.09 KM |
| 87 The Avenue | £ 240,000 | 0.09 KM |
| 95 The Avenue | £ 225,000 | 0.09 KM |