GA
Highcroft Avenue, West Didsbury
By Gascoigne Halman
£ 400,000
Reviews
3 out of 5 stars
Gascoigne Halman says ..
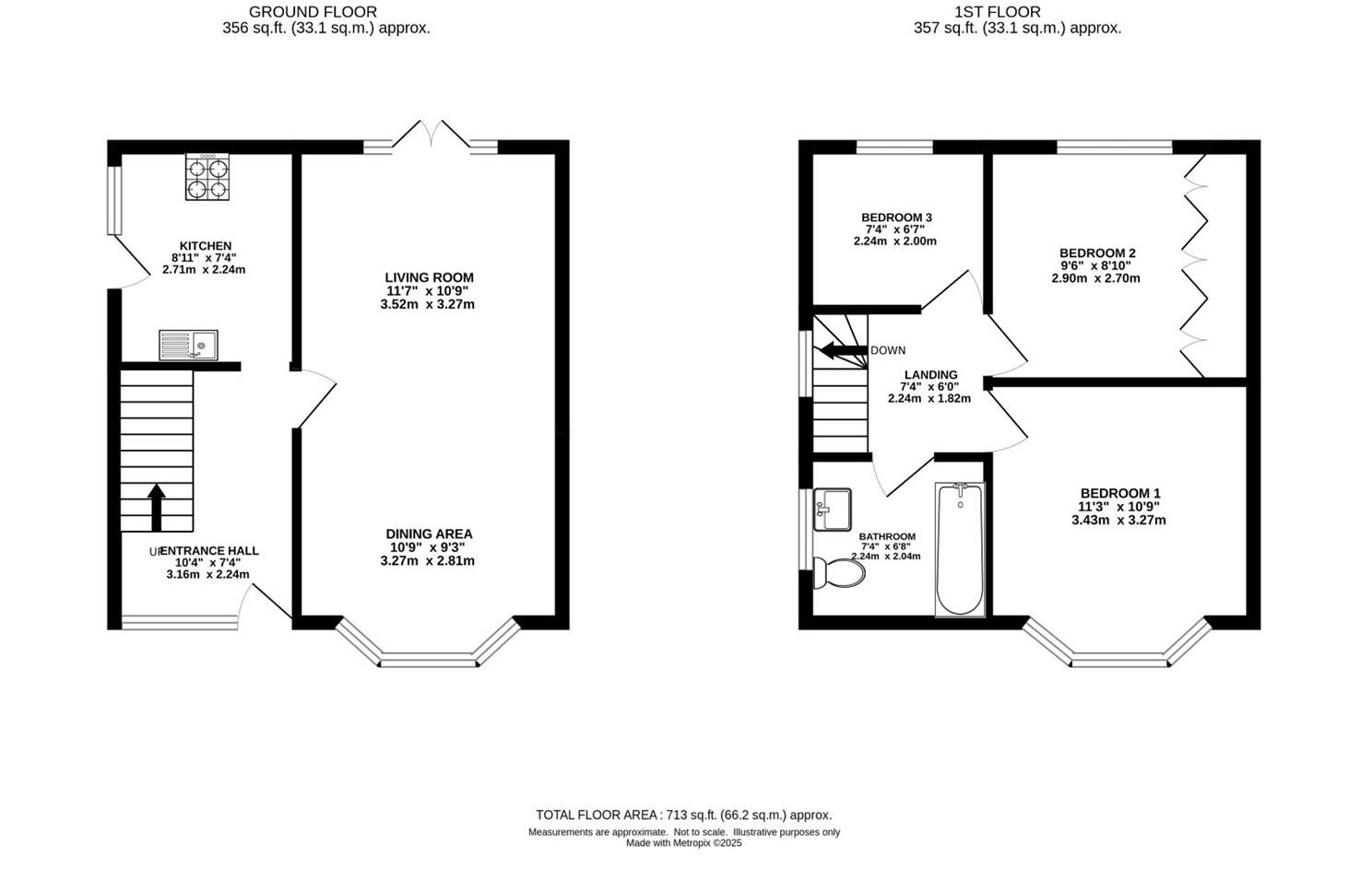
A well presented and spacious bay fronted semi-detached property located in a quiet cul-de-sac location. Boasting an immaculate finish and situated in a peaceful residential area only moments from Burton Road with its array of bars, restaurants and excellent transport links. Off road parking and ...
Property Oracle says ..
Therefore, we give this property 7 / 10. *Disclaimer: This is our option and does constitute a recommendation or financial advice. Do your own research. *
- Price
- 6
- Condition
- 7
- Location
- 8
- Land
- 7
- Bedrooms
- 3
- Bathrooms
- 1
- Sqft (est)
- 715.72
The heatmap indicates the level of crime in the area. The color of the heatmap indicates the crime severity and recency.
Metrics Year-on-Year
- Average area value
- 672,916.00 £Increased by 59.57 %
- Est sale value
- 365,017.20 £Increased by 35.64 %
- Average area rental value
- 1,415.00 £/moIncreased by 3.89 %
- Est letting value
- 715.72 £/moUnchanged by 0.00 %
- Est rental Yield
- 2.52 %Decreased by 35.05 %
- Crime Rate
- 0.00 %
from 421,711.00 £
from 269,110.72 £
from 1,362.00 £/mo
from 715.72 £/mo
from 3.88 %
from 0.00 %
Agent Activity
Gascoigne Halman created the listing.
Nearby Schools
| Name | Type | Ofsted | Distance |
|---|---|---|---|
| St Ambrose Rc Primary School | Voluntary Aided School | Good | 0.24 KM |
| Lancasterian School | Community Special School | Good | 0.72 KM |
| The Birches School | Community Special School | Outstanding | 1.01 KM |
| Didsbury High School | Free Schools | 1.03 KM | |
| West Didsbury Sscc | Children's Centre | 1.03 KM |
Images
Nearby Streets
| Name | Average Price | Average Sqft | Distance |
|---|---|---|---|
| Glenmore Avenue | £ 0 | 0 | 0.00 KM |
| Derwent Close | £ 0 | 0 | 0.00 KM |
| Waterside Close | £ 0 | 0 | 0.00 KM |
| Buckthorn Close | £ 86,000 | 0 | 0.00 KM |
| Howard Road | £ 0 | 0 | 0.00 KM |
Nearby Transport
| Name | NLC | TLC | Distance |
|---|---|---|---|
| East Didsbury | 2949 | EDY | 4.11 KM |
| Gatley | 2953 | GTY | 4.33 KM |
| Burnage | 2945 | BNA | 4.54 KM |
| Mauldeth Road | 2867 | MAU | 5.38 KM |
| Deansgate | 2963 | DGT | 5.79 KM |
Nearby Listings
| Address | Price | Type | Score | Distance |
|---|---|---|---|---|
| Highcroft Avenue, West Didsbury | £ 400,000 | BUY | 7 / 10 | 0.00 KM |
| Highcroft Avenue, West Didsbury | £ 350,000 | BUY | 7 / 10 | 0.04 KM |
| Highcroft Avenue, Manchester | £ 400,000 | BUY | 7 / 10 | 0.05 KM |
| Highcroft Avenue, West Didsbury | £ 500,000 | BUY | 6 / 10 | 0.07 KM |
| Darley Avenue, West Didsbury | £ 799,950 | BUY | Unknown | 0.12 KM |
Nearby Properties
| Address | Price | Distance |
|---|---|---|
| 3 Highcroft Avenue | £ 510,000 | 0.04 KM |
| 2 Highcroft Avenue | £ 180,000 | 0.04 KM |
| 12 Highcroft Avenue | £ 355,000 | 0.04 KM |
| 9 Highcroft Avenue | £ 211,000 | 0.04 KM |
| 10 Highcroft Avenue | £ 310,000 | 0.04 KM |