Kings head Cottages. Royal Oak
VE

Kings head Cottages. Royal Oak

By Venture Properties

£ 795,000

Reviews

3 out of 5 stars

Venture Properties says ..

Nestled in the charming location of Royal Oak close to the village of Heighington, near Darlington, this individually designed four-bedroom detached home offers a unique blend of modern living and picturesque countryside views. Recently constructed to an exceptionally high standard, this property...

Property Oracle says ..

A detached property located in Kings head Cottages, Royal Oak, Heighington & Coniscliffe, Darlington. The house is a detached property with 4 bedrooms and 3 bathrooms. It appears to be in very good condition, with modern fixtures and fittings. The kitchen and bathrooms look newly renovated. The property has a garden and a large driveway.

Therefore, we give this property 7 / 10. *Disclaimer: This is our option and does constitute a recommendation or financial advice. Do your own research. *

Price
7
Condition
9
Location
7
Land
7
Bedrooms
4
Bathrooms
3

The heatmap indicates the level of crime in the area. The color of the heatmap indicates the crime severity and recency.

Metrics Year-on-Year

Average area value
222,749.00 £
Decreased by 33.36 %
from 334,274.00 £
Average area rental value
1,950.00 £/mo
Increased by 136.94 %
from 823.00 £/mo
Est rental Yield
10.51 %
Increased by 256.27 %
from 2.95 %
Crime Rate
179.00 %
Unchanged by 0.00 %
from 179.00 %

Agent Activity

  • Venture Properties created the listing.

Nearby Schools

NameTypeOfstedDistance
Pear Tree SchoolOther Independent Special SchoolOutstanding1.91 KM
Oakwood Learning CentreOther Independent Special SchoolOutstanding2.27 KM
Woodhouse Community Primary SchoolCommunity SchoolGood4.07 KM
Timothy Hackworth Primary SchoolCommunity SchoolGood4.19 KM
Aclet Close Nursery SchoolLocal Authority Nursery SchoolGood4.20 KM

Images

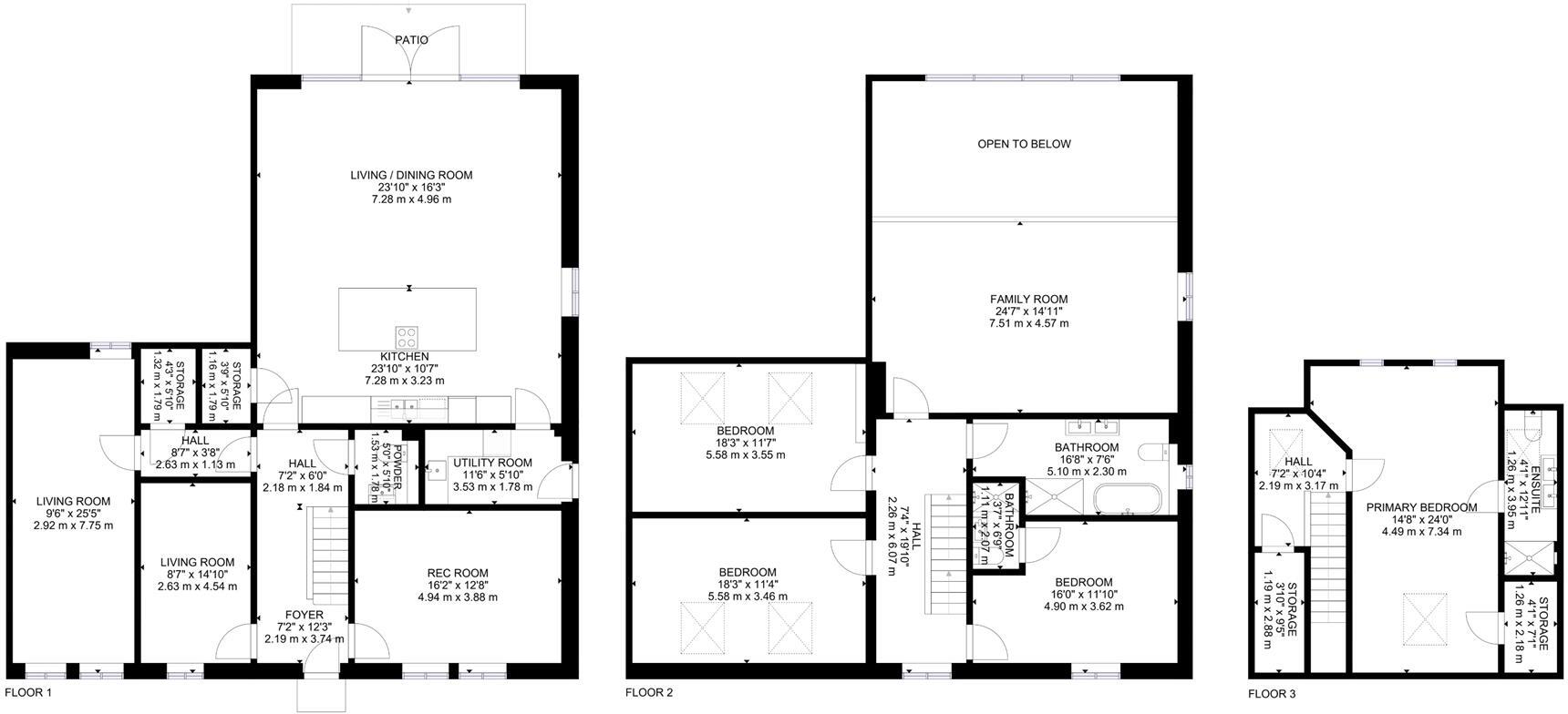
IMG_7498.jpeg Outside Open Plan Kitchen/Dining/Sitting Room En-suite En-suite Bedroom 1 Mezzanine Bathroom/W.C Bathroom/W.C 035pw.jpg 037pw.jpg 002pw.jpg 016pw.jpg Open Plan Kitchen/Dining/Sitting Room Open Plan Kitchen/Dining/Sitting Room En-suite Bathroom/W.C 019pw.jpg Mezzanine/Family Room Open Plan Kitchen/Dining/Sitting Room 040pw.jpg Cloakroom/W.C Cloakroom/W.C First Floor Open Plan Kitchen/Dining/Sitting Room 001pw.jpg Bathroom/W.C 046pw.jpg Bedroom 1 Open Plan Kitchen/Dining/Sitting Room 036pw.jpg 033pw.jpg 010pw.jpg 034pw.jpg 031pw.jpg

Nearby Transport

NameNLCTLCDistance
Shildon7893SHD5.34 KM
Bishop Auckland7835BIA5.50 KM

Nearby Listings

AddressPriceTypeScoreDistance
Kings head Cottages. Royal Oak £ 795,000BUY7 / 100.00 KM
Widehope Farm, Bildershaw, West Auckland, County Durham £ 950,000BUY7 / 100.65 KM
Widehope Cottage, Bildershaw, West Auckland £ 500,000BUY7 / 100.66 KM
Broad Acres, Bolam, DL2 £ 1,000,000BUY8 / 101.19 KM
Bildershaw, West Auckland, Bishop Auckland £ 575,000BUY6 / 101.87 KM

Nearby Properties

AddressPriceDistance
Stonehouse Chapel £ 143,0001.52 KM
Roselea House £ 315,0001.52 KM
Highside £ 290,0001.87 KM