Cricketfield Road, Hackney, London, E5
By Foxtons
£ 1,400,000
Reviews
2 out of 5 stars
Foxtons says ..
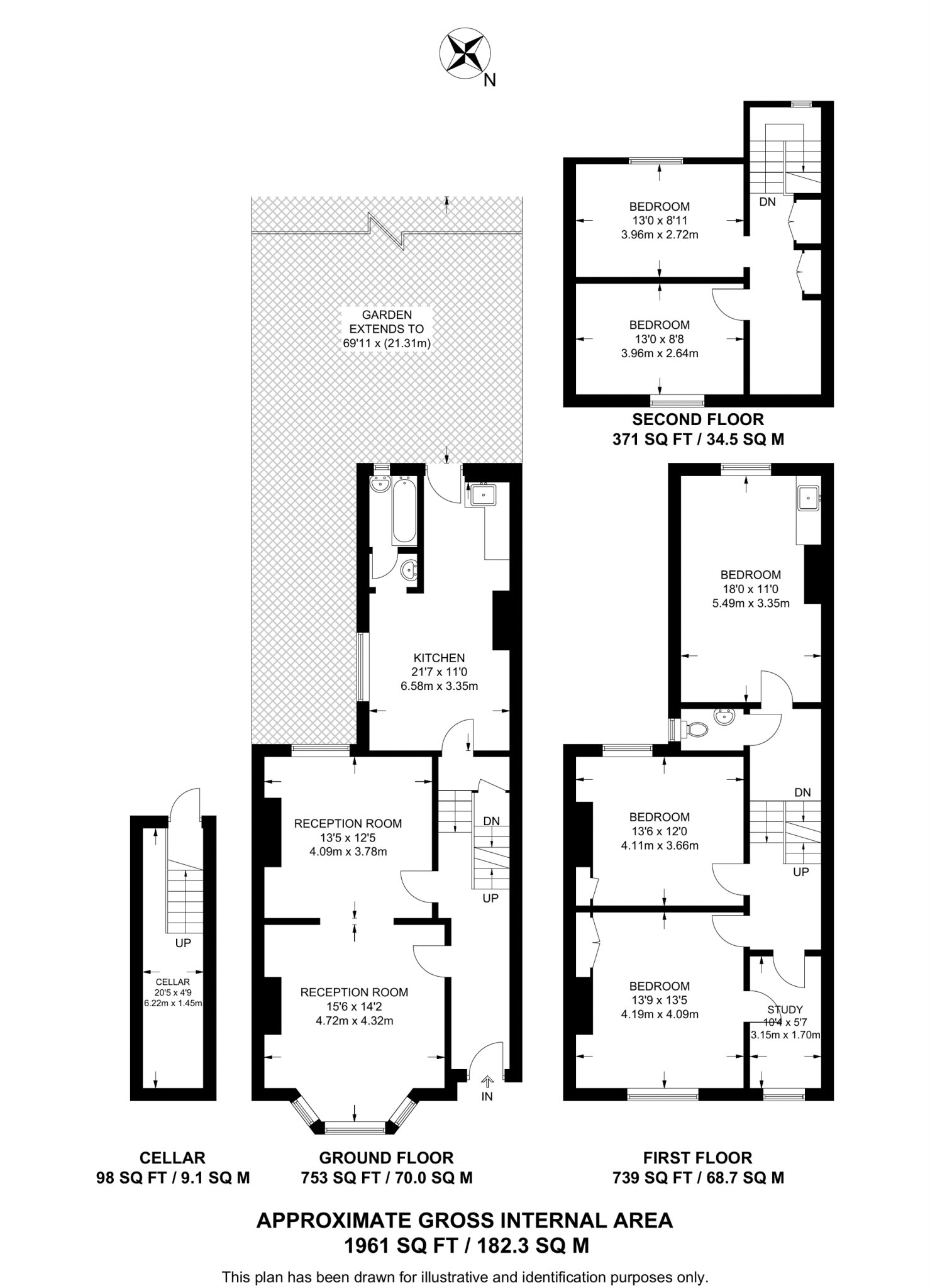
A generously proportioned 6 bedroom house arranged over 4 floors boasting a cellar with storage space and a large private garden to the rear.
Property Oracle says ..
This property is a 6-bedroom, 2-bathroom terraced house located on Cricketfield Road in Hackney Downs, London. The list price is £1,400,000, and the property has a plot size of 0.00 sqft. The area has an average price of £764,737 and an average price per sqft of £876.00. The property is within close proximity to several highly-rated schools including Stormont House School and Mossbourne Community Academy, and is also conveniently located near several Overground stations, making it easily accessible to central London. However, the property appears to be in need of significant renovation, as evidenced by the photos provided. The garden is overgrown and requires attention. Considering the need for renovation, the asking price may be considered high relative to other properties in the area, although the number of bedrooms and location could justify it for the right buyer.
Therefore, we give this property 4 / 10. *Disclaimer: This is our option and does constitute a recommendation or financial advice. Do your own research. *
- Price
- 4
- Condition
- 3
- Location
- 8
- Land
- 2
- Bedrooms
- 6
- Bathrooms
- 2
- Sqft (est)
- 1,961.00
The heatmap indicates the level of crime in the area. The color of the heatmap indicates the crime severity and recency.
Metrics Year-on-Year
- Average area value
- 309,833.00 £Decreased by 53.44 %
- Est sale value
- 1,262,884.00 £Decreased by 7.87 %
- Average area rental value
- 2,396.00 £/moIncreased by 9.71 %
- Est letting value
- 7,844.00 £/moIncreased by 100.00 %
- Est rental Yield
- 9.28 %Increased by 135.53 %
- Crime Rate
- 2.00 %Unchanged by 0.00 %
Agent Activity
Foxtons created the listing.
Nearby Schools
| Name | Type | Ofsted | Distance |
|---|---|---|---|
| Stormont House School | Community Special School | Outstanding | 0.28 KM |
| Nightingale Primary School | Community School | Good | 0.34 KM |
| Baden-Powell School | Community School | Good | 0.36 KM |
| Al-Falah Primary School | Other Independent School | Good | 0.48 KM |
| Mossbourne Community Academy | Academy Sponsor Led | Outstanding | 0.51 KM |
Images
Nearby Streets
| Name | Average Price | Average Sqft | Distance |
|---|---|---|---|
| Tilia Road | £ 425,000 | 0 | 0.00 KM |
| Clarence Road | £ 0 | 0 | 0.00 KM |
| Maitland Place | £ 0 | 0 | 0.00 KM |
| Tolsford Road | £ 0 | 0 | 0.00 KM |
| Kenmure Yard | £ 0 | 0 | 0.00 KM |
Nearby Transport
| Name | NLC | TLC | Distance |
|---|---|---|---|
| Hackney Downs | 6867 | HAC | 0.70 KM |
| Hackney Central | 6977 | HKC | 0.79 KM |
| Clapton | 6926 | CPT | 0.84 KM |
| Rectory Road | 6967 | REC | 1.29 KM |
| London Fields | 6966 | LOF | 1.44 KM |
Nearby Listings
| Address | Price | Type | Score | Distance |
|---|---|---|---|---|
| Cricketfield Road, Hackney, London, E5 | £ 1,400,000 | BUY | 4 / 10 | 0.00 KM |
| Cricketfield Road, Clapton | £ 1,375,000 | BUY | 8 / 10 | 0.03 KM |
| Queensdown Road, Hackney, London, E5 | £ 500,000 | BUY | 6 / 10 | 0.07 KM |
| Cricketfield Road, London, E5 | £ 875,000 | BUY | 6 / 10 | 0.07 KM |
| Queensdown Road, Hackney | £ 775,000 | BUY | 7 / 10 | 0.08 KM |
Nearby Properties
| Address | Price | Distance |
|---|---|---|
| 25 Cricketfield Road | £ 1,100,000 | 0.03 KM |
| 79b Cricketfield Road | £ 360,000 | 0.03 KM |
| 7 Cricketfield Road | £ 940,000 | 0.03 KM |
| 5 Cricketfield Road | £ 1,150,000 | 0.03 KM |
| 13 Cricketfield Road | £ 100,500 | 0.03 KM |