Parsons & Co says ..
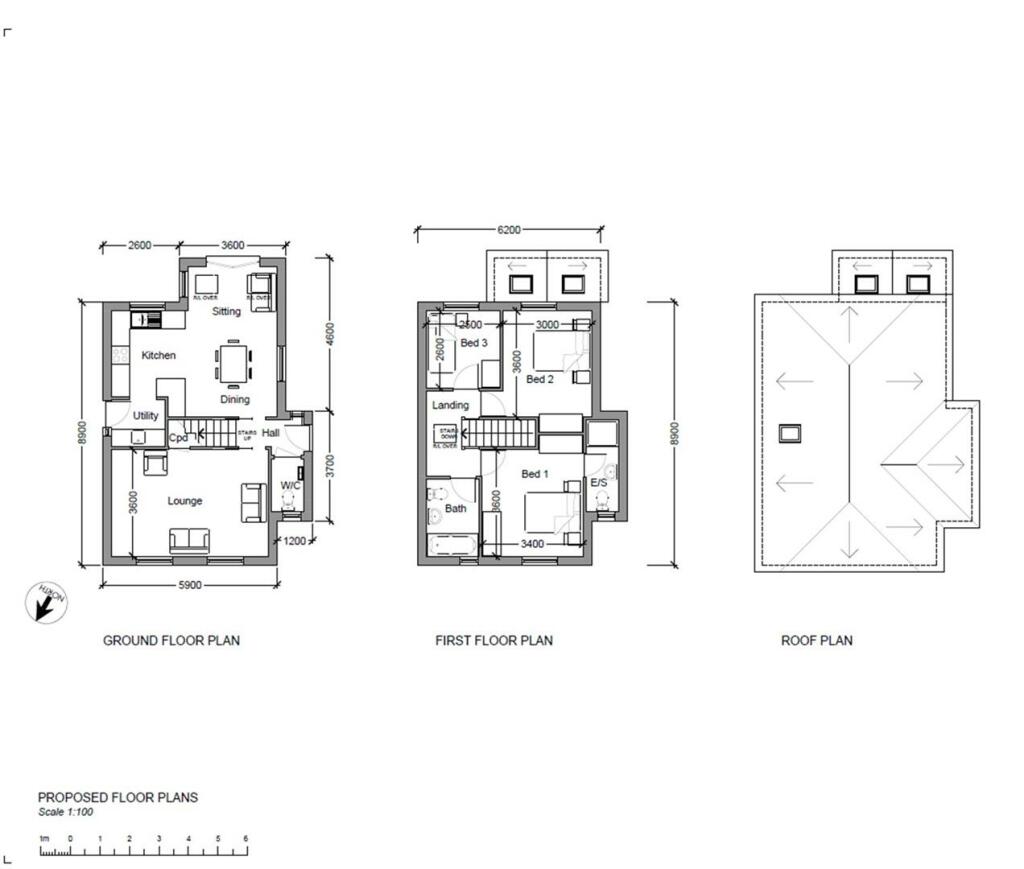
A self-build plot situated in the popular south Suffolk town of Diss. The plot, planning application number: DC/21/01981, has planning permission granted for a fantastic three-bedroom detached house. Internally, permission grants an entry hall, WC/Cloakroom, living room and an open plan kitchen/d...
Property Oracle says ..
This listing presents a self-build opportunity in Palgrave, a village near Diss, Suffolk. The property is a plot of land with planning permission already granted (DC/21/01981) for a three-bedroom detached house. The existing foundation has been laid, but the site shows signs of needing further work and landscaping before construction of the approved plans begins. The architectural plans show a modern, two-storey house, with a garden and off-street parking provided for in the site and roof plan provided. Palgrave itself is a small village, close to Diss which offers better access to transport (2.08 KM to Diss railway station), schools (Palgrave Church of England Primary School is within walking distance), and additional amenities. The asking price seems potentially competitive in the context of the local market, although more detailed information about the exact plot size and the anticipated construction costs would improve the evaluation. The inclusion of planning permission reduces the risk and complexity usually associated with self-build projects. Buyers should still factor in all costs associated with the construction project before making a purchase decision.
Therefore, we give this property 5 / 10. *Disclaimer: This is our option and does constitute a recommendation or financial advice. Do your own research. *
- Price
- 7
- Condition
- 4
- Location
- 7
- Land
- 5
- Bedrooms
- 0
- Bathrooms
- 0
The heatmap indicates the level of crime in the area. The color of the heatmap indicates the crime severity and recency.
Metrics Year-on-Year
- Average area value
- 502,545.00 £Increased by 1.31 %
- Average area rental value
- 2,331.00 £/moIncreased by 124.57 %
- Est rental Yield
- 5.57 %Increased by 121.91 %
- Crime Rate
- 4.00 %Unchanged by 0.00 %
Agent Activity
Parsons & Co created the listing.
Nearby Schools
| Name | Type | Ofsted | Distance |
|---|---|---|---|
| Palgrave Church Of England Primary School | Academy Converter | Good | 0.23 KM |
| Diss Church Of England Junior Academy | Academy Sponsor Led | 1.32 KM | |
| Diss Children'S Centre | Children's Centre | 1.59 KM | |
| Diss Infant Academy And Nursery | Academy Converter | 1.68 KM | |
| Diss High School | Academy Converter | Good | 1.82 KM |
Images
Nearby Streets
| Name | Average Price | Average Sqft | Distance |
|---|---|---|---|
| Church Farm Close | £ 0 | 0 | 0.00 KM |
| Job's Lane | £ 525,000 | 0 | 0.00 KM |
| Market Place | £ 0 | 0 | 0.00 KM |
| Cotman Close | £ 0 | 0 | 0.00 KM |
| Saint Mary's Court | £ 115,000 | 0 | 0.00 KM |
Nearby Transport
| Name | NLC | TLC | Distance |
|---|---|---|---|
| Diss | 7348 | DIS | 2.08 KM |
Nearby Listings
| Address | Price | Type | Score | Distance |
|---|---|---|---|---|
| Lows Lane, Palgrave, Diss | £ 155,000 | BUY | 5 / 10 | 0.00 KM |
| Lows Lane, Palgrave, Diss | £ 400,000 | BUY | 7 / 10 | 0.02 KM |
| Lows Lane, Palgrave | £ 475,000 | BUY | 7 / 10 | 0.03 KM |
| The Green, Palgrave | £ 265,000 | BUY | 6 / 10 | 0.08 KM |
| The Green, Palgrave | £ 270,000 | BUY | Unknown | 0.15 KM |
Nearby Properties
| Address | Price | Distance |
|---|---|---|
| Rose Cottage | £ 358,000 | 0.02 KM |
| Yew Tree | £ 311,000 | 0.02 KM |
| Homestead | £ 325,000 | 0.02 KM |
| Cedar Wood | £ 2,000 | 0.03 KM |
| Plemont | £ 330,000 | 0.03 KM |