Jackson-Stops says ..
In need of renovation this fabulous detached house is now ready for a new family to make it home. The house stands well back from the road, in over ½ an acre. Approached by a long private driveway, this deceptive detached house offers the luxury of rural living, but still has ...
Property Oracle says ..
Shay Lane is located in Hale Barns, a desirable village in Trafford, Greater Manchester. The property benefits from being relatively close to Manchester Airport (3.23 KM) and several train stations providing links to Manchester and beyond. There are also a number of well-regarded primary and secondary schools within a reasonable distance, including Well Green Primary School (rated Outstanding by Ofsted) which is approximately 1.74 KM away. This makes the location attractive to families.
The property appears to be in need of some modernisation. Whilst the structure looks sound, many of the interior finishes, such as wallpaper, carpets, and some fixtures, appear dated. Some rooms show signs of wear and tear and could benefit from refurbishment to bring them up to modern standards. The kitchen and bathrooms also seem to require updating.
The property includes a substantial garden, which is a significant feature given the scarcity of such large plots in this area. The garden is visible in the provided photos, showing a sizable lawn and paved patio areas. This adds to the property’s appeal.
Considering the list price of £950,000, the average price in the area of £1,248,254, and the average price per square foot of £582, the property seems reasonably priced, potentially even slightly below market value, especially considering the size of the land. However, the need for modernisation should be factored into any offer. The similar properties on Shay Lane support this assessment, with one being listed at £895,000 and another at £950,000. These properties also benefit from a semi-rural setting, which adds to their desirability. The higher priced properties in the area are considerably larger and higher spec.
Therefore, we give this property 7 / 10. *Disclaimer: This is our option and does constitute a recommendation or financial advice. Do your own research. *
- Price
- 7
- Condition
- 6
- Location
- 9
- Land
- 8
- Bedrooms
- 5
- Bathrooms
- 3
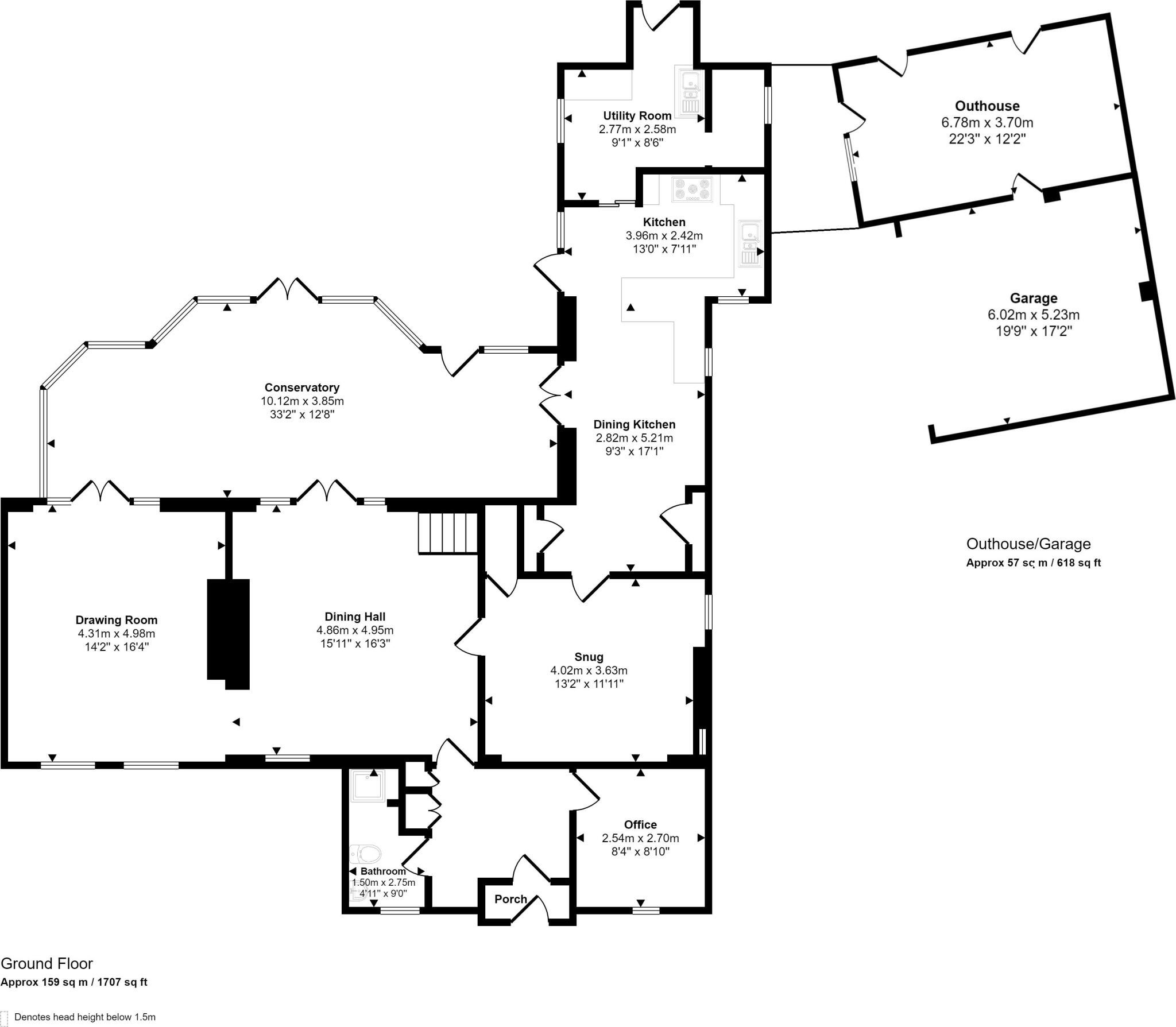
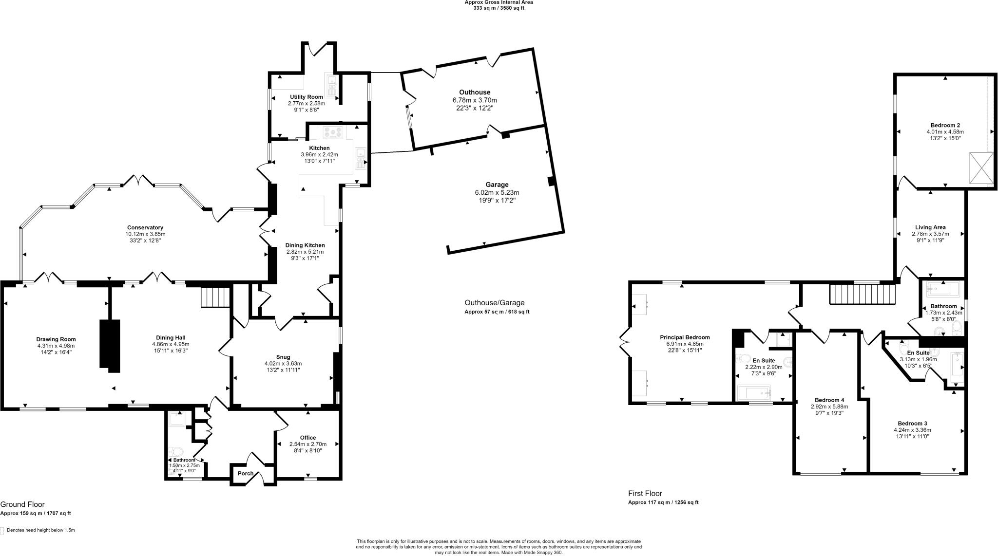
- Sqft (est)
- 1,655.00
- Lot (est)
- 1,707.00
The heatmap indicates the level of crime in the area. The color of the heatmap indicates the crime severity and recency.
Metrics Year-on-Year
- Average area value
- 1,178,077.00 £Increased by 16.31 %
- Est sale value
- 832,465.00 £Increased by 4.14 %
- Average area rental value
- 4,832.00 £/moIncreased by 0.56 %
- Est letting value
- 3,310.00 £/moUnchanged by 0.00 %
- Est rental Yield
- 4.92 %Decreased by 13.53 %
- Crime Rate
- 0.00 %
Agent Activity
Jackson-Stops created the listing.
Nearby Schools
| Name | Type | Ofsted | Distance |
|---|---|---|---|
| Elmridge Primary School | Academy Converter | 1.23 KM | |
| St Ambrose Prep School | Other Independent School | 1.73 KM | |
| Well Green Primary School | Community School | Outstanding | 1.74 KM |
| Saint Ambrose College | Academy Converter | Good | 2.07 KM |
| Broomwood Primary School | Community School | Good | 2.30 KM |
Images
Nearby Streets
| Name | Average Price | Average Sqft | Distance |
|---|---|---|---|
| Butteryhouse Lane | £ 0 | 0 | 0.00 KM |
| Cottrell Road | £ 700,000 | 0 | 0.00 KM |
| Pinfold Close | £ 0 | 0 | 0.00 KM |
| Croft Close | £ 0 | 0 | 0.00 KM |
| Whitebeam Close | £ 325,000 | 0 | 0.00 KM |
Nearby Transport
| Name | NLC | TLC | Distance |
|---|---|---|---|
| Manchester Airport | 2961 | MIA | 3.23 KM |
| Ashley | 2850 | ASY | 4.85 KM |
| Hale (Manchester) | 2845 | HAL | 5.15 KM |
| Navigation Road | 2940 | NVR | 5.31 KM |
| Altrincham | 2806 | ALT | 5.32 KM |
Nearby Listings
| Address | Price | Type | Score | Distance |
|---|---|---|---|---|
| Shay Lane, Hale Barns, WA15 | £ 950,000 | BUY | 7 / 10 | 0.00 KM |
| Shay Lane, Hale Barns WA15 | £ 1,500,000 | BUY | 9 / 10 | 0.20 KM |
| Brooks Drive, Hale Barns, WA15 | £ 1,950,000 | BUY | 7 / 10 | 0.40 KM |
| Buttery House Lane, Hale, WA15 | £ 895,000 | BUY | 8 / 10 | 0.47 KM |
| Brooks Drive, Hale Barns, Altrincham, Greater Manchester, WA15 | £ 1,000,000 | BUY | 7 / 10 | 0.63 KM |
Nearby Properties
| Address | Price | Distance |
|---|---|---|
| Rainford | £ 600,000 | 0.15 KM |
| Mayfield | £ 466,500 | 0.15 KM |
| Beech Mount | £ 223,000 | 0.15 KM |
| Oakdene | £ 528,000 | 0.15 KM |
| Charleston | £ 585,000 | 0.15 KM |