ST
Northwood Avenue, Purley, CR8
By Streets Ahead
£ 660,000
Reviews
3 out of 5 stars
Streets Ahead says ..
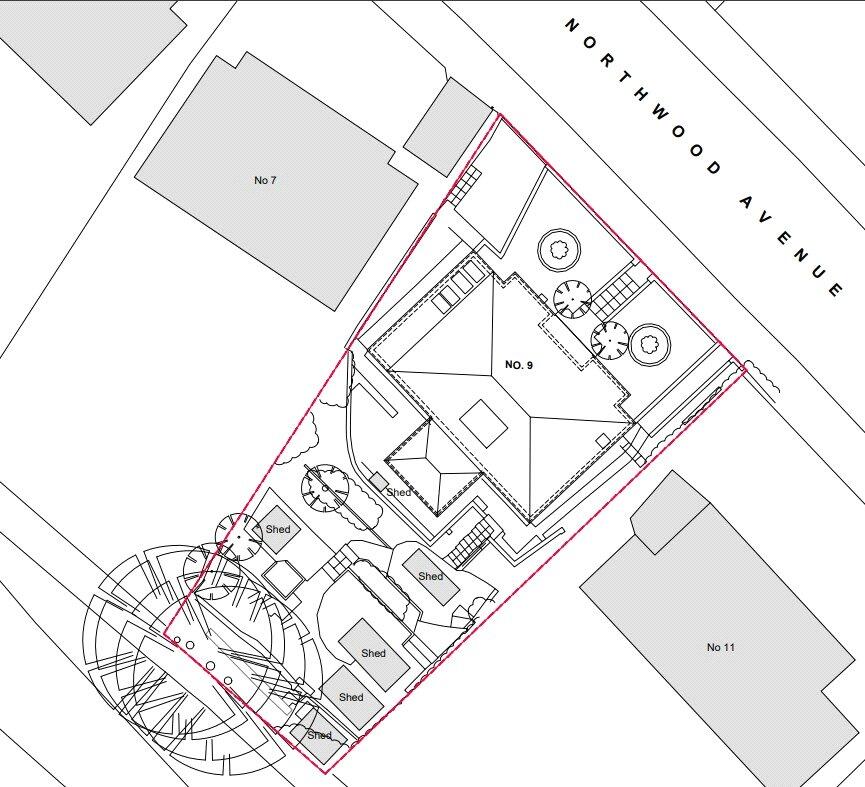
Offered for sale is this consented development opportunity with planning granted to demolish existing buildings and construct a brand new scheme of 5 apartments each with their own private outside space.
Property Oracle says ..
Therefore, we give this property 6 / 10. *Disclaimer: This is our option and does constitute a recommendation or financial advice. Do your own research. *
- Price
- 6
- Condition
- 5
- Location
- 8
- Land
- 7
- Bedrooms
- 0
- Bathrooms
- 0
The heatmap indicates the level of crime in the area. The color of the heatmap indicates the crime severity and recency.
Metrics Year-on-Year
- Average area value
- 616,068.00 £Decreased by 0.97 %
- Average area rental value
- 1,898.00 £/moDecreased by 5.95 %
- Est rental Yield
- 3.70 %Decreased by 4.88 %
- Crime Rate
- 4.00 %Unchanged by 0.00 %
from 622,109.00 £
from 2,018.00 £/mo
from 3.89 %
from 4.00 %
Agent Activity
Streets Ahead created the listing.
Nearby Schools
| Name | Type | Ofsted | Distance |
|---|---|---|---|
| St Nicholas School | Community Special School | Good | 0.70 KM |
| Beaumont Primary School | Community School | Outstanding | 0.78 KM |
| St David'S School | Other Independent School | 0.94 KM | |
| Purley Nursery School | Local Authority Nursery School | Outstanding | 0.97 KM |
| Christ Church Cofe Primary School (Purley) | Voluntary Aided School | Good | 1.22 KM |
Images
Nearby Streets
| Name | Average Price | Average Sqft | Distance |
|---|---|---|---|
| Foxley Hall | £ 0 | 0 | 0.00 KM |
| Gables Court | £ 130,000 | 0 | 0.00 KM |
| Purley Road | £ 350,000 | 0 | 0.00 KM |
| Higher Drive | £ 555,000 | 0 | 0.00 KM |
| Pheasant Close | £ 256,667 | 0 | 0.00 KM |
Nearby Transport
| Name | NLC | TLC | Distance |
|---|---|---|---|
| Purley | 5379 | PUR | 0.55 KM |
| Reedham (London) | 5431 | RHM | 0.85 KM |
| Riddlesdown | 5432 | RDD | 1.84 KM |
| Kenley | 5419 | KLY | 1.90 KM |
| Coulsdon Town | 5382 | CDN | 2.38 KM |
Nearby Listings
| Address | Price | Type | Score | Distance |
|---|---|---|---|---|
| Northwood Avenue, Purley CR8 | £ 500,000 | BUY | 7 / 10 | 0.00 KM |
| Northwood Avenue, Purley, CR8 | £ 660,000 | BUY | 6 / 10 | 0.00 KM |
| Elysian House, 2 Northwood Avenue, Purley, Surrey, CR8 | £ 475,000 | BUY | 6 / 10 | 0.07 KM |
| Northwood Avenue, Purley, CR8 | £ 625,000 | BUY | Unknown | 0.08 KM |
| Higher Drive, Purley | £ 650,000 | BUY | 7 / 10 | 0.09 KM |
Nearby Properties
| Address | Price | Distance |
|---|---|---|
| 16 Higher Drive | £ 590,000 | 0.09 KM |
| 26 Higher Drive | £ 736,250 | 0.09 KM |
| 28 Higher Drive | £ 710,000 | 0.09 KM |
| 16a Higher Drive | £ 580,000 | 0.09 KM |
| 2 Higher Drive | £ 311,000 | 0.09 KM |