Gilson Bailey says ..
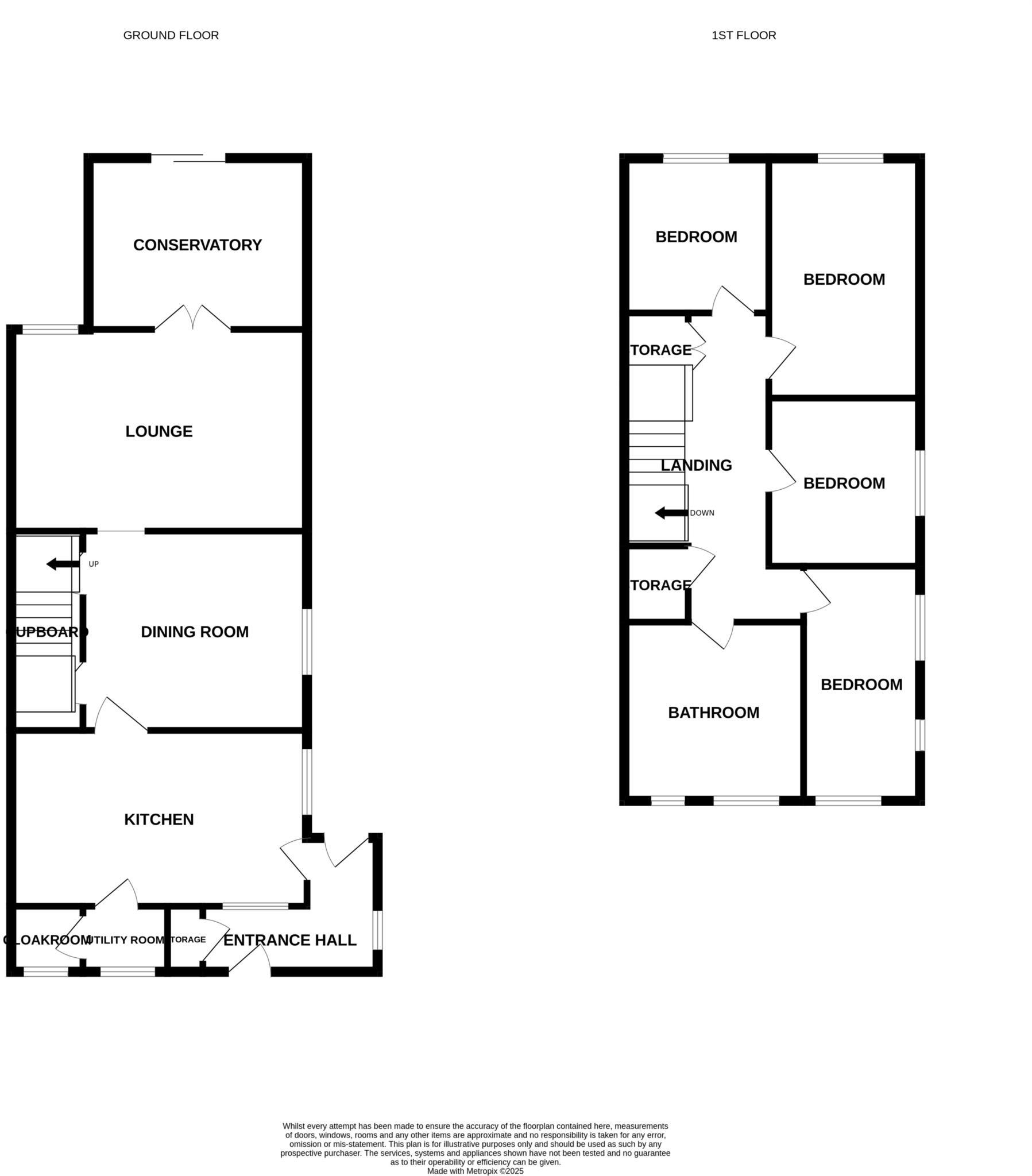
** CHARMING FAMILY HOME** Gilson Bailey are pleased to offer this charming four bedroom family home, originally part of an 1800s mill house and beautifully combining character with modern living. The ground floor offers a bright fitted kitchen with Range master cooker,
Property Oracle says ..
This is a 4-bedroom semi-detached property located on Mill Lane in Acle, Broadland, Norfolk. The house offers 1,390 sqft of living space and is listed for £350,000. The property includes a garden, driveway parking, and is conveniently located near transportation and schools. While the interior design is somewhat dated, the property is generally well-maintained and offers ample space for a family. The proximity to Acle train station and local schools adds to the property’s appeal. The house could benefit from some modernisation to enhance its overall value and appeal.
Therefore, we give this property 6 / 10. *Disclaimer: This is our option and does constitute a recommendation or financial advice. Do your own research. *
- Price
- 7
- Condition
- 6
- Location
- 7
- Land
- 6
- Bedrooms
- 4
- Bathrooms
- 1
- Sqft (est)
- 1,390.00
The heatmap indicates the level of crime in the area. The color of the heatmap indicates the crime severity and recency.
Metrics Year-on-Year
- Average area value
- 310,000.00 £Decreased by 21.76 %
- Est sale value
- 658,860.00 £Increased by 36.21 %
- Average area rental value
- 875.00 £/moDecreased by 54.85 %
- Est letting value
- 1,390.00 £/moUnchanged by 0.00 %
- Est rental Yield
- 3.39 %Decreased by 42.25 %
- Crime Rate
- 72.00 %Unchanged by 0.00 %
Agent Activity
Gilson Bailey created the listing.
Nearby Schools
| Name | Type | Ofsted | Distance |
|---|---|---|---|
| Acle Academy | Academy Converter | Requires improvement | 0.41 KM |
| (Acle) Marshes Children'S Centre | Children's Centre | 0.56 KM | |
| Acle St Edmund Voluntary Controlled Primary School | Voluntary Controlled School | Good | 1.14 KM |
| Fairhaven Church Of England Voluntary Aided Primary School | Voluntary Aided School | Good | 5.10 KM |
| Freethorpe Community Primary And Nursery School | Community School | Good | 5.95 KM |
Images
Nearby Streets
| Name | Average Price | Average Sqft | Distance |
|---|---|---|---|
| Mill Crescent | £ 0 | 0 | 0.00 KM |
| Cavell Road | £ 0 | 0 | 0.00 KM |
| Glebe Road | £ 0 | 0 | 0.00 KM |
| Nichols Grove | £ 0 | 0 | 0.00 KM |
| Calthorpe Close | £ 0 | 0 | 0.00 KM |
Nearby Transport
| Name | NLC | TLC | Distance |
|---|---|---|---|
| Acle | 7286 | ACL | 0.48 KM |
| Lingwood | 7305 | LGD | 6.27 KM |
| Cantley | 7292 | CNY | 7.51 KM |
| Reedham (Norfolk) | 7316 | REE | 8.46 KM |
| Buckenham | 7290 | BUC | 9.35 KM |
Nearby Listings
| Address | Price | Type | Score | Distance |
|---|---|---|---|---|
| Mill Lane, Acle | £ 350,000 | BUY | 6 / 10 | 0.00 KM |
| Mill Lane, Acle | £ 475,000 | BUY | Unknown | 0.00 KM |
| Mill Lane, Acle | £ 550,000 | BUY | 7 / 10 | 0.01 KM |
| Mill Lane, Acle, Norwich | £ 345,000 | BUY | 7 / 10 | 0.05 KM |
| Mill Crescent, Acle, Norwich | £ 270,000 | BUY | 7 / 10 | 0.08 KM |
Nearby Properties
| Address | Price | Distance |
|---|---|---|
| 3 Mill Lane | £ 189,950 | 0.01 KM |
| 21 Mill Lane | £ 203,000 | 0.01 KM |
| 33 Mill Lane | £ 243,000 | 0.01 KM |
| 5 Mill Lane | £ 200,000 | 0.01 KM |
| 17 Mill Lane | £ 320,000 | 0.01 KM |