FO
Fairfield Park, Lyme Regis, Dorset, DT7
By Fortnam Smith & Banwell
£ 300,000
Reviews
3 out of 5 stars
Fortnam Smith & Banwell says ..
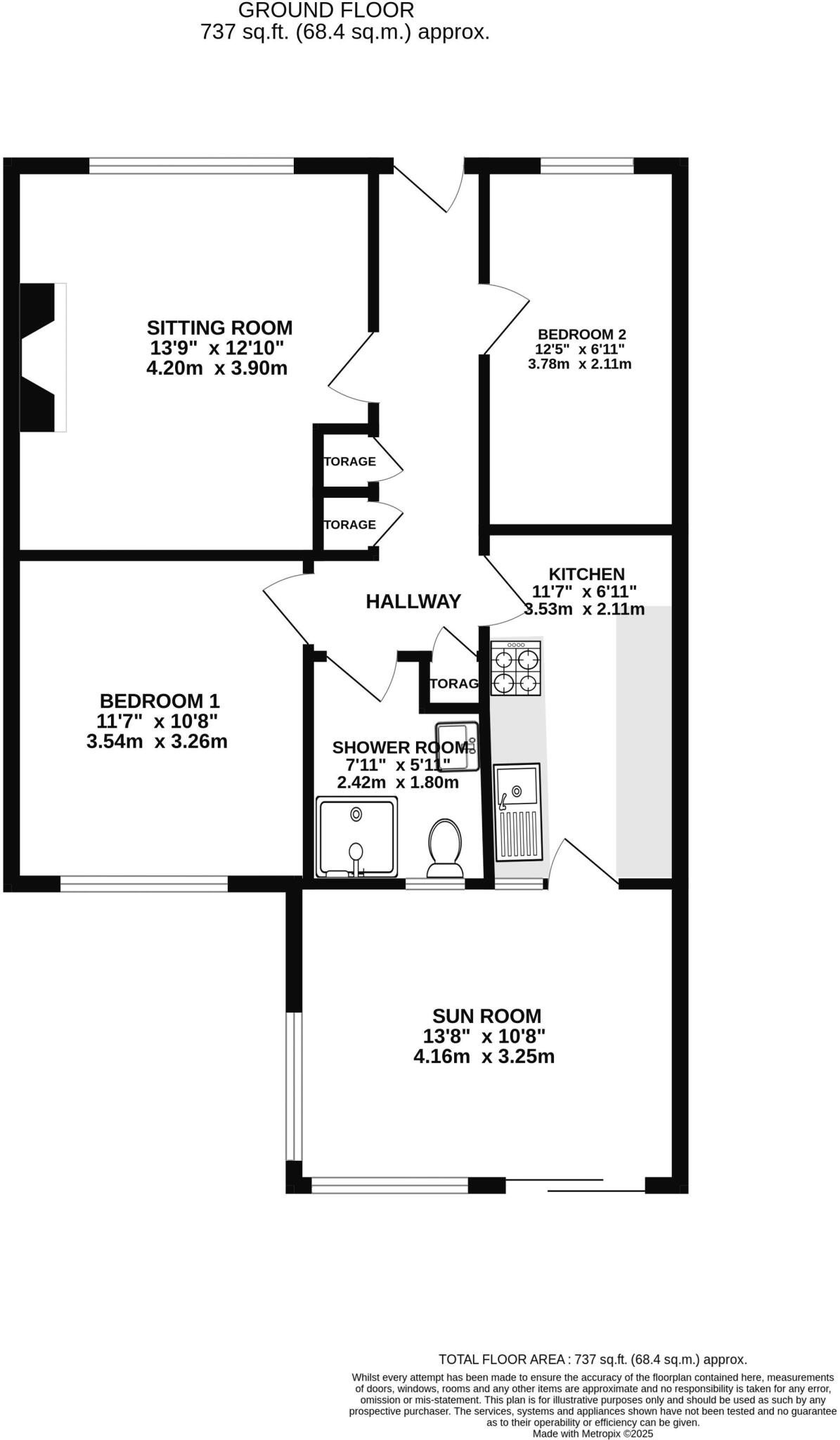
This well presented terraced bungalow is situated in a peaceful and popular residential location on the eastern side of Lyme Regis. The property benefits from lovely views across the town and to the sea. It is within walking distance of the town centre.
Property Oracle says ..
Therefore, we give this property 6 / 10. *Disclaimer: This is our option and does constitute a recommendation or financial advice. Do your own research. *
- Price
- 7
- Condition
- 6
- Location
- 7
- Land
- 6
- Bedrooms
- 2
- Bathrooms
- 1
- Sqft (est)
- 737.00
The heatmap indicates the level of crime in the area. The color of the heatmap indicates the crime severity and recency.
Metrics Year-on-Year
- Average area value
- 547,942.00 £Decreased by 8.74 %
- Est sale value
- 335,335.00 £Decreased by 25.04 %
- Average area rental value
- 1,256.00 £/moIncreased by 35.78 %
- Est letting value
- 737.00 £/mo
- Est rental Yield
- 2.75 %Increased by 48.65 %
- Crime Rate
- 50.00 %Unchanged by 0.00 %
from 600,447.00 £
from 447,359.00 £
from 925.00 £/mo
from 0.00 £/mo
from 1.85 %
from 50.00 %
Agent Activity
Fortnam Smith & Banwell created the listing.
Nearby Schools
| Name | Type | Ofsted | Distance |
|---|---|---|---|
| St Michael'S Church Of England Voluntary Aided Primary School, Lyme Regis | Voluntary Aided School | Requires improvement | 0.41 KM |
| Beaminster And Lyme Regis Sure Start Children'S Centre | Children's Centre | 0.41 KM | |
| The Woodroffe School | Foundation School | Outstanding | 1.66 KM |
| Mrs Ethelston'S Cofe Primary Academy | Academy Converter | Good | 2.78 KM |
| Charmouth Primary School | Community School | Requires improvement | 3.61 KM |
Images
Nearby Streets
| Name | Average Price | Average Sqft | Distance |
|---|---|---|---|
| The Close | £ 775,000 | 0 | 0.00 KM |
| Summerhill Road | £ 0 | 0 | 0.00 KM |
| Manor Avenue | £ 0 | 0 | 0.00 KM |
| Dolphin Close | £ 0 | 0 | 0.00 KM |
| Monmouth Street | £ 0 | 0 | 0.00 KM |
Nearby Transport
| Name | NLC | TLC | Distance |
|---|---|---|---|
| Axminster | 5714 | AXM | 9.40 KM |
Nearby Listings
| Address | Price | Type | Score | Distance |
|---|---|---|---|---|
| Fairfield Park, Lyme Regis, Dorset, DT7 | £ 300,000 | BUY | 6 / 10 | 0.00 KM |
| Fairfield Park, Lyme Regis | £ 260,000 | BUY | 7 / 10 | 0.08 KM |
| 'The Langford', Monmouth Park, Lyme Regis | £ 850,000 | BUY | 7 / 10 | 0.10 KM |
| Fairfield Park, Lyme Regis, DT7 | £ 625,000 | BUY | 7 / 10 | 0.12 KM |
| Henrys Way, Lyme Regis, Dorset, DT7 | £ 380,000 | BUY | 7 / 10 | 0.14 KM |
Nearby Properties
| Address | Price | Distance |
|---|---|---|
| 29 Fairfield Park | £ 310,000 | 0.08 KM |
| 60 Fairfield Park | £ 280,000 | 0.08 KM |
| 40 Fairfield Park | £ 183,000 | 0.08 KM |
| 42 Fairfield Park | £ 166,500 | 0.08 KM |
| 61 Fairfield Park | £ 245,000 | 0.08 KM |