Goose Lane, Little Hallingbury, Bishop's Stortford, CM22
By Wright & Co
£ 899,950
Reviews
3 out of 5 stars
Wright & Co says ..
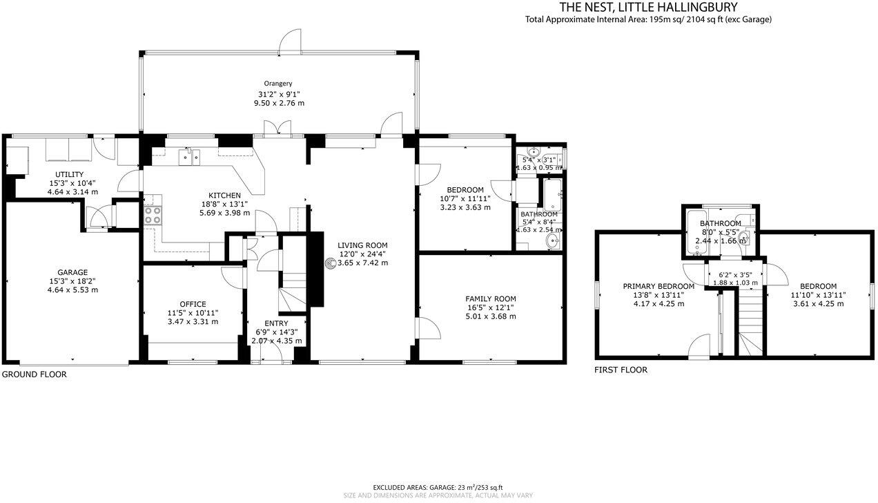
A four bedroom detached home located in the rarely available location of Goose Lane within the idyllic Wrights Green. This fantastic four bedroom home offers a wonderful open plan kitchen, utility room, sitting room with log burner, magnificent orangery, family room, snug/bedroom 4,...
Property Oracle says ..
This is a detached property located on Goose Lane, Little Hallingbury, Bishop’s Stortford. It features four bedrooms and two bathrooms. The property is situated in a semi-rural location, offering a balance between countryside living and accessibility to nearby towns and transport links. The property appears to be in good condition, with a modern kitchen and well-maintained interiors. It also benefits from a substantial garden, offering ample outdoor space. The property is listed for £899,950, which seems reasonable given its size, condition, and location. Nearby schools include Little Hallingbury Church Of England Voluntary Aided Primary School, which has a ‘Good’ Ofsted rating. The nearest train station is Sawbridgeworth, located 3.85 KM away.
Therefore, we give this property 7 / 10. *Disclaimer: This is our option and does constitute a recommendation or financial advice. Do your own research. *
- Price
- 7
- Condition
- 8
- Location
- 7
- Land
- 7
- Bedrooms
- 4
- Bathrooms
- 2
- Sqft (est)
- 2,258.11
The heatmap indicates the level of crime in the area. The color of the heatmap indicates the crime severity and recency.
Metrics Year-on-Year
- Average area value
- 310,833.00 £Decreased by 19.99 %
- Est sale value
- 1,009,375.17 £Decreased by 3.25 %
- Average area rental value
- 1,673.00 £/moIncreased by 30.50 %
- Est letting value
- 4,516.22 £/moIncreased by 100.00 %
- Est rental Yield
- 6.46 %Increased by 63.13 %
- Crime Rate
- 43.00 %Unchanged by 0.00 %
Agent Activity
Wright & Co created the listing.
Nearby Schools
| Name | Type | Ofsted | Distance |
|---|---|---|---|
| Little Hallingbury Church Of England Voluntary Aided Primary School | Voluntary Aided School | Good | 1.12 KM |
| Howe Green House School | Other Independent School | 1.36 KM | |
| Hatfield Heath Primary School | Academy Converter | Good | 3.11 KM |
| Sheering Church Of England Voluntary Controlled Primary School | Voluntary Controlled School | Good | 3.42 KM |
| Spellbrook Cofe Primary School | Voluntary Controlled School | Requires improvement | 3.51 KM |
Images
Nearby Streets
| Name | Average Price | Average Sqft | Distance |
|---|---|---|---|
| Old Mill Lane | £ 0 | 0 | 0.00 KM |
Nearby Transport
| Name | NLC | TLC | Distance |
|---|---|---|---|
| Sawbridgeworth | 6806 | SAW | 3.85 KM |
| Bishops Stortford | 6800 | BIS | 4.41 KM |
| Stansted Mountfitchet | 6833 | SST | 7.53 KM |
| Harlow Mill | 6804 | HWM | 7.94 KM |
| Stansted Airport | 6834 | SSD | 9.99 KM |
Nearby Listings
| Address | Price | Type | Score | Distance |
|---|---|---|---|---|
| Goose Lane, Little Hallingbury, Bishop's Stortford, CM22 | £ 899,950 | BUY | 7 / 10 | 0.00 KM |
| Sutton Acres, Little Hallingbury, Bishop's Stortford, CM22 | £ 785,000 | BUY | Unknown | 0.12 KM |
| Sutton Acres, Little Hallingbury, Bishop's Stortford, CM22 | £ 800,000 | BUY | 7 / 10 | 0.12 KM |
| Wrights Green, Little Hallingbury, Bishops Stortford, Hertfordshire, CM22 | £ 975,000 | BUY | Unknown | 0.21 KM |
| Wrights Green Lane, Little Hallingbury, Bishop's Stortford, CM22 | £ 550,000 | BUY | Unknown | 0.39 KM |
Nearby Properties
| Address | Price | Distance |
|---|---|---|
| Laburnum Tree House | £ 520,000 | 0.10 KM |
| Birches | £ 400,000 | 0.10 KM |
| Harlequin Cottage | £ 380,000 | 0.10 KM |
| Bakers | £ 582,500 | 0.10 KM |
| Walhalla | £ 623,000 | 0.11 KM |