Dolydd Lane, Cefn Mawr
By Town & Country Property Services
£ 475,000
Reviews
4 out of 5 stars
Town & Country Property Services says ..
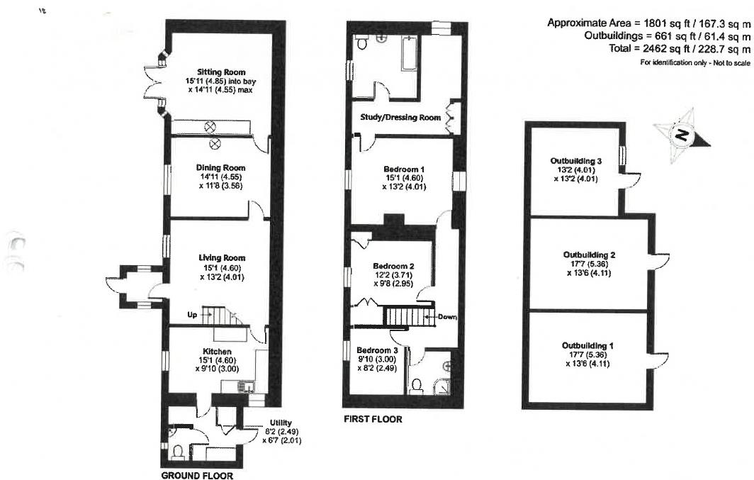
Nestled in a private, tucked away position of Cefn Mawr, Dolydd Cottage presents a delightful opportunity to acquire a spacious detached country cottage with fantastic gardens. This inviting property boasts three well-proportioned bedrooms, making it an ideal home for families or those seeking a ...
Property Oracle says ..
Therefore, we give this property 8 / 10. *Disclaimer: This is our option and does constitute a recommendation or financial advice. Do your own research. *
- Price
- 8
- Condition
- 8
- Location
- 7
- Land
- 9
- Bedrooms
- 3
- Bathrooms
- 1
- Sqft (est)
- 1,205.91
The heatmap indicates the level of crime in the area. The color of the heatmap indicates the crime severity and recency.
Metrics Year-on-Year
- Average area value
- 502,500.00 £Increased by 40.73 %
- Est sale value
- 542,659.50 £Increased by 89.08 %
- Average area rental value
- 961.00 £/moDecreased by 1.13 %
- Est letting value
- 0.00 £/mo
- Est rental Yield
- 2.29 %Decreased by 29.97 %
- Crime Rate
- 9.00 %Unchanged by 0.00 %
from 357,077.00 £
from 287,006.58 £
from 972.00 £/mo
from 0.00 £/mo
from 3.27 %
from 9.00 %
Agent Activity
Town & Country Property Services created the listing.
Nearby Schools
| Name | Type | Ofsted | Distance |
|---|---|---|---|
| Ysgol Min-Y-Ddol | Welsh Establishment | 0.69 KM | |
| Cefn Mawr Primary School | Welsh Establishment | 0.72 KM | |
| Ysgol Acrefair | Welsh Establishment | 1.06 KM | |
| Froncysyllte C.P. School | Welsh Establishment | 1.83 KM | |
| Rhosymedre Community Primary School | Welsh Establishment | 2.28 KM |
Images
Nearby Streets
| Name | Average Price | Average Sqft | Distance |
|---|---|---|---|
| Queen Street | £ 205,000 | 0 | 0.00 KM |
| Bowen's Lane | £ 0 | 0 | 0.00 KM |
| Railway Road | £ 0 | 0 | 0.00 KM |
| Oxford Street | £ 0 | 0 | 0.00 KM |
| The Sycamores | £ 0 | 0 | 0.00 KM |
Nearby Transport
| Name | NLC | TLC | Distance |
|---|---|---|---|
| Ruabon | 4477 | RUA | 4.45 KM |
| Chirk | 4449 | CRK | 4.46 KM |
| Gobowen | 4457 | GOB | 9.79 KM |
Nearby Listings
| Address | Price | Type | Score | Distance |
|---|---|---|---|---|
| Dolydd Lane, Cefn Mawr | £ 475,000 | BUY | 8 / 10 | 0.00 KM |
| Dolydd Road, Cefn Mawr, Wrexham | £ 129,950 | BUY | 6 / 10 | 0.20 KM |
| Trem Dolydd, Cefn Mawr, Wrexham, LL14 | £ 140,000 | BUY | 7 / 10 | 0.32 KM |
| Queen Street, Wrexham, Wrexham, LL14 | £ 200,000 | BUY | 6 / 10 | 0.35 KM |
| Queen Street | £ 165,000 | BUY | 6 / 10 | 0.38 KM |
Nearby Properties
| Address | Price | Distance |
|---|---|---|
| 84 Heol Cefnydd | £ 124,950 | 0.29 KM |
| 10 Heol Cefnydd | £ 128,000 | 0.29 KM |
| 55 Heol Cefnydd | £ 97,000 | 0.30 KM |
| 77 Heol Cefnydd | £ 97,000 | 0.30 KM |
| 47 Heol Cefnydd | £ 118,000 | 0.30 KM |