The Lantern, Borough, SE1
UR

The Lantern, Borough, SE1

By Urban Spaces

£ 3,500,000

Reviews

3 out of 5 stars

Urban Spaces says ..

Set atop the prestigious Lantern development in the heart of SE1, this truly exceptional penthouse apartment spans the top two floors and is the embodiment of spatial elegance, thoughtful design, and panoramic living.

Property Oracle says ..

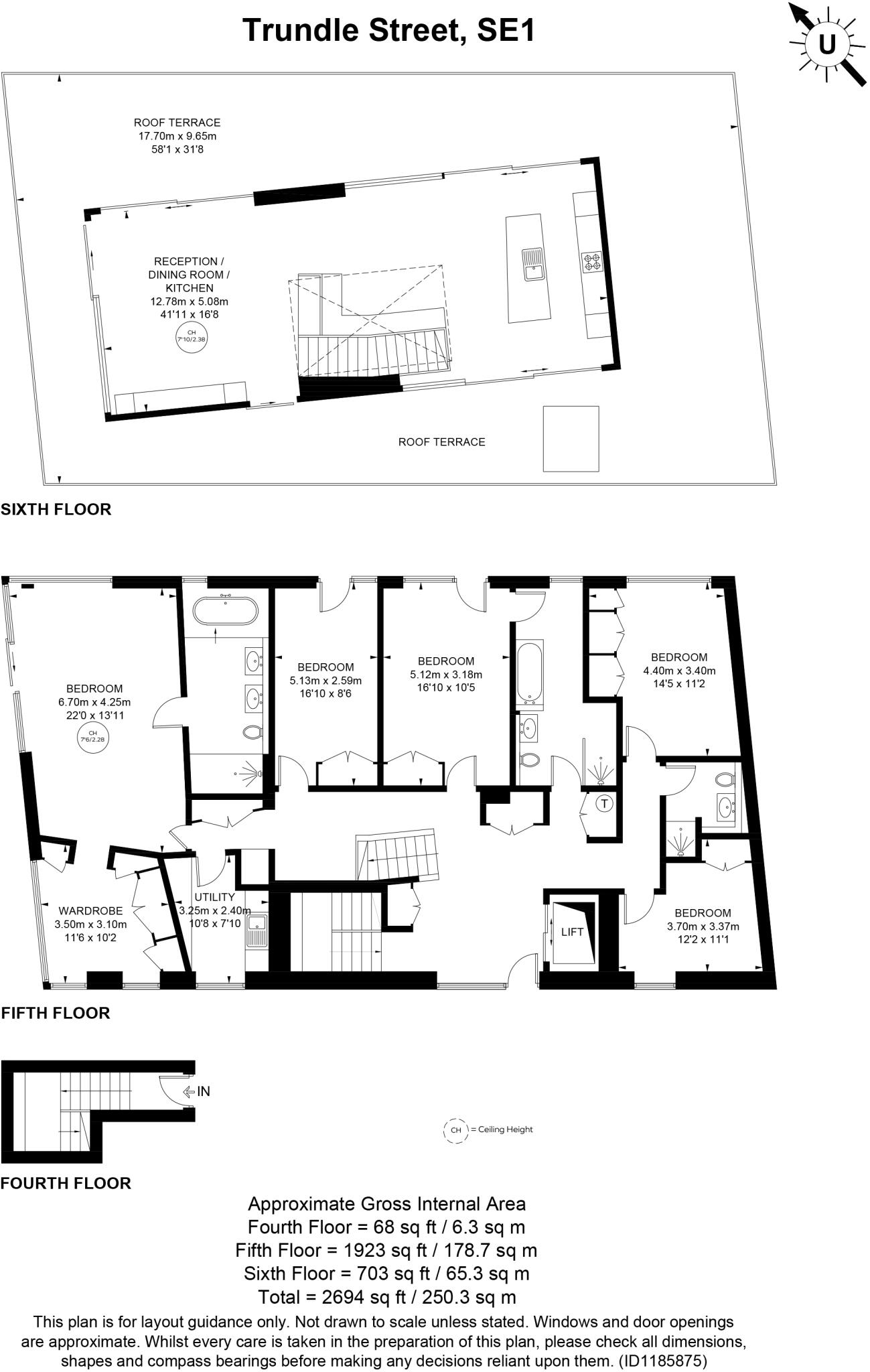
This property is a stunning modern penthouse apartment located in the Borough & Bankside area of Southwark, London. The apartment boasts 5 bedrooms and 3 bathrooms, and offers exceptional views of the London skyline. The property is finished to a high standard with modern fixtures and fittings throughout. The open-plan living area is spacious and bright, and the kitchen is well-equipped. The apartment also benefits from a large private terrace. The location is excellent, with easy access to public transport links and a range of amenities. The price is high, but reflects the premium location and quality of the property.

Therefore, we give this property 7 / 10. *Disclaimer: This is our option and does constitute a recommendation or financial advice. Do your own research. *

Price
7
Condition
10
Location
10
Land
1
Bedrooms
5
Bathrooms
3
Sqft (est)
1,658.99

The heatmap indicates the level of crime in the area. The color of the heatmap indicates the crime severity and recency.

Metrics Year-on-Year

Average area value
930,904.00 £
Decreased by 10.34 %
from 1,038,249.00 £
Est sale value
2,063,783.56 £
Increased by 7.61 %
from 1,917,792.44 £
Average area rental value
2,675.00 £/mo
Increased by 1.52 %
from 2,635.00 £/mo
Est letting value
4,976.97 £/mo
Increased by 50.00 %
from 3,317.98 £/mo
Est rental Yield
3.45 %
Increased by 13.11 %
from 3.05 %
Crime Rate
5.00 %
Unchanged by 0.00 %
from 5.00 %

Agent Activity

  • Urban Spaces created the listing.

Nearby Schools

NameTypeOfstedDistance
Charles Dickens Primary SchoolAcademy Converter0.10 KM
Haberdashers' Aske'S Borough AcademyFree Schools0.13 KM
The Cathedral School Of St Saviour And St Mary OverieVoluntary Aided SchoolOutstanding0.35 KM
Saint Joseph'S Catholic Primary School, The BoroughVoluntary Aided SchoolGood0.49 KM
London Christian SchoolOther Independent School0.63 KM

Images

1 TRUNDLE STREET (41).jpg 1 TRUNDLE STREET (23).jpg 1 TRUNDLE STREET (40).jpg 1 TRUNDLE STREET (28).jpg 1 TRUNDLE STREET (20).jpg 1 TRUNDLE STREET (29).jpg 1 TRUNDLE STREET (31).jpg 1 TRUNDLE STREET (32).jpg 1 TRUNDLE STREET (34).jpg 1 TRUNDLE STREET (37).jpg TRUNDLE STREET (1).jpg 1 TRUNDLE STREET (25).jpg 1 TRUNDLE STREET (2).jpg 1 TRUNDLE STREET (27).jpg 1 TRUNDLE STREET (26).jpg 1 TRUNDLE STREET (17).jpg 1 TRUNDLE STREET (33).jpg 1 TRUNDLE STREET (38).jpg 1 TRUNDLE STREET (22).jpg 1 TRUNDLE STREET (39).jpg 1 TRUNDLE STREET (30).jpg 1 TRUNDLE STREET (24).jpg 1 TRUNDLE STREET (35).jpg 1 TRUNDLE STREET (36).jpg 1 TRUNDLE STREET (21).jpg 1 TRUNDLE STREET (12).jpg 1 TRUNDLE STREET (3).jpg 1 TRUNDLE STREET (13).jpg 1 TRUNDLE STREET (14).jpg 1 TRUNDLE STREET (15).jpg 1 TRUNDLE STREET (16).jpg 1 TRUNDLE STREET (4).jpg 1 TRUNDLE STREET (18).jpg 1 TRUNDLE STREET (19).jpg 1 TRUNDLE STREET (10).jpg 1 TRUNDLE STREET (8).jpg 1 TRUNDLE STREET (11).jpg 1 TRUNDLE STREET (5).jpg 1 TRUNDLE STREET (9).jpg 1 TRUNDLE STREET (6).jpg 1 TRUNDLE STREET (7).jpg 1 TRUNDLE STREET (42).jpg

Nearby Streets

NameAverage PriceAverage SqftDistance
Duke Street Hill £ 000.00 KM
Flat Iron Yard £ 000.00 KM
Flat Iron Square £ 000.00 KM
Little Dorrit Court £ 000.00 KM
Newington Causeway £ 000.00 KM

Nearby Transport

NameNLCTLCDistance
Elephant And Castle5246EPH0.91 KM
London Bridge5148LBG1.25 KM
Cannon Street5142CST1.28 KM
Blackfriars5112BFR1.30 KM
Waterloo East5158WAE1.34 KM

Nearby Listings

AddressPriceTypeScoreDistance
The Lantern, Borough, SE1 £ 3,500,000BUY7 / 100.00 KM
Trundle Street, London, UK, SE1 £ 700,000BUY7 / 100.03 KM
Trundle Street, Borough, SE1 £ 3,500,000BUY8 / 100.05 KM
Lant Street, Borough, SE1 £ 500,000BUYUnknown0.07 KM
Lant Street, London Bridge £ 875,000BUY6 / 100.08 KM

Nearby Properties

AddressPriceDistance
8 Sudrey Street £ 437,5000.14 KM
15 Isaac Way £ 319,0000.14 KM
25 Isaac Way £ 287,0000.14 KM
30 Isaac Way £ 505,0000.14 KM
16 Isaac Way £ 495,0000.14 KM