Ravelin Close, Fleet, GU51 1JP
By Labram Holmes
£ 545,000
Reviews
3 out of 5 stars
Labram Holmes says ..
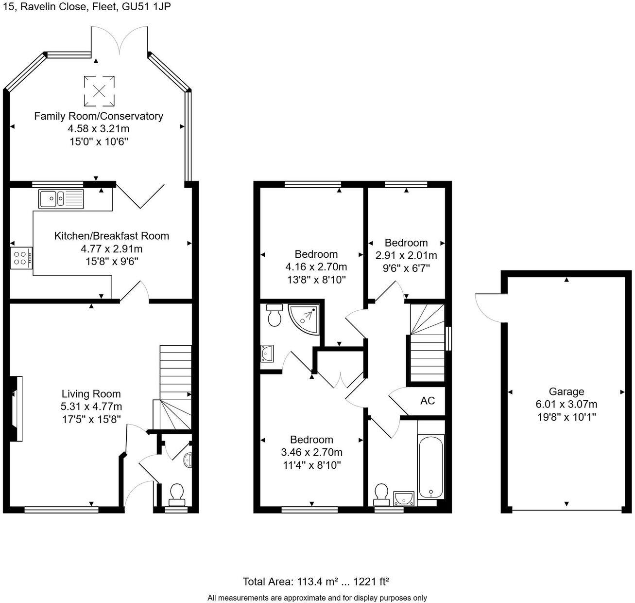
A spacious three bedroom, two bathroom, detached extended family home presented in excellent order throughout. The property has a private garden, single garage & driveway parking for two cars.
Property Oracle says ..
This is a detached property in Fleet, Hampshire, featuring three bedrooms and two bathrooms. The house includes a garden, modern fittings, and is located in a residential area with good access to local amenities and transport links. The property is competitively priced within the local market.
Therefore, we give this property 6 / 10. *Disclaimer: This is our option and does constitute a recommendation or financial advice. Do your own research. *
- Price
- 7
- Condition
- 7
- Location
- 7
- Land
- 6
- Bedrooms
- 3
- Bathrooms
- 2
- Sqft (est)
- 1,063.21
The heatmap indicates the level of crime in the area. The color of the heatmap indicates the crime severity and recency.
Metrics Year-on-Year
- Average area value
- 587,286.00 £Decreased by 26.45 %
- Est sale value
- 717,666.75 £Increased by 72.63 %
- Average area rental value
- 1,582.00 £/moDecreased by 10.97 %
- Est letting value
- 1,063.21 £/mo
- Est rental Yield
- 3.23 %Increased by 20.97 %
- Crime Rate
- 5.00 %Unchanged by 0.00 %
Agent Activity
Labram Holmes created the listing.
Nearby Schools
| Name | Type | Ofsted | Distance |
|---|---|---|---|
| Elvetham Heath Primary School | Community School | Outstanding | 1.12 KM |
| Turners Wood, Fleet Fireflies And Wild Rose Children'S Centre | Children's Centre | 1.12 KM | |
| Fleet Fireflies Children'S Centre | Children's Centre Linked Site | 1.70 KM | |
| Heatherside Junior School | Community School | Outstanding | 2.17 KM |
| Heatherside Infant School | Community School | Outstanding | 2.17 KM |
Images
Nearby Streets
| Name | Average Price | Average Sqft | Distance |
|---|---|---|---|
| Beaumont Court | £ 0 | 0 | 0.00 KM |
| Church Road | £ 1,200,000 | 0 | 0.00 KM |
| Stockton House | £ 0 | 0 | 0.00 KM |
| Rotten Green | £ 0 | 0 | 0.00 KM |
| Elvetham Close | £ 1,725,000 | 0 | 0.00 KM |
Nearby Transport
| Name | NLC | TLC | Distance |
|---|---|---|---|
| Fleet | 5522 | FLE | 1.77 KM |
| Winchfield | 5528 | WNF | 6.77 KM |
| Sandhurst (Berks) | 5646 | SND | 7.49 KM |
| Crowthorne | 5628 | CRN | 8.63 KM |
| Blackwater | 5625 | BAW | 8.77 KM |
Nearby Listings
| Address | Price | Type | Score | Distance |
|---|---|---|---|---|
| Ravelin Close, Fleet, GU51 1JP | £ 545,000 | BUY | 6 / 10 | 0.00 KM |
| Ravelin Close, Fleet, Hampshire, GU51 | £ 410,000 | BUY | 7 / 10 | 0.02 KM |
| Reynolds Street, Elvetham Heath, Fleet, GU51 | £ 395,000 | BUY | 7 / 10 | 0.06 KM |
| Reynolds Street, Fleet, GU51 | £ 475,000 | BUY | 7 / 10 | 0.09 KM |
| Reynolds Street, Fleet, GU51 | £ 450,000 | BUY | 6 / 10 | 0.11 KM |
Nearby Properties
| Address | Price | Distance |
|---|---|---|
| 25 Ravelin Close | £ 450,000 | 0.03 KM |
| 14 Ravelin Close | £ 242,000 | 0.03 KM |
| 10 Ravelin Close | £ 470,000 | 0.03 KM |
| 8 Ravelin Close | £ 535,000 | 0.03 KM |
| 2 Ravelin Close | £ 550,000 | 0.03 KM |