Trading Places says ..
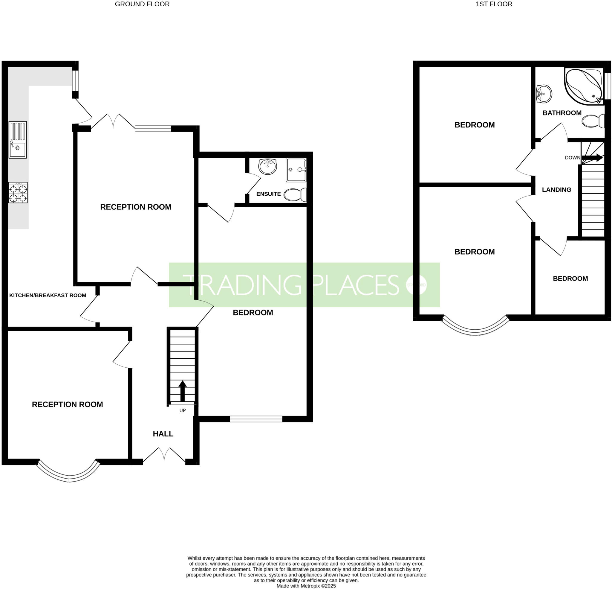
We are delighted to offer this extended semi-detached home, larger than average and set in a sought after location close to well regarded schools and a range of local amenities. On the ground floor, the welcoming hallway leads into a bright
Property Oracle says ..
This is a four-bedroom semi-detached property located on Moss Park Road in Stretford. The property benefits from its proximity to local schools and transportation links. The interior is in generally good condition, although some areas could benefit from modernisation. The property includes a garden, providing outdoor space. Overall, this property represents a solid opportunity for families looking for a home in a convenient location with good amenities nearby.
Therefore, we give this property 6 / 10. *Disclaimer: This is our option and does constitute a recommendation or financial advice. Do your own research. *
- Price
- 7
- Condition
- 7
- Location
- 7
- Land
- 6
- Bedrooms
- 4
- Bathrooms
- 2
- Sqft (est)
- 1,030.00
The heatmap indicates the level of crime in the area. The color of the heatmap indicates the crime severity and recency.
Metrics Year-on-Year
- Average area value
- 511,667.00 £Decreased by 1.51 %
- Est sale value
- 304,880.00 £Decreased by 31.00 %
- Average area rental value
- 1,296.00 £/moDecreased by 23.76 %
- Est letting value
- 0.00 £/moDecreased by 100.00 %
- Est rental Yield
- 3.04 %Decreased by 22.65 %
- Crime Rate
- 0.00 %
Agent Activity
Trading Places created the listing.
Nearby Schools
| Name | Type | Ofsted | Distance |
|---|---|---|---|
| Moss Park Junior School | Community School | Outstanding | 0.58 KM |
| Moss Park Infant School | Community School | Good | 0.59 KM |
| Lostock High School | Community School | Good | 0.86 KM |
| St Antony'S Roman Catholic School, A Voluntary Academy | Academy Sponsor Led | 1.22 KM | |
| St Hugh Of Lincoln Rc Primary School | Voluntary Aided School | Outstanding | 1.31 KM |
Images
Nearby Streets
| Name | Average Price | Average Sqft | Distance |
|---|---|---|---|
| Selby Road | £ 200,000 | 0 | 0.00 KM |
| Mount Drive | £ 330,000 | 0 | 0.00 KM |
| Southbourne Avenue | £ 0 | 0 | 0.00 KM |
| Hope Avenue | £ 325,000 | 0 | 0.00 KM |
| Edale Road | £ 0 | 0 | 0.00 KM |
Nearby Transport
| Name | NLC | TLC | Distance |
|---|---|---|---|
| Humphrey Park | 2937 | HUP | 0.47 KM |
| Trafford Park | 2969 | TRA | 1.90 KM |
| Urmston | 2938 | URM | 3.03 KM |
| Eccles (Manchester) | 2950 | ECC | 4.24 KM |
| Manchester United Football Ground | 2996 | MUF | 4.25 KM |
Nearby Listings
| Address | Price | Type | Score | Distance |
|---|---|---|---|---|
| Moss Park Road, M32 9HQ | £ 400,000 | BUY | 6 / 10 | 0.00 KM |
| Moss Park Road, Stretford, Manchester, Greater Manchester, M32 | £ 430,000 | BUY | 6 / 10 | 0.00 KM |
| Debenham Road, Stretford | £ 315,000 | BUY | Unknown | 0.07 KM |
| Barkway Road, Stretford, M32 9DU | £ 300,000 | BUY | 6 / 10 | 0.13 KM |
| Debenham Road, Stretford, M32 9DG | £ 180,000 | BUY | 6 / 10 | 0.14 KM |
Nearby Properties
| Address | Price | Distance |
|---|---|---|
| 78 Moss Park Road | £ 350,000 | 0.04 KM |
| 74 Moss Park Road | £ 197,000 | 0.04 KM |
| 86 Moss Park Road | £ 107,000 | 0.04 KM |
| 88 Moss Park Road | £ 287,000 | 0.04 KM |
| 70 Moss Park Road | £ 228,000 | 0.04 KM |