Allday & Miller says ..
Showcasing this stunning and rarely available four / five bedroom extended semi detached family home, this property epitomizes modern luxury living. Benefitting from a self contained annexe and parking for multiple vehicles.
Property Oracle says ..
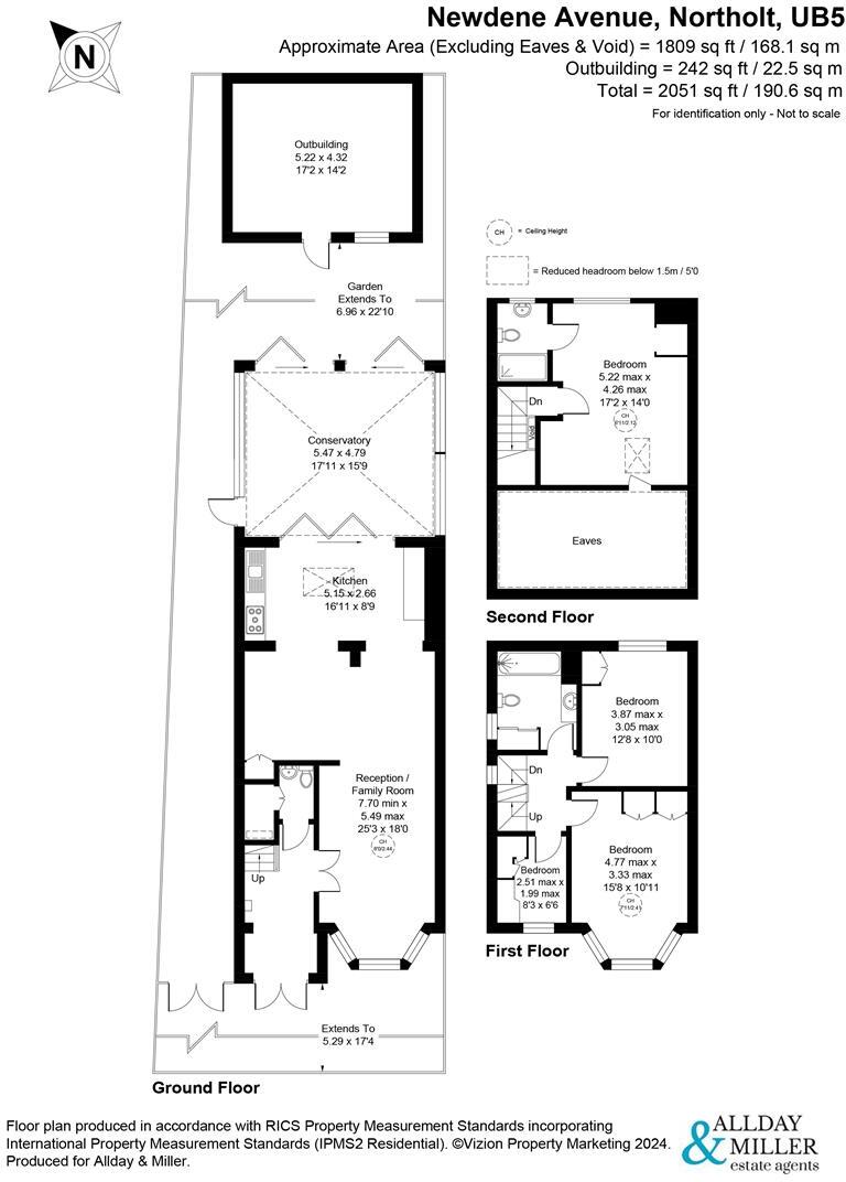
This four-bedroom semi-detached house in Northolt, Ealing, is presented by Allday & Miller. The property boasts a modern kitchen with a conservatory extension, providing a bright and spacious living area. The bathrooms appear recently renovated, and the interior is generally well-maintained. The photos showcase a significant amount of updated or recently installed fixtures and fittings. However, some of the photos suggest that the property is not completely finished or fully unpacked, which might affect the immediate livability for a new buyer. The exterior is typical of the area, with a paved driveway and a relatively small paved patio area, rather than a substantial garden. The location is convenient, offering proximity to various transport links and schools. The price is within the range of comparable properties on Newdene Avenue, but a more precise price-per-square-foot analysis would benefit from more complete data on the sizes of nearby properties. Overall, the property presents a good opportunity for a family seeking a modern home in Northolt, but potential buyers should be aware of the ongoing work or unpacking that may be required.
Therefore, we give this property 6 / 10. *Disclaimer: This is our option and does constitute a recommendation or financial advice. Do your own research. *
- Price
- 6
- Condition
- 7
- Location
- 7
- Land
- 4
- Bedrooms
- 4
- Bathrooms
- 2
- Sqft (est)
- 2,051.00
The heatmap indicates the level of crime in the area. The color of the heatmap indicates the crime severity and recency.
Metrics Year-on-Year
- Average area value
- 315,825.00 £Decreased by 18.83 %
- Est sale value
- 430,710.00 £Decreased by 54.94 %
- Average area rental value
- 1,599.00 £/moIncreased by 0.13 %
- Est letting value
- 2,051.00 £/moUnchanged by 0.00 %
- Est rental Yield
- 6.08 %Increased by 23.33 %
- Crime Rate
- 8.00 %Unchanged by 0.00 %
Agent Activity
Allday & Miller created the listing.
Nearby Schools
| Name | Type | Ofsted | Distance |
|---|---|---|---|
| Limetrees Park Children'S Centre | Children's Centre Linked Site | 0.23 KM | |
| Academy Gardens Children'S Centre | Children's Centre | 0.28 KM | |
| Viking Primary School | Community School | Good | 0.58 KM |
| John Chilton School | Community Special School | Good | 0.94 KM |
| Brookside Primary School | Academy Sponsor Led | Good | 0.97 KM |
Images
Nearby Streets
| Name | Average Price | Average Sqft | Distance |
|---|---|---|---|
| Barn Close | £ 0 | 0 | 0.00 KM |
| Sharvel Lane | £ 0 | 0 | 0.00 KM |
| Western Avenue | £ 0 | 0 | 0.00 KM |
| Middle Way | £ 0 | 0 | 0.00 KM |
| Target Roundabout | £ 250,000 | 0 | 0.00 KM |
Nearby Transport
| Name | NLC | TLC | Distance |
|---|---|---|---|
| South Ruislip | 3057 | SRU | 2.30 KM |
| Southall | 3187 | STL | 3.82 KM |
| Northolt Park | 1478 | NLT | 4.05 KM |
| Greenford | 3136 | GFD | 4.96 KM |
| Hayes And Harlington | 3186 | HAY | 5.14 KM |
Nearby Listings
| Address | Price | Type | Score | Distance |
|---|---|---|---|---|
| Newdene Avenue, Northolt | £ 700,000 | BUY | Unknown | 0.00 KM |
| Newdene Avenue, Northolt | £ 700,000 | BUY | 6 / 10 | 0.00 KM |
| Hawtrey Avenue, Northolt | £ 625,000 | BUY | 6 / 10 | 0.13 KM |
| Hawtrey Avenue, Northolt | £ 550,000 | BUY | 6 / 10 | 0.15 KM |
| Church Road, Northolt | £ 575,000 | BUY | 6 / 10 | 0.22 KM |
Nearby Properties
| Address | Price | Distance |
|---|---|---|
| 8 Newdene Avenue | £ 490,000 | 0.06 KM |
| 28 Newdene Avenue | £ 239,200 | 0.06 KM |
| 55 Newdene Avenue | £ 440,000 | 0.06 KM |
| 21 Newdene Avenue | £ 399,950 | 0.06 KM |
| 26 Newdene Avenue | £ 284,000 | 0.06 KM |