450 Bloxwich Road, Bloxwich, Walsall, WS3 2UY
By Bond Wolfe
£ 99,000
Reviews
3 out of 5 stars
Bond Wolfe says ..
For Sale By Public Auction 11 September 2025 A Vacant Freehold Semi Detached Property
Property Oracle says ..
A semi-detached property located on Bloxwich Road in Walsall, West Midlands. Nearby schools include Christ Church Cofe Primary School, Sunshine Infant and Nursery School, and Leamore Primary School, all rated ‘Good’ by Ofsted. The property is also within a few kilometers of Walsall, Bloxwich, and Bloxwich North train stations, offering convenient transportation options. The interior photos suggest the property is in generally good condition, with a modern kitchen and updated bathroom. The walls and carpets appear fresh and clean. The property has a paved front area and a good-sized garden to the rear. Given the size, location, and condition, the asking price appears to represent good value.
Therefore, we give this property 7 / 10. *Disclaimer: This is our option and does constitute a recommendation or financial advice. Do your own research. *
- Price
- 8
- Condition
- 7
- Location
- 7
- Land
- 7
- Bedrooms
- 3
- Bathrooms
- 0
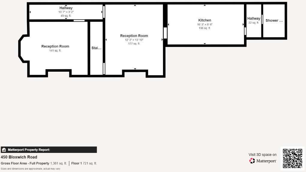
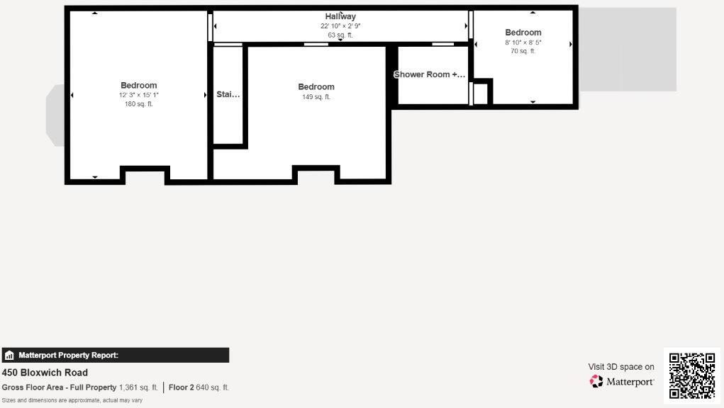
- Sqft (est)
- 527.00
The heatmap indicates the level of crime in the area. The color of the heatmap indicates the crime severity and recency.
Metrics Year-on-Year
- Average area value
- 189,689.00 £Increased by 0.18 %
- Est sale value
- 116,994.00 £Increased by 7.77 %
- Average area rental value
- 868.00 £/moDecreased by 3.12 %
- Est letting value
- 527.00 £/mo
- Est rental Yield
- 5.49 %Decreased by 3.35 %
- Crime Rate
- 1.00 %Unchanged by 0.00 %
Agent Activity
Bond Wolfe created the listing.
Nearby Schools
| Name | Type | Ofsted | Distance |
|---|---|---|---|
| Christ Church Cofe Primary School | Voluntary Controlled School | Good | 0.38 KM |
| Sunshine Infant And Nursery School | Community School | Good | 0.86 KM |
| Leamore Primary School | Community School | Good | 0.92 KM |
| Blakenall Sure Start Children'S Centre | Children's Centre | 0.96 KM | |
| North Walsall Primary Academy | Academy Sponsor Led | Good | 1.00 KM |
Images
Nearby Streets
| Name | Average Price | Average Sqft | Distance |
|---|---|---|---|
| May Street | £ 0 | 0 | 0.00 KM |
| Oakland Road | £ 0 | 0 | 0.00 KM |
| Dawson Street | £ 0 | 0 | 0.00 KM |
| Blakenall Row | £ 0 | 0 | 0.00 KM |
| Oakwood Road | £ 150,000 | 0 | 0.00 KM |
Nearby Transport
| Name | NLC | TLC | Distance |
|---|---|---|---|
| Walsall | 1216 | WSL | 2.37 KM |
| Bloxwich | 1141 | BLX | 2.68 KM |
| Bloxwich North | 1018 | BWN | 3.71 KM |
| Bescot Stadium | 1003 | BSC | 4.62 KM |
| Tame Bridge Parkway | 1010 | TAB | 5.99 KM |
Nearby Listings
| Address | Price | Type | Score | Distance |
|---|---|---|---|---|
| 450 Bloxwich Road, Bloxwich, Walsall, WS3 2UY | £ 99,000 | BUY | 7 / 10 | 0.00 KM |
| 450 Bloxwich Road, Bloxwich, Walsall, WS3 2UY | £ 99,000 | BUY | 7 / 10 | 0.00 KM |
| Bloxwich Road, WALSALL | £ 200,000 | BUY | 6 / 10 | 0.04 KM |
| Bloxwich Road, WALSALL, West Midlands, WS3 | £ 220,000 | BUY | 5 / 10 | 0.08 KM |
| Bloxwhich Road, Walsall | £ 210,000 | BUY | 5 / 10 | 0.10 KM |
Nearby Properties
| Address | Price | Distance |
|---|---|---|
| 440 Bloxwich Road | £ 72,000 | 0.03 KM |
| 452 Bloxwich Road | £ 119,000 | 0.03 KM |
| 424 Bloxwich Road | £ 115,000 | 0.03 KM |
| 438 Bloxwich Road | £ 125,000 | 0.03 KM |
| 483 Bloxwich Road | £ 117,000 | 0.07 KM |