Montague Street, Lemington, Newcastle upon Tyne, Tyne and Wear, NE15
By YOUR MOVE Chris Stonock
£ 85,000
Reviews
3 out of 5 stars
YOUR MOVE Chris Stonock says ..
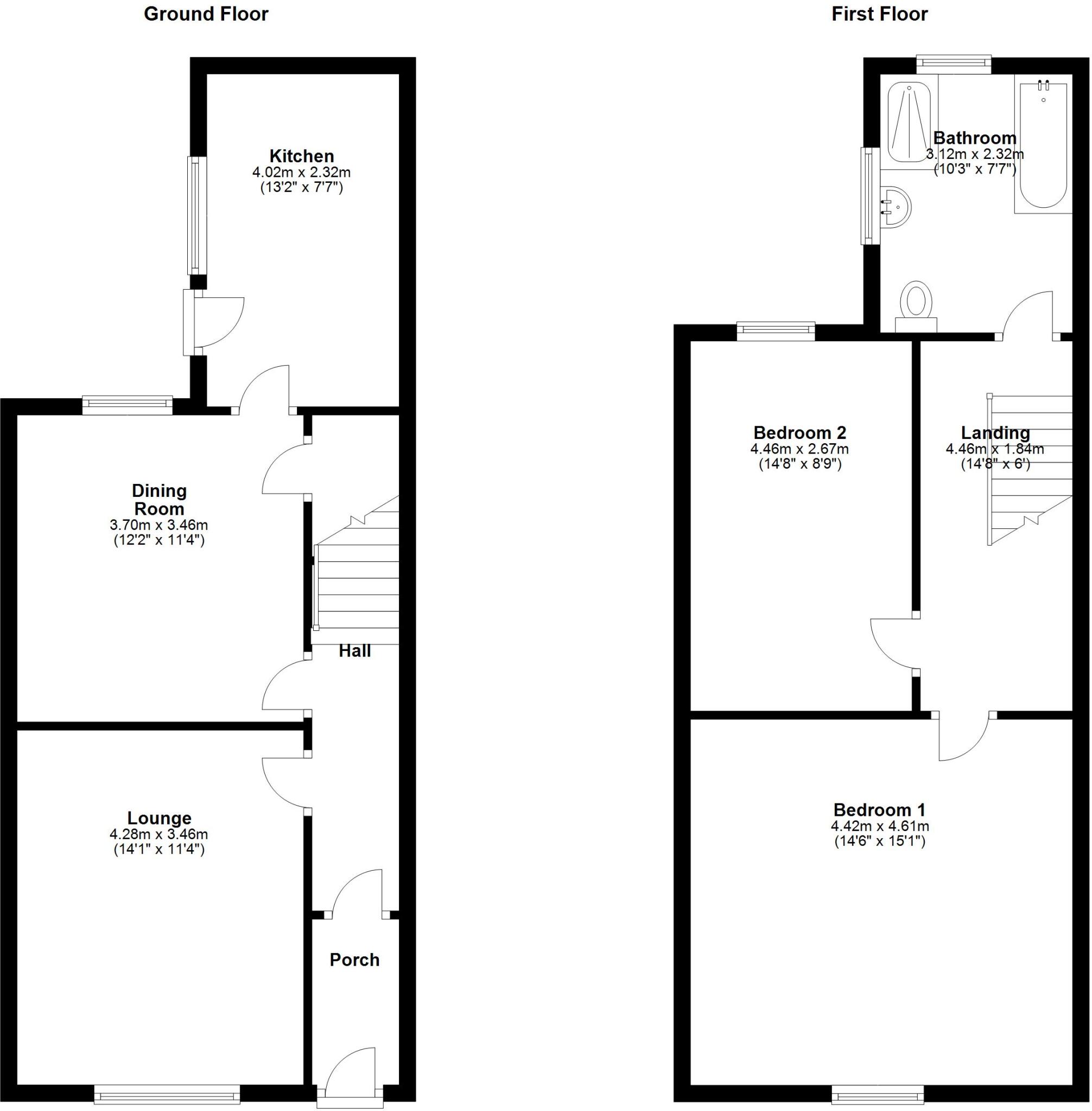
Two bedroom Mid Terrace house pleasantly positioned on this walkway within the village of Lemington....
Property Oracle says ..
Therefore, we give this property 7 / 10. *Disclaimer: This is our option and does constitute a recommendation or financial advice. Do your own research. *
- Price
- 8
- Condition
- 6
- Location
- 7
- Land
- 7
- Bedrooms
- 2
- Bathrooms
- 1
The heatmap indicates the level of crime in the area. The color of the heatmap indicates the crime severity and recency.
Metrics Year-on-Year
- Average area value
- 680,998.00 £Decreased by 7.75 %
- Average area rental value
- 1,898.00 £/moDecreased by 25.22 %
- Est rental Yield
- 3.34 %Decreased by 19.13 %
- Crime Rate
- 31.00 %Unchanged by 0.00 %
from 738,203.00 £
from 2,538.00 £/mo
from 4.13 %
from 31.00 %
Agent Activity
YOUR MOVE Chris Stonock created the listing.
Nearby Schools
| Name | Type | Ofsted | Distance |
|---|---|---|---|
| Lemington Riverside Primary School | Foundation School | Good | 0.15 KM |
| Sure Start Lemington Children'S Centre | Children's Centre Linked Site | 0.38 KM | |
| St George'S Catholic Primary School, Bells Close | Academy Converter | 0.72 KM | |
| Waverley Primary School | Foundation School | Good | 0.90 KM |
| West Denton Primary School | Foundation School | Good | 1.54 KM |
Images
Nearby Streets
| Name | Average Price | Average Sqft | Distance |
|---|---|---|---|
| The Orchard | £ 0 | 0 | 0.00 KM |
| Dunnock Court | £ 0 | 0 | 0.00 KM |
| Wedgewood Cottages | £ 0 | 0 | 0.00 KM |
| Newbury Close | £ 185,000 | 0 | 0.00 KM |
| Rydal Road | £ 0 | 0 | 0.00 KM |
Nearby Transport
| Name | NLC | TLC | Distance |
|---|---|---|---|
| Blaydon | 7503 | BLO | 1.36 KM |
| Metrocentre | 7725 | MCE | 5.45 KM |
| Dunston | 7744 | DOT | 8.23 KM |
Nearby Listings
| Address | Price | Type | Score | Distance |
|---|---|---|---|---|
| Montague Street, Lemington, Newcastle upon Tyne, Tyne and Wear, NE15 | £ 85,000 | BUY | 7 / 10 | 0.00 KM |
| Orchard Terrace, Lemington, Newcastle, NE15 | £ 110,000 | BUY | 6 / 10 | 0.11 KM |
| Union Hall Road, Newcastle upon Tyne, Tyne and Wear, NE15 | £ 159,950 | BUY | 6 / 10 | 0.12 KM |
| Lesbury Street, Newcastle upon Tyne, Tyne and Wear, NE15 | £ 79,950 | BUY | 6 / 10 | 0.16 KM |
| Rokeby Street, Lemington, Newcastle Upon Tyne, | £ 100,000 | BUY | 6 / 10 | 0.19 KM |
Nearby Properties
| Address | Price | Distance |
|---|---|---|
| 64 Montague Street | £ 59,000 | 0.01 KM |
| 42 Montague Street | £ 80,000 | 0.01 KM |
| 44 Montague Street | £ 80,000 | 0.01 KM |
| 40 Montague Street | £ 70,000 | 0.01 KM |
| 48 Montague Street | £ 56,950 | 0.01 KM |