Morris and Bott says ..
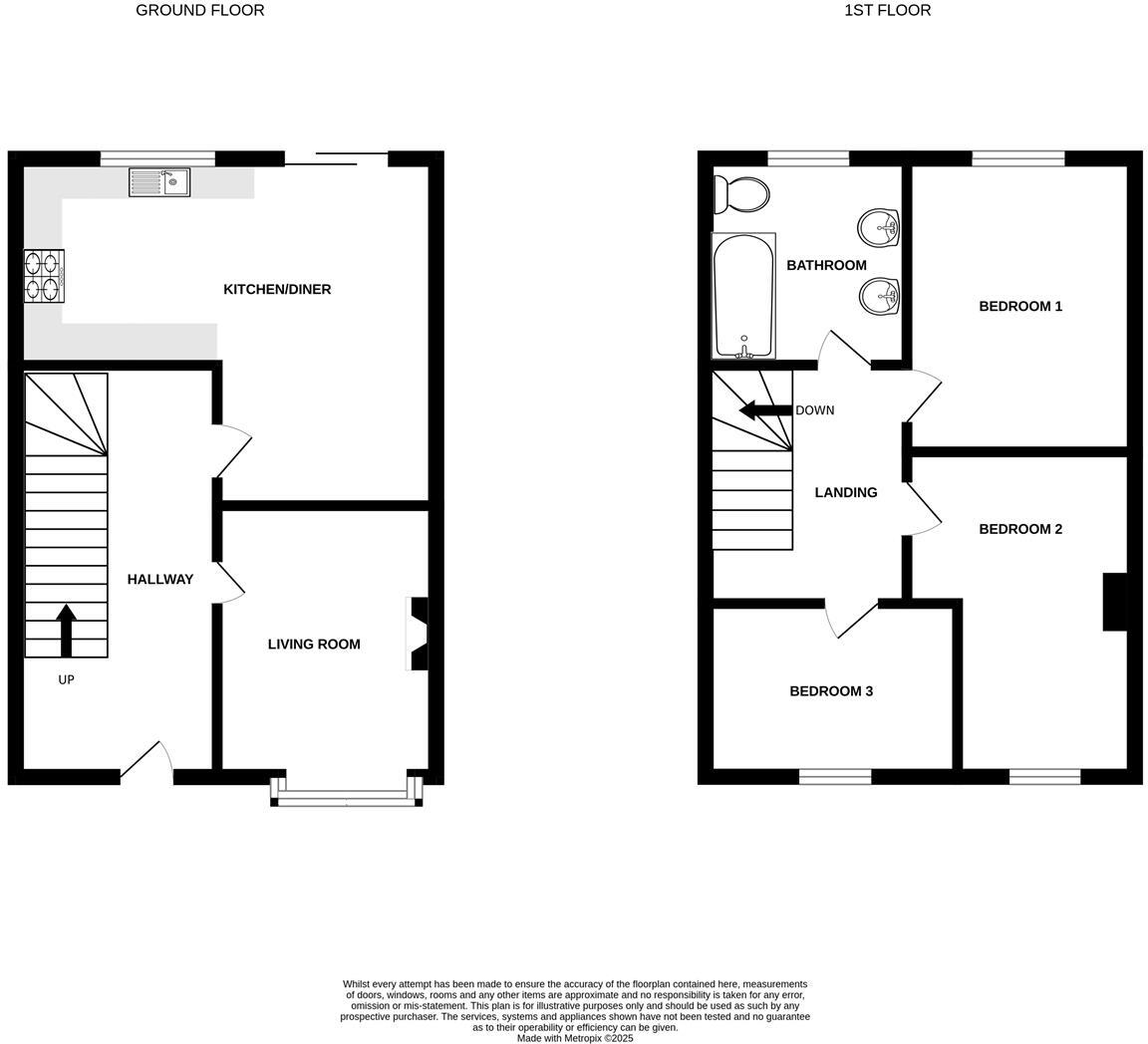
Introducing this well-proportioned three-bedroom home within the popular residential area of Bideford, within easy reach of the towns amenities. The home briefly comprises of a south facing kitchen/diner and separate lounge on the ground floor. The first floor offers 2 good sized double bedrooms ...
Property Oracle says ..
This three-bedroom terraced house in Bideford, Devon, is listed at £230,000. The property benefits from a small garden and is within reasonable proximity to several schools, including West Croft School (0.46km), Bideford College (0.56km), and St Mary’s Church of England Primary School (1.81km). However, the average house price in the area is £293,859, and the average price per square foot is £330. This property is 702 sqft, suggesting a price per sqft significantly below average. The images reveal that the property is in generally good condition, though some minor cosmetic updates might enhance its appeal. The garden is relatively small but usable. The property’s proximity to schools is a positive, but the below-average price per sqft compared to local averages may indicate the need for some investment or suggest a less desirable aspect not immediately apparent from the images or description. Further investigation into the property’s specific location within Bideford and any potential drawbacks would be beneficial to a comprehensive assessment.
Therefore, we give this property 5 / 10. *Disclaimer: This is our option and does constitute a recommendation or financial advice. Do your own research. *
- Price
- 6
- Condition
- 7
- Location
- 6
- Land
- 4
- Bedrooms
- 3
- Bathrooms
- 2
- Sqft (est)
- 702.00
The heatmap indicates the level of crime in the area. The color of the heatmap indicates the crime severity and recency.
Metrics Year-on-Year
- Average area value
- 320,749.00 £Increased by 14.47 %
- Est sale value
- 292,734.00 £Increased by 43.30 %
- Average area rental value
- 825.00 £/moIncreased by 40.78 %
- Est letting value
- 702.00 £/mo
- Est rental Yield
- 3.09 %Increased by 23.11 %
- Crime Rate
- 9.00 %Unchanged by 0.00 %
Agent Activity
Morris and Bott created the listing.
Nearby Schools
| Name | Type | Ofsted | Distance |
|---|---|---|---|
| West Croft School | Community School | Requires improvement | 0.46 KM |
| Bideford College | Academy Sponsor Led | Requires improvement | 0.56 KM |
| Kingsley School | Other Independent School | 0.94 KM | |
| St Mary'S Church Of England Primary School | Voluntary Controlled School | Good | 1.81 KM |
| Bideford Bay Children'S Centre | Children's Centre | 2.10 KM |
Images
Nearby Streets
| Name | Average Price | Average Sqft | Distance |
|---|---|---|---|
| High View | £ 0 | 0 | 0.00 KM |
| Pynes Lane | £ 0 | 0 | 0.00 KM |
| Dymond Road | £ 335,000 | 0 | 0.00 KM |
| Belvoir Road | £ 438,375 | 0 | 0.00 KM |
| Grenville Estate Crescent | £ 195,000 | 0 | 0.00 KM |
Nearby Listings
| Address | Price | Type | Score | Distance |
|---|---|---|---|---|
| Clovelly Road, Bideford | £ 230,000 | BUY | 5 / 10 | 0.00 KM |
| Clovelly Road, Bideford | £ 185,000 | BUY | 5 / 10 | 0.01 KM |
| Clovelly Road, Bideford | £ 450,000 | BUY | 6 / 10 | 0.04 KM |
| Clovelly Road, Bideford | £ 390,000 | BUY | 6 / 10 | 0.06 KM |
| Waterloo Terrace, Bideford | £ 200,000 | BUY | 6 / 10 | 0.06 KM |
Nearby Properties
| Address | Price | Distance |
|---|---|---|
| 80 Clovelly Road | £ 190,000 | 0.04 KM |
| 85 Clovelly Road | £ 190,000 | 0.04 KM |
| 90 Clovelly Road | £ 190,000 | 0.04 KM |
| 69 Clovelly Road | £ 205,000 | 0.04 KM |
| 78 Clovelly Road | £ 174,000 | 0.04 KM |