Choices says ..
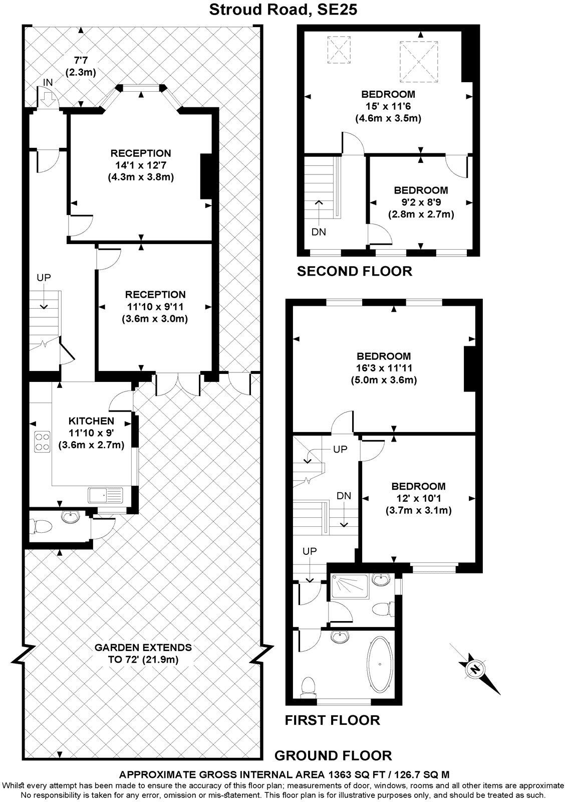
A substantial four-bedroom, semi-detached Victorian family home, set across three floors and extending to over 1,360 sq ft, with generous rooms, period character, and a private 72ft garden. Situated on a sought-after residential street within easy reach of Norwood Junction, this impressive proper...
Property Oracle says ..
This is a semi-detached house in Woodside, Croydon, featuring four bedrooms and two bathrooms. The property offers a substantial 1,363 sqft of living space and includes a large garden. While the location benefits from nearby schools and transportation links, the property’s condition is somewhat mixed, with some areas requiring renovation. The asking price of £500,000 appears reasonable considering the size and location, but potential buyers should factor in the cost of necessary upgrades.
Therefore, we give this property 6 / 10. *Disclaimer: This is our option and does constitute a recommendation or financial advice. Do your own research. *
- Price
- 6
- Condition
- 5
- Location
- 7
- Land
- 7
- Bedrooms
- 4
- Bathrooms
- 2
- Sqft (est)
- 1,363.00
The heatmap indicates the level of crime in the area. The color of the heatmap indicates the crime severity and recency.
Metrics Year-on-Year
- Average area value
- 489,165.00 £Increased by 16.57 %
- Est sale value
- 849,149.00 £Increased by 28.45 %
- Average area rental value
- 1,679.00 £/moDecreased by 8.30 %
- Est letting value
- 2,726.00 £/moUnchanged by 0.00 %
- Est rental Yield
- 4.12 %Decreased by 21.37 %
- Crime Rate
- 5.00 %Unchanged by 0.00 %
Agent Activity
Choices created the listing.
Nearby Schools
| Name | Type | Ofsted | Distance |
|---|---|---|---|
| St Thomas Becket Catholic Primary School | Academy Converter | 0.36 KM | |
| Woodside Children'S Centre | Children's Centre Linked Site | 0.47 KM | |
| Woodside Primary School | Academy Converter | Good | 0.67 KM |
| Oasis Academy Shirley Park | Academy Sponsor Led | Good | 0.73 KM |
| Crosfield Nursery School And Children'S Centre | Children's Centre | 0.84 KM |
Images
Nearby Streets
| Name | Average Price | Average Sqft | Distance |
|---|---|---|---|
| Foot Path 657 | £ 0 | 0 | 0.00 KM |
| Foot Path 797 | £ 0 | 0 | 0.00 KM |
| Foot Path 796 | £ 0 | 0 | 0.00 KM |
| Foot Path 729 | £ 445,000 | 0 | 0.00 KM |
| Foot Path 801 | £ 0 | 0 | 0.00 KM |
Nearby Transport
| Name | NLC | TLC | Distance |
|---|---|---|---|
| Norwood Junction | 5376 | NWD | 1.37 KM |
| Selhurst | 5434 | SRS | 2.24 KM |
| Birkbeck | 5401 | BIK | 2.41 KM |
| Elmers End | 5049 | ELE | 2.51 KM |
| Anerley | 5397 | ANZ | 2.87 KM |
Nearby Listings
| Address | Price | Type | Score | Distance |
|---|---|---|---|---|
| Stroud Road, London, SE25 | £ 500,000 | BUY | 6 / 10 | 0.00 KM |
| Stroud Road, London, SE25 | £ 500,000 | BUY | 6 / 10 | 0.00 KM |
| Stroud Road, South Norwood | £ 525,000 | BUY | Unknown | 0.03 KM |
| Stroud Road, South Norwood | £ 425,000 | BUY | 7 / 10 | 0.03 KM |
| Lincoln Close, London | £ 250,000 | BUY | 5 / 10 | 0.08 KM |
Nearby Properties
| Address | Price | Distance |
|---|---|---|
| 27 Stroud Road | £ 174,000 | 0.01 KM |
| 14 Stroud Road | £ 247,500 | 0.01 KM |
| 22a Stroud Road | £ 192,000 | 0.01 KM |
| 1a Stroud Road | £ 290,000 | 0.01 KM |
| 13 Stroud Road | £ 500,000 | 0.01 KM |