Kenilworth Road, Fleet, Hampshire, GU51
By Bridges Estate Agents
£ 575,000
Reviews
3 out of 5 stars
Bridges Estate Agents says ..
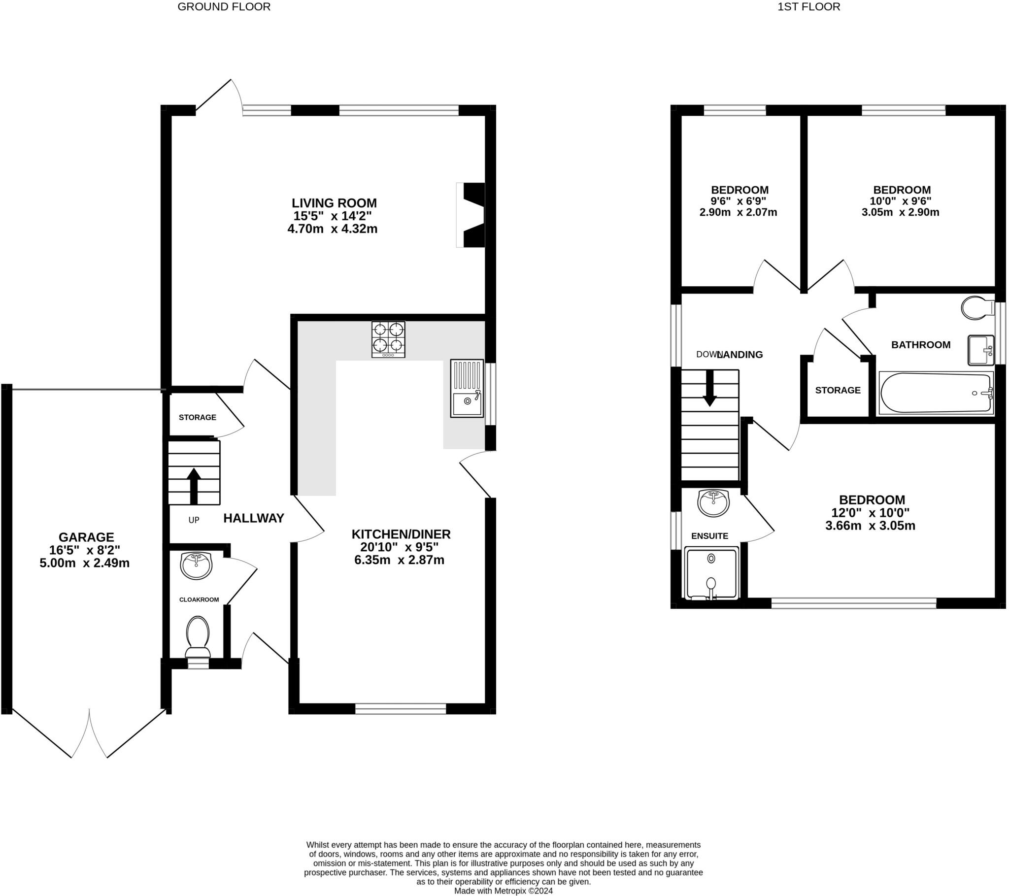
Located in the ever popular Pondtail, is this wonderful three bedroom detached property is offered with no onwards chain. The property benefits from a spacious Kitchen/Diner, with lots of light being invited in. There is also a living area, with doors out to the garden. On the first floor, the m...
Property Oracle says ..
This three-bedroom detached house located on Kenilworth Road in Fleet, Hampshire, is presented by Bridges Estate Agents. The property features a spacious kitchen/diner with ample natural light and a living area with garden access. Images depict a modern kitchen, updated bathrooms, and a comfortable living space. The exterior presents as a well-maintained brick and wood-clad house with a small front garden and a larger rear garden complete with patio and decked area. The property benefits from its proximity to Fleet’s railway station, offering convenient commuter links, and is situated near several well-rated primary schools. A lack of detailed plot size data and limited information on local comparable properties makes it difficult to definitively assess the true value for money. Potential buyers should conduct thorough due diligence and consider obtaining a professional property valuation before committing to a purchase.
Therefore, we give this property 6 / 10. *Disclaimer: This is our option and does constitute a recommendation or financial advice. Do your own research. *
- Price
- 7
- Condition
- 7
- Location
- 7
- Land
- 5
- Bedrooms
- 3
- Bathrooms
- 2
- Sqft (est)
- 1,158.63
The heatmap indicates the level of crime in the area. The color of the heatmap indicates the crime severity and recency.
Metrics Year-on-Year
- Average area value
- 510,625.00 £Increased by 2.78 %
- Est sale value
- 719,509.23 £Increased by 48.21 %
- Average area rental value
- 1,150.00 £/moDecreased by 10.92 %
- Est letting value
- 1,158.63 £/moUnchanged by 0.00 %
- Est rental Yield
- 2.70 %Decreased by 13.46 %
- Crime Rate
- 2.00 %Unchanged by 0.00 %
Agent Activity
Bridges Estate Agents created the listing.
Nearby Schools
| Name | Type | Ofsted | Distance |
|---|---|---|---|
| Fleet Infant School | Community School | Outstanding | 0.94 KM |
| Velmead Junior School | Community School | Good | 0.97 KM |
| Heatherside Junior School | Community School | Outstanding | 1.64 KM |
| Heatherside Infant School | Community School | Outstanding | 1.64 KM |
| Fleet Fireflies Children'S Centre | Children's Centre Linked Site | 2.04 KM |
Images
Nearby Streets
| Name | Average Price | Average Sqft | Distance |
|---|---|---|---|
| Pondview Close | £ 0 | 0 | 0.00 KM |
| Crown Gardens | £ 0 | 0 | 0.00 KM |
| Royal Court | £ 0 | 0 | 0.00 KM |
| Hawkins Way | £ 0 | 0 | 0.00 KM |
| Duchess Court | £ 0 | 0 | 0.00 KM |
Nearby Transport
| Name | NLC | TLC | Distance |
|---|---|---|---|
| Fleet | 5522 | FLE | 0.92 KM |
| Sandhurst (Berks) | 5646 | SND | 7.56 KM |
| Blackwater | 5625 | BAW | 7.80 KM |
| Farnborough (Main) | 5521 | FNB | 8.10 KM |
| Aldershot | 5623 | AHT | 8.53 KM |
Nearby Listings
| Address | Price | Type | Score | Distance |
|---|---|---|---|---|
| Avondale Road, Fleet | £ 275,000 | BUY | 8 / 10 | 0.08 KM |
| Westover Road, Fleet, GU51 3DG | £ 650,000 | BUY | Unknown | 0.16 KM |
| Westover Road, Fleet, Hampshire, GU51 | £ 600,000 | BUY | 7 / 10 | 0.17 KM |
| Westover Road, Fleet, Hampshire, GU51 | £ 875,000 | BUY | 7 / 10 | 0.17 KM |
| Kenilworth Road, Fleet, Hampshire, GU51 | £ 675,000 | BUY | 7 / 10 | 0.19 KM |
Nearby Properties
| Address | Price | Distance |
|---|---|---|
| 61 Avondale Road | £ 425,000 | 0.08 KM |
| 67 Avondale Road | £ 195,000 | 0.08 KM |
| 34 Avondale Road | £ 263,500 | 0.08 KM |
| 83 Avondale Road | £ 490,000 | 0.10 KM |
| 81 Avondale Road | £ 450,000 | 0.11 KM |