Chalk Road, Walpole St. Peter, PE14
By Hockeys
£ 275,000
Reviews
3 out of 5 stars
Hockeys says ..
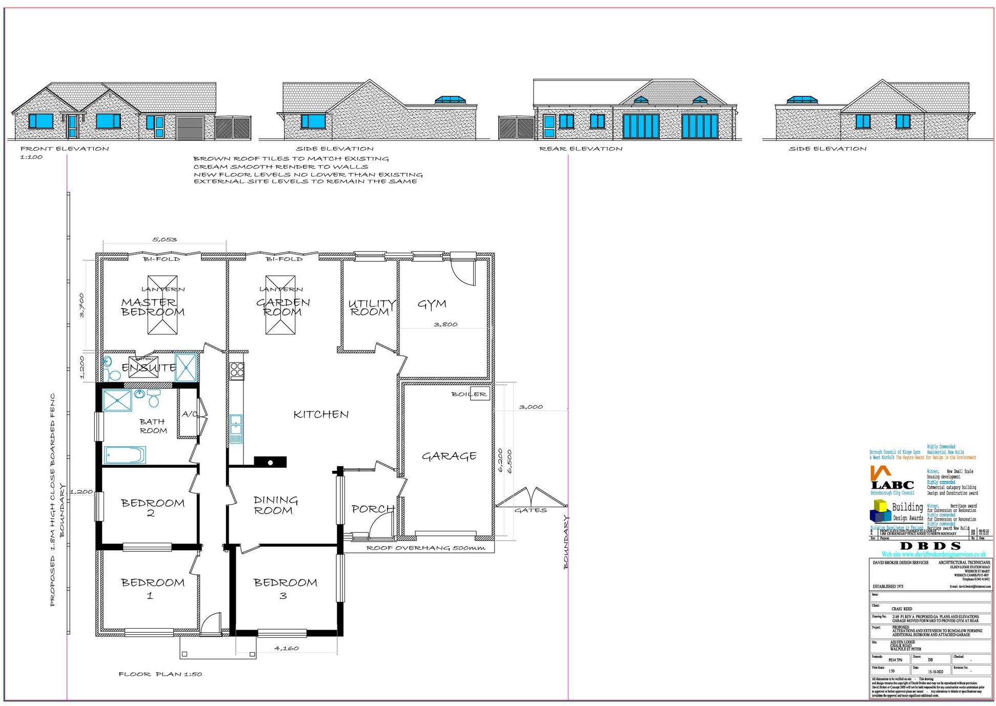
A project nestled in a charming village. This bungalow, brimming with potential, awaits its transformation into a spacious four bedroom detached home via thoughtfully planned extensions.
Property Oracle says ..
This property is located in Walpole St Peter, Norfolk, and is currently undergoing an extension. The existing house appears to be in reasonable condition, though some areas show signs of needing updating. The extension is underway, which will add considerable living space. The property benefits from a large garden and is situated in a quiet, rural location. There are several primary schools within a reasonable distance, with varying Ofsted ratings. The list price of £275,000 should be considered in the context of the ongoing building works. Once complete, the property is likely to be worth more. However, the current state of the property and the additional cost of completing the extension should be factored into any offer.
Therefore, we give this property 7 / 10. *Disclaimer: This is our option and does constitute a recommendation or financial advice. Do your own research. *
- Price
- 7
- Condition
- 6
- Location
- 7
- Land
- 8
- Bedrooms
- 3
- Bathrooms
- 1
- Sqft (est)
- 1,943.71
The heatmap indicates the level of crime in the area. The color of the heatmap indicates the crime severity and recency.
Metrics Year-on-Year
- Average area value
- 245,074.00 £Decreased by 15.93 %
- Est sale value
- 456,771.85 £Decreased by 37.50 %
- Average area rental value
- 1,254.00 £/moDecreased by 5.43 %
- Est letting value
- 1,943.71 £/moUnchanged by 0.00 %
- Est rental Yield
- 6.14 %Increased by 12.45 %
- Crime Rate
- 42.00 %Unchanged by 0.00 %
Agent Activity
Hockeys marked this listing as sold.
Hockeys created the listing.
Nearby Schools
| Name | Type | Ofsted | Distance |
|---|---|---|---|
| Anthony Curton Cofe Primary School | Academy Converter | Good | 1.20 KM |
| Walpole Highway Primary School | Community School | Requires improvement | 3.38 KM |
| Walpole Cross Keys Primary School | Academy Converter | Good | 3.75 KM |
| Westfield House School | Other Independent Special School | Good | 4.97 KM |
| Terrington St John Primary School | Community School | Good | 5.59 KM |
Images
Nearby Streets
| Name | Average Price | Average Sqft | Distance |
|---|---|---|---|
| Wendale Close | £ 0 | 0 | 0.00 KM |
Nearby Listings
| Address | Price | Type | Score | Distance |
|---|---|---|---|---|
| Chalk Road, Walpole St. Peter, PE14 | £ 275,000 | BUY | 7 / 10 | 0.00 KM |
| Chalk Road, Walpole St Peter, Wisbech, PE14 | £ 450,000 | BUY | 6 / 10 | 0.13 KM |
| Holt Court, Walpole St. Peter, Wisbech | £ 325,000 | BUY | Unknown | 0.20 KM |
| Holt Court, Walpole St. Peter, Wisbech, Norfolk, PE14 | £ 325,000 | BUY | 6 / 10 | 0.20 KM |
| Chalk Road, Walpole St. Peter, Wisbech | £ 200,000 | BUY | 5 / 10 | 0.30 KM |
Nearby Properties
| Address | Price | Distance |
|---|---|---|
| Highway Cottage | £ 170,000 | 0.29 KM |
| Meadow View | £ 179,995 | 0.29 KM |
| The Lilacs | £ 450,000 | 0.30 KM |
| Ferndale | £ 64,000 | 0.30 KM |
| Acorn House | £ 287,500 | 0.30 KM |