Lynwood, Victoria Road, Wilmslow
By Gascoigne Halman
£ 125,000
Reviews
3 out of 5 stars
Gascoigne Halman says ..
A delightful one bedroom over-60's apartment on the first floor enjoying pleasant elevated views over the garden. Benefiting from an on-site house manager and in a convenient central location. Available with NO CHAIN.
Property Oracle says ..
This retirement property is located in Wilmslow, Cheshire. The property itself is listed at £125,000, which is significantly lower than the average property price in the area. The property is located near several schools and the Wilmslow train station. The images suggest the property is in reasonable condition, with a modern kitchen and bathroom. The property also benefits from access to a large garden.
Therefore, we give this property 7 / 10. *Disclaimer: This is our option and does constitute a recommendation or financial advice. Do your own research. *
- Price
- 9
- Condition
- 7
- Location
- 8
- Land
- 7
- Bedrooms
- 1
- Bathrooms
- 1
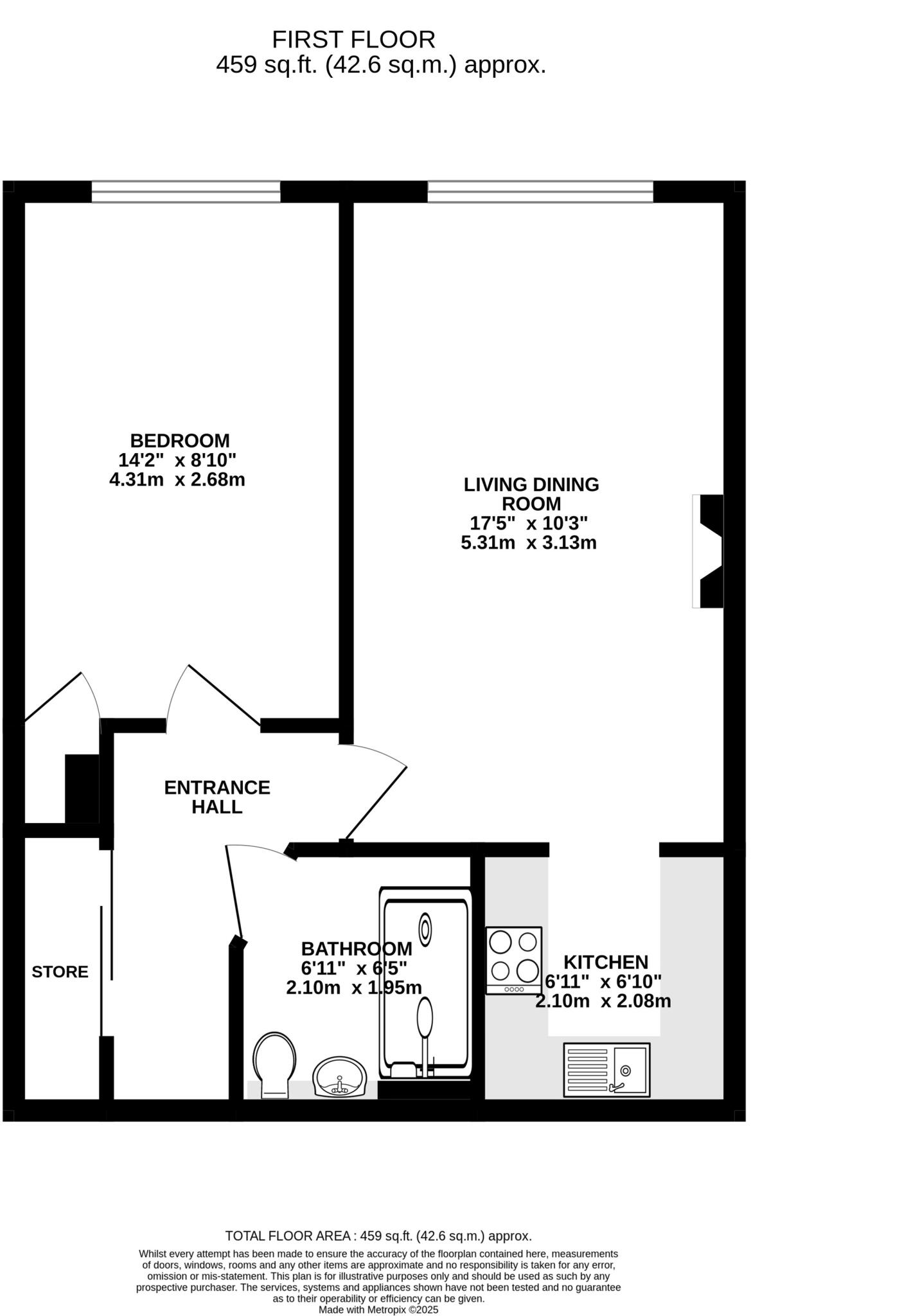
- Sqft (est)
- 459.00
The heatmap indicates the level of crime in the area. The color of the heatmap indicates the crime severity and recency.
Metrics Year-on-Year
- Average area value
- 646,257.00 £Increased by 0.56 %
- Est sale value
- 299,727.00 £Increased by 46.09 %
- Average area rental value
- 2,875.00 £/moIncreased by 74.77 %
- Est letting value
- 918.00 £/moIncreased by 100.00 %
- Est rental Yield
- 5.34 %Increased by 73.94 %
- Crime Rate
- 13.00 %Unchanged by 0.00 %
Agent Activity
Gascoigne Halman created the listing.
Nearby Schools
| Name | Type | Ofsted | Distance |
|---|---|---|---|
| Wilmslow Preparatory School | Other Independent School | 0.39 KM | |
| Wilmslow High School | Community School | Good | 0.66 KM |
| St Anne'S Fulshaw C Of E Primary School | Voluntary Controlled School | Good | 0.88 KM |
| Gorsey Bank Primary School | Academy Converter | Good | 1.43 KM |
| Ashdene Primary School | Community School | Outstanding | 1.49 KM |
Images
Nearby Streets
| Name | Average Price | Average Sqft | Distance |
|---|---|---|---|
| Queen's Road | £ 299,950 | 0 | 0.00 KM |
| Hawthorn Square | £ 0 | 0 | 0.00 KM |
| Fulshaw Cross | £ 345,000 | 0 | 0.00 KM |
| Fulshaw Cross | £ 525,000 | 0 | 0.00 KM |
| Grove Street | £ 135,000 | 0 | 0.00 KM |
Nearby Transport
| Name | NLC | TLC | Distance |
|---|---|---|---|
| Wilmslow | 2774 | WML | 1.09 KM |
| Alderley Edge | 2760 | ALD | 2.23 KM |
| Styal | 2868 | SYA | 2.78 KM |
| Handforth | 2767 | HTH | 3.51 KM |
| Heald Green | 2860 | HDG | 5.07 KM |
Nearby Listings
| Address | Price | Type | Score | Distance |
|---|---|---|---|---|
| Lynwood, Victoria Road, Wilmslow | £ 125,000 | BUY | 7 / 10 | 0.00 KM |
| Lynwood, Victoria Road, Wilmslow | £ 125,000 | BUY | 6 / 10 | 0.00 KM |
| Lynwood, Victoria Road, Wilmslow | £ 135,000 | BUY | 8 / 10 | 0.01 KM |
| Lynwood, Victoria Road, Wilmslow | £ 115,000 | BUY | 6 / 10 | 0.01 KM |
| Lynwood, Wilmslow, SK9 | £ 105,000 | BUY | 7 / 10 | 0.01 KM |
Nearby Properties
| Address | Price | Distance |
|---|---|---|
| 6 Victoria Road | £ 650,000 | 0.01 KM |
| 2 Sunny Lea Mews | £ 320,000 | 0.01 KM |
| 4 Victoria Road | £ 725,000 | 0.01 KM |
| 10 Victoria Road | £ 630,000 | 0.01 KM |
| 3 Victoria Road | £ 765,000 | 0.01 KM |