PO
Moira Court Balham High Road Balham SW17 7AQ
By Porters Estate Agents
£ 2,145
Porters Estate Agents says ..
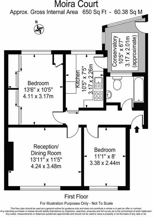
Working from home? – This two-bedroom first floor flat has a conservatory so you can work from home whilst enjoying the delightful views over the communal gardens. The flat offers a bright reception room, two double bedrooms, fitted kitchen, modern bathroom suite and of course the conservatory wh...
- Bedrooms
- 2
- Bathrooms
- 1
The heatmap indicates the level of crime in the area. The color of the heatmap indicates the crime severity and recency.
Metrics Year-on-Year
- Average area value
- 1,130,667.00 £Increased by 13.32 %
- Average area rental value
- 2,767.00 £/moIncreased by 5.85 %
- Est rental Yield
- 2.94 %Decreased by 6.37 %
- Crime Rate
- 4.00 %Unchanged by 0.00 %
from 997,755.00 £
from 2,614.00 £/mo
from 3.14 %
from 4.00 %
Agent Activity
Porters Estate Agents created the listing.
Nearby Schools
| Name | Type | Ofsted | Distance |
|---|---|---|---|
| St Anselm'S Catholic Primary School | Voluntary Aided School | Outstanding | 0.25 KM |
| Rutherford House School | Free Schools | Good | 0.32 KM |
| Eveline Day School | Other Independent School | 0.43 KM | |
| Trinity St Mary'S Cofe Primary School | Voluntary Aided School | Good | 0.59 KM |
| Ravenstone Primary School | Academy Converter | 0.62 KM |
Images
Nearby Streets
| Name | Average Price | Average Sqft | Distance |
|---|---|---|---|
| Upper Tooting Park | £ 480,000 | 0 | 0.00 KM |
| Brook Close | £ 0 | 0 | 0.00 KM |
| Fovant Hut | £ 0 | 0 | 0.00 KM |
| Topsham Road | £ 750,000 | 0 | 0.00 KM |
| Carnie Lodge | £ 450,000 | 0 | 0.00 KM |
Nearby Transport
| Name | NLC | TLC | Distance |
|---|---|---|---|
| Balham | 5399 | BAL | 0.85 KM |
| Wandsworth Common | 5395 | WSW | 1.11 KM |
| Tooting | 5389 | TOO | 2.04 KM |
| Streatham | 5383 | STE | 3.21 KM |
| Streatham Common | 5384 | SRC | 3.23 KM |
Nearby Listings
| Address | Price | Type | Score | Distance |
|---|---|---|---|---|
| Moira Court Balham High Road Balham SW17 7AQ | £ 2,145 | RENT | Unknown | 0.00 KM |
| Balham High Road, Tooting | £ 2,200 | RENT | Unknown | 0.03 KM |
| Moira Court, London, SW17 | £ 2,295 | RENT | Unknown | 0.07 KM |
| Moira Court, London, SW17 | £ 2,400 | RENT | Unknown | 0.07 KM |
| Wallace Court, Balham High Road, London, SW17 | £ 1,750 | RENT | Unknown | 0.09 KM |
Nearby Properties
| Address | Price | Distance |
|---|---|---|
| 253 Balham High Road | £ 115,000 | 0.11 KM |
| 251 Balham High Road | £ 300,000 | 0.11 KM |
| 275a Balham High Road | £ 147,500 | 0.13 KM |
| 263a Balham High Road | £ 45,000 | 0.13 KM |
| 277a Balham High Road | £ 152,000 | 0.13 KM |