East Street, Epsom, KT17
By Cairds The Estate Agents
£ 360,000
Reviews
3 out of 5 stars
Cairds The Estate Agents says ..
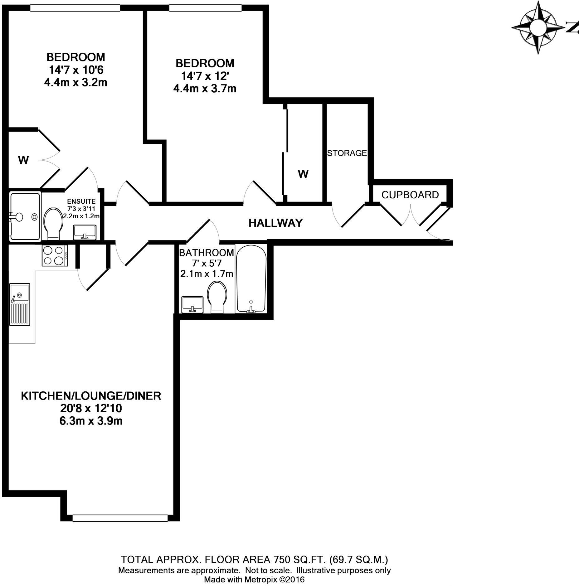
* NO CHAIN* 2-bed flat with open-plan living, modern kitchen, en-suite master bedroom, and convenient location near town centre and transport links. Ideal for seamless move-in and comfortable living. Call today to schedule your viewing!
Property Oracle says ..
This is a modern two-bedroom flat located on East Street in Epsom. The property is in excellent condition, with contemporary interior design and updated fixtures. It is situated in a convenient location, close to transportation, schools, and local amenities. While the price per square foot is above the area average, the condition and location may justify the cost. The lack of private outdoor space is a potential drawback for some buyers. The property is ideal for professionals or small families looking for a modern, well-located home.
Therefore, we give this property 6 / 10. *Disclaimer: This is our option and does constitute a recommendation or financial advice. Do your own research. *
- Price
- 7
- Condition
- 9
- Location
- 7
- Land
- 3
- Bedrooms
- 2
- Bathrooms
- 2
- Sqft (est)
- 64.50
The heatmap indicates the level of crime in the area. The color of the heatmap indicates the crime severity and recency.
Metrics Year-on-Year
- Average area value
- 371,130.00 £Increased by 2.62 %
- Est sale value
- 27,606.00 £Increased by 32.10 %
- Average area rental value
- 1,597.00 £/moIncreased by 9.08 %
- Est letting value
- 64.50 £/moUnchanged by 0.00 %
- Est rental Yield
- 5.16 %Increased by 6.17 %
- Crime Rate
- 7.00 %Unchanged by 0.00 %
Agent Activity
Cairds The Estate Agents created the listing.
Nearby Schools
| Name | Type | Ofsted | Distance |
|---|---|---|---|
| Little Downsend Epsom | Other Independent School | 0.83 KM | |
| Glyn School | Academy Converter | Outstanding | 0.88 KM |
| Blenheim High School | Academy Converter | Good | 1.05 KM |
| Epsom Sure Start Children'S Centre | Children's Centre | 1.07 KM | |
| Epsom Primary And Nursery School | Community School | Good | 1.07 KM |
Images
Nearby Streets
| Name | Average Price | Average Sqft | Distance |
|---|---|---|---|
| Depot Road | £ 230,000 | 0 | 0.00 KM |
| Church Road | £ 700,000 | 0 | 0.00 KM |
| Alexandra Road | £ 0 | 0 | 0.00 KM |
| Windsor Gardens | £ 0 | 0 | 0.00 KM |
| Church Street | £ 525,000 | 0 | 0.00 KM |
Nearby Transport
| Name | NLC | TLC | Distance |
|---|---|---|---|
| Epsom | 5360 | EPS | 0.98 KM |
| Ewell West | 5586 | EWW | 1.51 KM |
| Ewell East | 5415 | EWE | 2.28 KM |
| Epsom Downs | 5361 | EPD | 2.78 KM |
| Stoneleigh | 5606 | SNL | 3.22 KM |
Nearby Listings
| Address | Price | Type | Score | Distance |
|---|---|---|---|---|
| East Street, Epsom, KT17 | £ 360,000 | BUY | 6 / 10 | 0.00 KM |
| East Street, Epsom, KT17 | £ 399,999 | BUY | 7 / 10 | 0.00 KM |
| East Street, Epsom, KT17 | £ 525,000 | BUY | 7 / 10 | 0.00 KM |
| East Street, Epsom, KT17 | £ 290,000 | BUY | 6 / 10 | 0.00 KM |
| 57 East Street, Epsom | £ 365,000 | BUY | 6 / 10 | 0.01 KM |
Nearby Properties
| Address | Price | Distance |
|---|---|---|
| 11 Lintons Lane | £ 545,000 | 0.10 KM |
| 15 Lintons Lane | £ 233,500 | 0.10 KM |
| 3 Lintons Lane | £ 330,000 | 0.10 KM |
| 5 Lintons Lane | £ 199,950 | 0.10 KM |
| 9 Lintons Lane | £ 384,000 | 0.10 KM |