Bilton Road, Bilton, Rugby, Warwickshire, CV22 7BA
MC

Bilton Road, Bilton, Rugby, Warwickshire, CV22 7BA

By McCarthy & Stone - West Midlands

£ 309,950

Reviews

3 out of 5 stars

McCarthy & Stone - West Midlands says ..

Light-filled and thoughtfully finished with contemporary design and elegant fixtures throughout, Apartment 3 is a beautiful apartment with access to communal features including a sociable lounge and large landscaped gardens with seating.

Property Oracle says ..

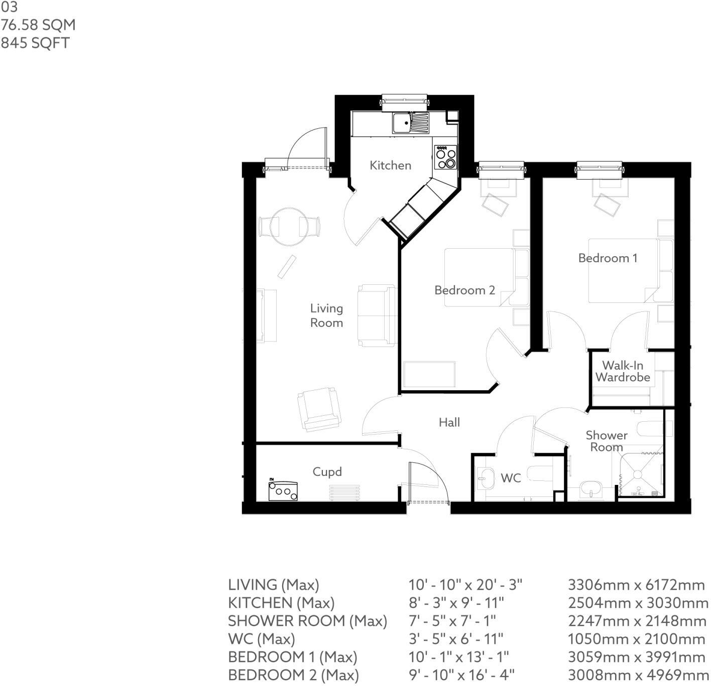
This is a retirement property in Bilton, Rugby, featuring 2 bedrooms and 845 sqft. It’s listed at £309,950. The average price per sqft in the area is £395, while this property’s price per sqft is £367, slightly below average. The property appears to be in good condition with modern fixtures. It benefits from communal gardens and is close to schools and transportation links.

Therefore, we give this property 7 / 10. *Disclaimer: This is our option and does constitute a recommendation or financial advice. Do your own research. *

Price
7
Condition
9
Location
8
Land
6
Bedrooms
2
Bathrooms
0
Sqft (est)
845.00

The heatmap indicates the level of crime in the area. The color of the heatmap indicates the crime severity and recency.

Metrics Year-on-Year

Average area value
310,824.00 £
Decreased by 10.74 %
from 348,218.00 £
Est sale value
333,775.00 £
Increased by 23.05 %
from 271,245.00 £
Average area rental value
798.00 £/mo
Decreased by 43.28 %
from 1,407.00 £/mo
Est letting value
845.00 £/mo
Unchanged by 0.00 %
from 845.00 £/mo
Est rental Yield
3.08 %
Decreased by 36.49 %
from 4.85 %
Crime Rate
3.00 %
Unchanged by 0.00 %
from 3.00 %

Agent Activity

  • McCarthy & Stone - West Midlands created the listing.

Nearby Schools

NameTypeOfstedDistance
Oakfield Primary AcademyAcademy Sponsor LedGood0.27 KM
Oakfield Children'S CentreChildren's Centre0.29 KM
St Matthew'S Bloxam Cofe Primary SchoolVoluntary Controlled SchoolRequires improvement0.31 KM
St Marie'S Catholic Primary School And NurseryVoluntary Aided SchoolGood0.53 KM
Harris Church Of England AcademyAcademy Sponsor LedRequires improvement0.76 KM

Images

Knox Court External - Entrance from Bilton Road Domestic support and personal care available Knox Court - Bistro Knox Court - Communal Lounge Knox Court - Communal Lounge Knox Court - Typical 1 Bed Apartment Living Room Domestic support and personal care available Knox Court - Typical 1 Bed Apartment Kitchen Knox Court - Typical 1 Bed Apartment Bedroom Knox Court - Typical 1 Bed Apartment Shower Room Knox Court - Typical 2 Bed Apartment Bedroom Knox Court - Typical 2 Bed Apartment Shower Room Knox Court - Bistro Knox Court - Typical 2 Bed Apartment Living Room Knox Court - Typical 2 Bed Apartment Kitchen Knox Court - Communal Library Area Knox Court - Guest Suite Knox Court - Main Entrance & Parking Knox Court External - Communal Gardens EPC

Nearby Streets

NameAverage PriceAverage SqftDistance
Vicarage Road £ 349,72500.00 KM
Firs Way £ 000.00 KM
Wentworth Road £ 240,00000.00 KM
Alfred Green Close £ 000.00 KM
Edward Street £ 210,00000.00 KM

Nearby Transport

NameNLCTLCDistance
Rugby1087RUG2.58 KM

Nearby Listings

AddressPriceTypeScoreDistance
Bilton Road, Bilton, Rugby, Warwickshire, CV22 7BA £ 309,950BUY7 / 100.00 KM
Bilton Road, Bilton, Rugby, Warwickshire, CV22 7BA £ 210,000BUY6 / 100.00 KM
Bilton Road, Bilton, Rugby, Warwickshire, CV22 7BA £ 309,995BUY6 / 100.00 KM
Bilton Road, Bilton, Rugby, Warwickshire, CV22 7BA £ 315,995BUY6 / 100.00 KM
Bilton Road, Bilton, Rugby, Warwickshire, CV22 7BA £ 206,250BUY7 / 100.00 KM

Nearby Properties

AddressPriceDistance
11 Bloxam Gardens £ 275,0000.14 KM
24 Bloxam Gardens £ 237,5000.14 KM
4 Bloxam Gardens £ 277,0000.14 KM
6 Bloxam Gardens £ 217,5000.14 KM
5 Bloxam Gardens £ 230,0000.14 KM