The Oval, Harrogate
Nicholls Tyreman logo

The Oval, Harrogate

By Nicholls Tyreman

£ 1,000,000

Reviews

3 out of 5 stars

Nicholls Tyreman says ..

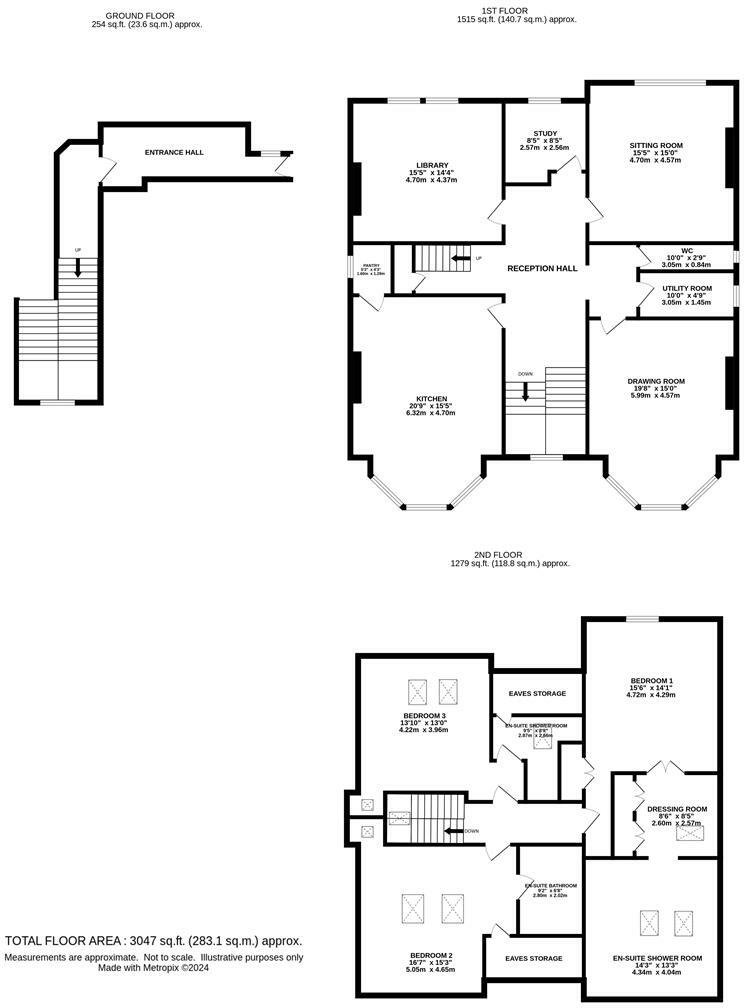
An extremely rare opportunity to purchase this magnificent, unique duplex apartment situated in an enviable position overlooking The Oval and being within level walking distance of the Harrogate Stray and the town centre. The property offers versatile and extensive accommodation which ha...

Property Oracle says ..

This property presents a compelling opportunity in the prestigious Harrogate area. Located on The Oval, it benefits from a highly sought-after address close to both the town centre and the expansive Harrogate Stray. The interior images showcase a tastefully decorated home that has undergone at least partial renovation. The kitchen appears to be newly-fitted to a high specification, while the bathrooms suggest recent upgrades. The inclusion of a sizeable garden is an added plus. While the property shows clear signs of being well cared for, some areas of the home would benefit from modernizing; some minor cosmetic works would improve the finish. The lack of detailed plot size and comparable property square footage data makes providing a completely definitive assessment of the value per square foot and overall value for money difficult. However, given the property’s location and the evident interior renovation and maintenance, the price appears to be in line with the expectations for properties in this area.

Therefore, we give this property 7 / 10. *Disclaimer: This is our option and does constitute a recommendation or financial advice. Do your own research. *

Price
7
Condition
7
Location
9
Land
5
Bedrooms
3
Bathrooms
3
Sqft (est)
3,047.00

The heatmap indicates the level of crime in the area. The color of the heatmap indicates the crime severity and recency.

Metrics Year-on-Year

Average area value
560,000.00 £
Decreased by 13.71 %
from 648,949.00 £
Est sale value
2,778,864.00 £
Increased by 171.43 %
from 1,023,792.00 £
Average area rental value
1,040.00 £/mo
Decreased by 26.29 %
from 1,411.00 £/mo
Est letting value
3,047.00 £/mo
from 0.00 £/mo
Est rental Yield
2.23 %
Decreased by 14.56 %
from 2.61 %
Crime Rate
3.00 %
Unchanged by 0.00 %
from 3.00 %

Agent Activity

  • Nicholls Tyreman created the listing.

Nearby Schools

NameTypeOfstedDistance
St Peter'S Church Of England Primary SchoolAcademy ConverterGood0.75 KM
Harrogate Grammar SchoolAcademy Converter0.75 KM
Oatlands Infant SchoolAcademy Converter1.10 KM
Western Primary SchoolAcademy ConverterOutstanding1.21 KM
Harrogate Language AcademyMiscellaneous1.32 KM

Images

IMG_2296.JPEG Drawing Room Reception Hall Reception Hall Sitting Room Library Breakfast Kitchen Breakfast Kitchen Bedroom One Bedroom Two En-suite Bathroom IMG_2316.JPEG Breakfast Kitchen Breakfast Kitchen Breakfast Kitchen Dressing Room En-suite Wet Room Bedroom Three En-suite Shower Room IMG_2327.jpg IMG_2321.jpg IMG_2312.JPEG IMG_2333.JPEG

Nearby Streets

NameAverage PriceAverage SqftDistance
Back Royal Crescent £ 1,250,00000.00 KM
Leeds Road £ 550,00000.00 KM
St George's Roundabout £ 265,00000.00 KM
St George's Road £ 735,00000.00 KM
Kenilworth Avenue £ 000.00 KM

Nearby Transport

NameNLCTLCDistance
Harrogate8213HGT1.12 KM
Hornbeam Park8212HBP1.49 KM
Pannal8479PNL2.87 KM
Starbeck8221SBE4.62 KM
Weeton8509WET8.11 KM

Nearby Listings

AddressPriceTypeScoreDistance
The Oval, Harrogate £ 1,000,000BUY7 / 100.00 KM
The Oval, Harrogate, North Yorkshire, HG2 £ 2,950,000BUY8 / 100.03 KM
West Trinity House, Trinity Church Hall, Park Road, Harrogate, HG2 £ 995,000BUY7 / 100.08 KM
The Oval, Harrogate, HG2 £ 1,000,000BUY9 / 100.09 KM
Park Drive, Harrogate £ 375,000BUY7 / 100.11 KM

Nearby Properties

AddressPriceDistance
42 The Oval £ 1,420,0000.11 KM
28 The Oval £ 635,0000.11 KM
48 The Oval £ 1,175,0000.11 KM
20a The Oval £ 600,0000.11 KM
16c The Oval £ 511,0000.11 KM