Kingswood Way, Wallington
By Cromwells Estate Agents
£ 550,000
Reviews
3 out of 5 stars
Cromwells Estate Agents says ..
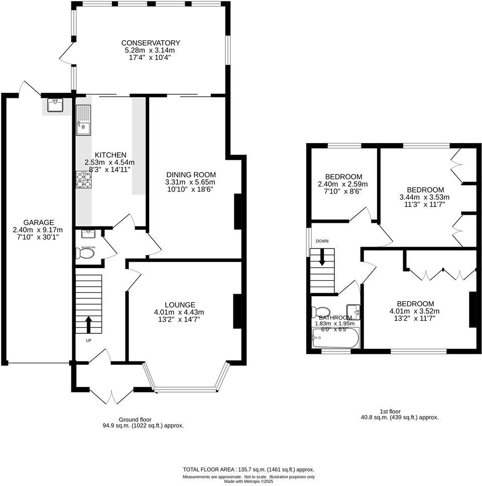
Nestled away in a sought after cul de sac in Wallington is this charming three bedroom extended family home. The property benefits from an 18ft dining room, a conservatory, a downstairs WC, a 30ft garage with further scope to extend s.t.p.p, a pretty rear garden and off street parking.
Property Oracle says ..
This is a three-bedroom semi-detached house located in Wallington, Sutton. The property features a garden, a conservatory, and off-street parking. While the house is in a habitable condition, it would benefit from modernisation to bring it up to current standards. The location is convenient for families, with several schools nearby and reasonable access to transportation. The asking price seems a little high compared to similar properties in the area and the average price per square foot, suggesting there might be room for negotiation.
Therefore, we give this property 6 / 10. *Disclaimer: This is our option and does constitute a recommendation or financial advice. Do your own research. *
- Price
- 6
- Condition
- 6
- Location
- 7
- Land
- 7
- Bedrooms
- 3
- Bathrooms
- 1
- Sqft (est)
- 314.41
The heatmap indicates the level of crime in the area. The color of the heatmap indicates the crime severity and recency.
Metrics Year-on-Year
- Average area value
- 393,750.00 £Decreased by 16.75 %
- Est sale value
- 199,964.76 £Increased by 10.03 %
- Average area rental value
- 2,150.00 £/moIncreased by 26.03 %
- Est letting value
- 943.23 £/moIncreased by 50.00 %
- Est rental Yield
- 6.55 %Increased by 51.27 %
- Crime Rate
- 2.00 %Unchanged by 0.00 %
Agent Activity
Cromwells Estate Agents created the listing.
Nearby Schools
| Name | Type | Ofsted | Distance |
|---|---|---|---|
| High View A Sure Start Children'S Centre | Children's Centre | 0.18 KM | |
| High View Primary School | Foundation School | Good | 0.18 KM |
| Link Primary School | Academy Special Converter | Outstanding | 0.45 KM |
| Wilson'S School | Academy Converter | 0.62 KM | |
| Link Secondary School | Academy Special Converter | 0.77 KM |
Images
Nearby Streets
| Name | Average Price | Average Sqft | Distance |
|---|---|---|---|
| Central Avenue | £ 0 | 0 | 0.00 KM |
| Plough Lane | £ 0 | 0 | 0.00 KM |
| East Avenue | £ 0 | 0 | 0.00 KM |
| Queen Elizabeth's Walk | £ 0 | 0 | 0.00 KM |
| Eagle Close | £ 285,000 | 0 | 0.00 KM |
Nearby Transport
| Name | NLC | TLC | Distance |
|---|---|---|---|
| Waddon | 5392 | WDO | 1.47 KM |
| Wallington | 5394 | WLT | 2.32 KM |
| Hackbridge | 5364 | HCB | 3.04 KM |
| West Croydon | 5411 | WCY | 3.44 KM |
| Purley | 5379 | PUR | 3.44 KM |
Nearby Listings
| Address | Price | Type | Score | Distance |
|---|---|---|---|---|
| Kingswood Way, Wallington | £ 550,000 | BUY | 6 / 10 | 0.00 KM |
| Kingswood Way, Wallington | £ 400,000 | BUY | 6 / 10 | 0.04 KM |
| Kingswood Way, Wallington | £ 475,000 | BUY | 6 / 10 | 0.04 KM |
| Banstead Way, Wallington, SM6 | £ 525,000 | BUY | Unknown | 0.09 KM |
| Gomshall Avenue, Wallington | £ 475,000 | BUY | Unknown | 0.09 KM |
Nearby Properties
| Address | Price | Distance |
|---|---|---|
| 27 Gomshall Avenue | £ 275,000 | 0.09 KM |
| 12 Gomshall Avenue | £ 440,000 | 0.09 KM |
| 4 Gomshall Avenue | £ 440,000 | 0.09 KM |
| 37 Gomshall Avenue | £ 465,000 | 0.09 KM |
| 16 Gomshall Avenue | £ 575,000 | 0.09 KM |