LO
Independent Place, London, E8
By Location Location
£ 2,750
Location Location says ..
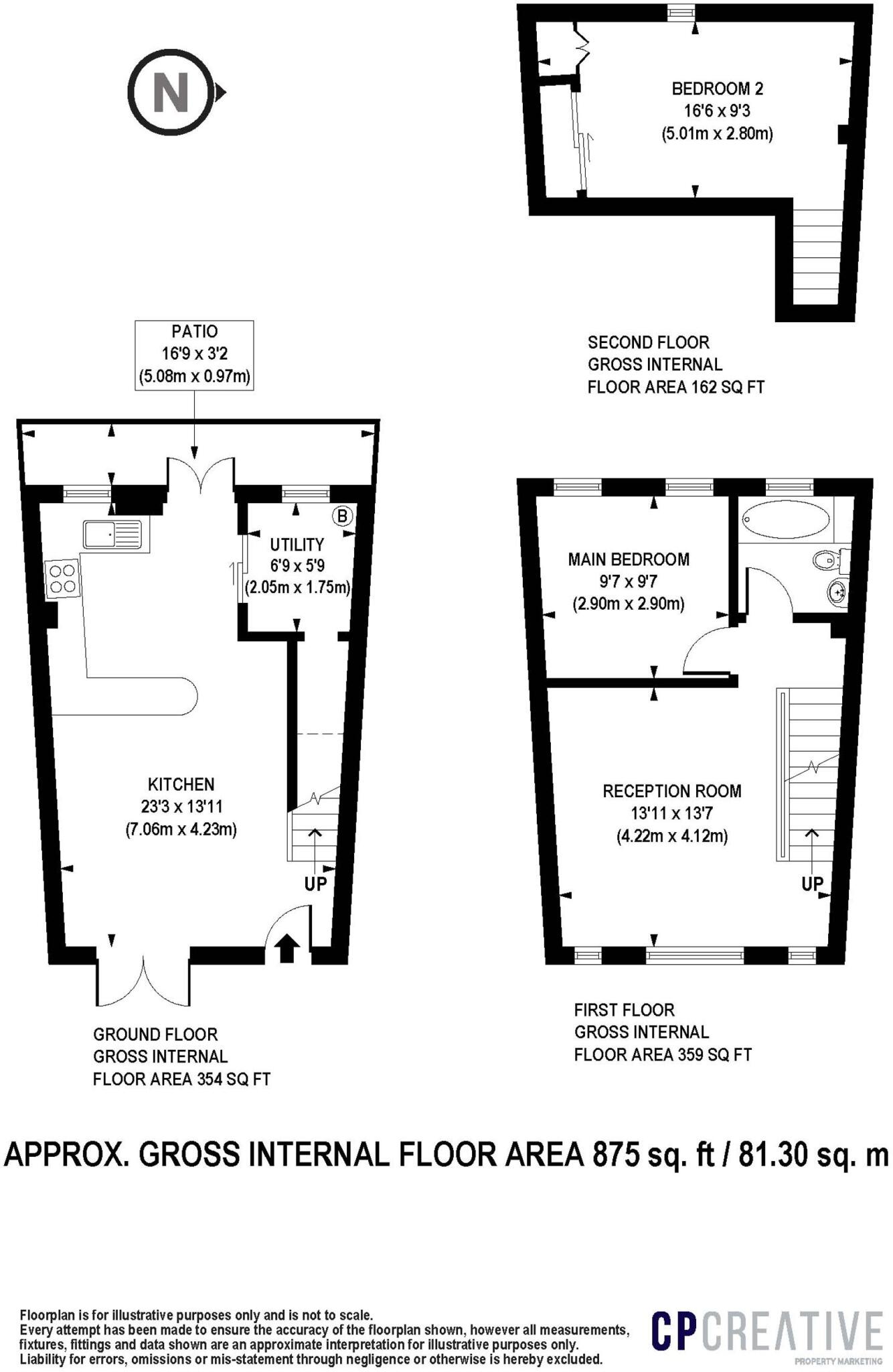
This beautifully presented two-bedroom, one-bathroom mid-terraced house offers a blend of modern style and comfortable living. Further highlights include a unique contemporary staircase, a private balcony feature overlooking the lower level, and a bathroom fitted with striking blue tiling and a ...
- Bedrooms
- 2
- Bathrooms
- 1
The heatmap indicates the level of crime in the area. The color of the heatmap indicates the crime severity and recency.
Metrics Year-on-Year
- Average area value
- 925,000.00 £Increased by 54.96 %
- Average area rental value
- 3,065.00 £/moIncreased by 17.66 %
- Est rental Yield
- 3.98 %Decreased by 24.05 %
- Crime Rate
- 3.00 %Unchanged by 0.00 %
from 596,923.00 £
from 2,605.00 £/mo
from 5.24 %
from 3.00 %
Agent Activity
Location Location created the listing.
Nearby Schools
| Name | Type | Ofsted | Distance |
|---|---|---|---|
| The Petchey Academy | Academy Sponsor Led | Good | 0.08 KM |
| Halley House School | Free Schools | Good | 0.15 KM |
| Shacklewell Primary School | Community School | Outstanding | 0.26 KM |
| Colvestone Primary School | Community School | Good | 0.44 KM |
| Inspired Directions School | Other Independent Special School | Good | 0.64 KM |
Images
Nearby Streets
| Name | Average Price | Average Sqft | Distance |
|---|---|---|---|
| Shacklewell Lane | £ 0 | 0 | 0.00 KM |
| Scoble Place | £ 285,000 | 0 | 0.00 KM |
| Birkbeck Road | £ 0 | 0 | 0.00 KM |
| Foxley Close | £ 0 | 0 | 0.00 KM |
| Blakeney Close | £ 0 | 0 | 0.00 KM |
Nearby Transport
| Name | NLC | TLC | Distance |
|---|---|---|---|
| Dalston Kingsland | 1429 | DLK | 0.65 KM |
| Dalston Junction | 1443 | DLJ | 0.77 KM |
| Rectory Road | 6967 | REC | 0.82 KM |
| Hackney Downs | 6867 | HAC | 1.18 KM |
| Stoke Newington | 6934 | SKW | 1.53 KM |
Nearby Listings
| Address | Price | Type | Score | Distance |
|---|---|---|---|---|
| Independent Place, London, E8 | £ 2,750 | RENT | Unknown | 0.00 KM |
| Shacklewell Lane, London | £ 550 | RENT | Unknown | 0.08 KM |
| Shacklewell Lane, Hackney, E8 | £ 850 | RENT | Unknown | 0.11 KM |
| St. Mark's Rise, Dalston E8 | £ 1,300 | RENT | Unknown | 0.11 KM |
| St Marks Rise, Dalston, London, E8 | £ 1,300 | RENT | Unknown | 0.11 KM |
Nearby Properties
| Address | Price | Distance |
|---|---|---|
| 56b Shacklewell Lane | £ 595,000 | 0.09 KM |
| 70 Shacklewell Lane | £ 60,000 | 0.09 KM |
| 58 Shacklewell Lane | £ 1,562,500 | 0.09 KM |
| 48 Shacklewell Lane | £ 477,500 | 0.09 KM |
| 68 Shacklewell Lane | £ 189,000 | 0.09 KM |