Irene Avenue, Grangetown, Sunderland
By Michael Hodgson
£ 299,950
Reviews
3 out of 5 stars
Michael Hodgson says ..
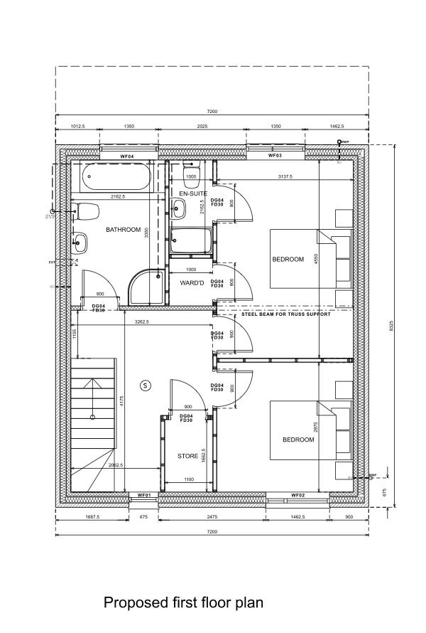
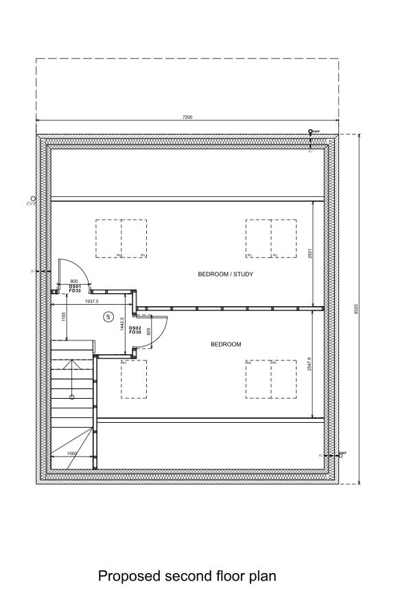
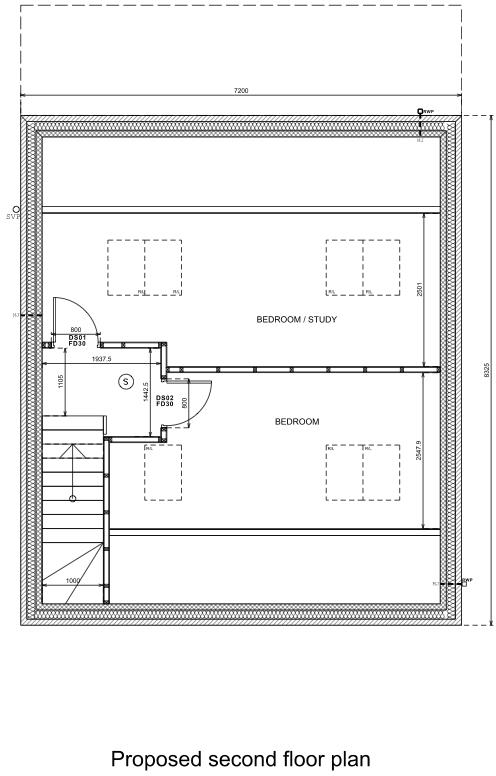
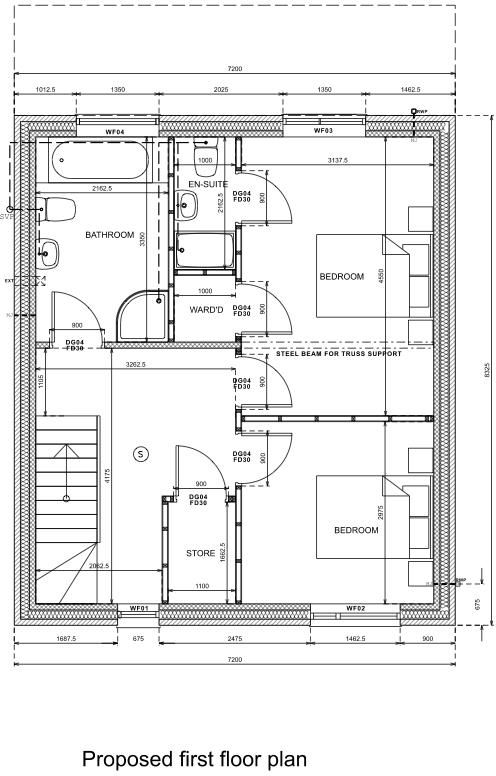
CURRENTLY UNDER CONSTRUCTION - The property when completed will comprise of a 4 bedroom, 3 storey detached house situated at the head of the cul-de-sac on Irene Avenue offering a discerning purchaser a lovely home once completed. Grangetown offers convenient access to local shops, schools and am...
Property Oracle says ..
Therefore, we give this property 6 / 10. *Disclaimer: This is our option and does constitute a recommendation or financial advice. Do your own research. *
- Price
- 4
- Condition
- 9
- Location
- 7
- Land
- 7
- Bedrooms
- 4
- Bathrooms
- 2
- Sqft (est)
- 585.23
The heatmap indicates the level of crime in the area. The color of the heatmap indicates the crime severity and recency.
Metrics Year-on-Year
- Average area value
- 306,650.00 £Increased by 51.31 %
- Est sale value
- 196,052.05 £Increased by 70.05 %
- Average area rental value
- 647.00 £/moDecreased by 15.31 %
- Est letting value
- 0.00 £/mo
- Est rental Yield
- 2.53 %Decreased by 44.03 %
- Crime Rate
- 1.00 %Unchanged by 0.00 %
from 202,670.00 £
from 115,290.31 £
from 764.00 £/mo
from 0.00 £/mo
from 4.52 %
from 1.00 %
Agent Activity
Michael Hodgson created the listing.
Nearby Schools
| Name | Type | Ofsted | Distance |
|---|---|---|---|
| Grangetown Primary School | Community School | Good | 1.01 KM |
| Sunderland Children'S Centre Grangetown | Children's Centre Linked Site | 1.01 KM | |
| Ryhope Infant School Academy | Academy Converter | Good | 1.07 KM |
| Ryhope Junior School | Community School | Requires improvement | 1.07 KM |
| Sunderland Children'S Centre Ryhope | Children's Centre Linked Site | 1.07 KM |
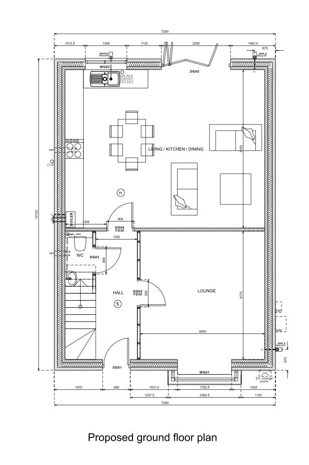
Images
Nearby Streets
| Name | Average Price | Average Sqft | Distance |
|---|---|---|---|
| St Aidan's Avenue | £ 185,000 | 0 | 0.00 KM |
| Ocean Road | £ 0 | 0 | 0.00 KM |
| Leechmere Way | £ 139,950 | 0 | 0.00 KM |
| Beverley Road | £ 0 | 0 | 0.00 KM |
| Romney Avenue | £ 195,000 | 0 | 0.00 KM |
Nearby Transport
| Name | NLC | TLC | Distance |
|---|---|---|---|
| Sunderland | 7640 | SUN | 3.38 KM |
| Seaham | 7814 | SEA | 5.01 KM |
Nearby Listings
| Address | Price | Type | Score | Distance |
|---|---|---|---|---|
| Irene Avenue, Grangetown, Sunderland | £ 299,950 | BUY | 6 / 10 | 0.00 KM |
| Tarn Drive, Grangetown, Sunderland | £ 135,000 | BUY | 7 / 10 | 0.15 KM |
| Irene Avenue, Grangetown, Sunderland | £ 289,999 | BUY | 7 / 10 | 0.15 KM |
| Tarn Drive, Grangetown, Sunderland | £ 59,950 | BUY | Unknown | 0.15 KM |
| Tarn Drive, Sunderland, Tyne and Wear, SR2 | £ 305,000 | BUY | 7 / 10 | 0.16 KM |
Nearby Properties
| Address | Price | Distance |
|---|---|---|
| 15 Irene Avenue | £ 145,000 | 0.08 KM |
| 12 Irene Avenue | £ 156,500 | 0.08 KM |
| 19 Irene Avenue | £ 155,000 | 0.08 KM |
| 1 Irene Avenue | £ 130,000 | 0.08 KM |
| 22 Irene Avenue | £ 157,500 | 0.08 KM |