Purneys Road, Kidbrooke, London, SE9
By Foxtons
£ 625,000
Reviews
3 out of 5 stars
Foxtons says ..
Ideally set near parks and within a short distance of Kidbrooke Village, this 3 bedroom house offers exquisite and sunfilled interiors throughout. Its modern design is complemented by a skylight and a wonderful garden.
Property Oracle says ..
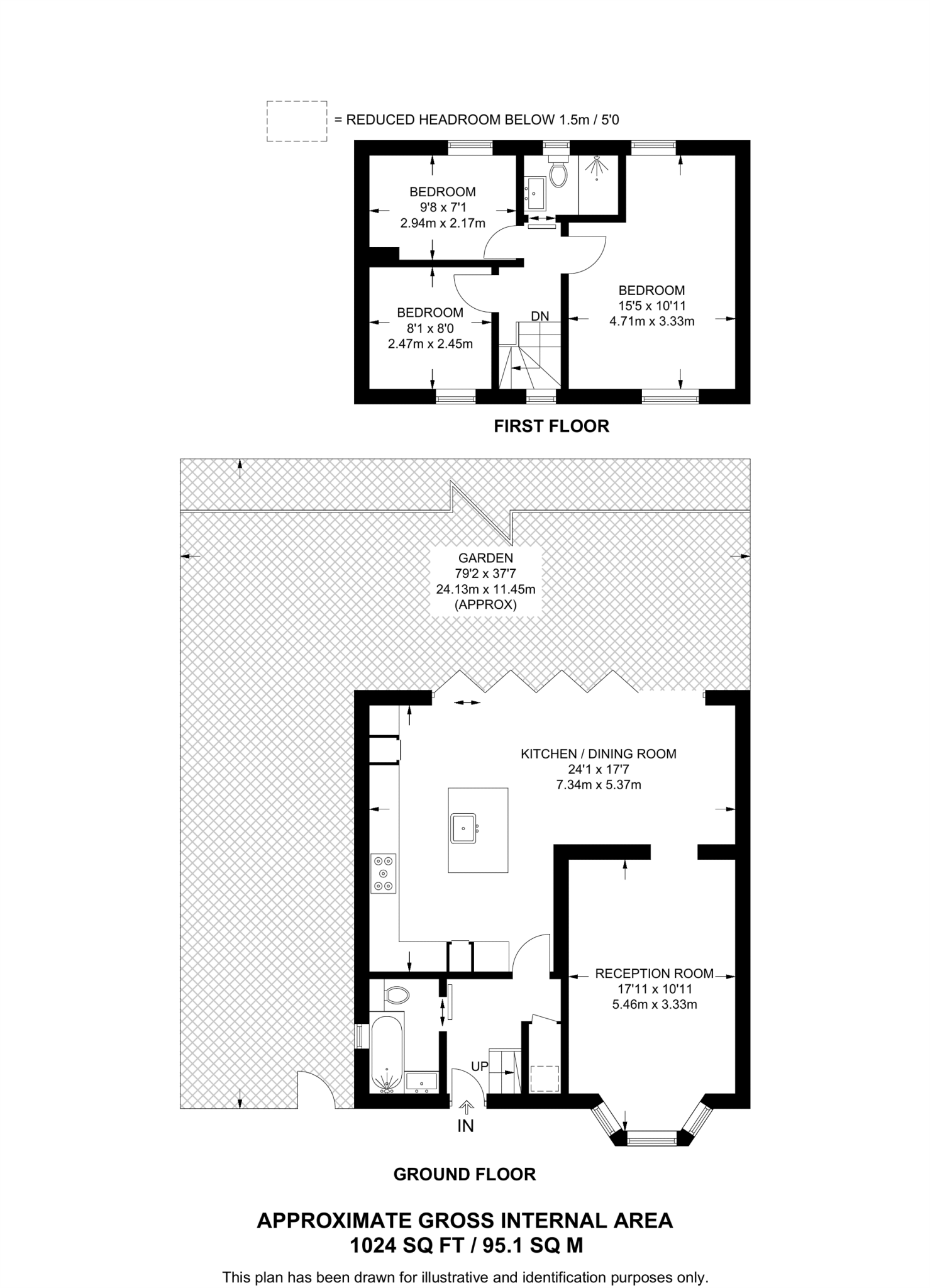
This property is a 3-bedroom semi-detached house located in Kidbrooke, London. The location benefits from being relatively close to Kidbrooke train station, providing convenient access to central London. There are also several well-regarded schools within a reasonable distance, making it attractive to families. The property itself has recently undergone a significant extension and modernisation, resulting in a contemporary and well-presented interior. The extension includes a large, open-plan kitchen/dining area with bi-fold doors leading to the garden. The kitchen is modern and well-equipped. The property also benefits from a newly fitted bathroom. While the plot size is not specified, the garden appears to be of reasonable size. The asking price of £625,000 is higher than the average price for the area but is in line with prices of similar properties in the immediate vicinity. Given the extent of the recent renovation work and the desirable location, the price may be considered reasonable.
Therefore, we give this property 7 / 10. *Disclaimer: This is our option and does constitute a recommendation or financial advice. Do your own research. *
- Price
- 7
- Condition
- 9
- Location
- 8
- Land
- 6
- Bedrooms
- 3
- Bathrooms
- 1
- Sqft (est)
- 1,023.65
The heatmap indicates the level of crime in the area. The color of the heatmap indicates the crime severity and recency.
Metrics Year-on-Year
- Average area value
- 596,706.00 £Increased by 41.85 %
- Est sale value
- 673,561.70 £Increased by 23.45 %
- Average area rental value
- 2,446.00 £/moIncreased by 8.47 %
- Est letting value
- 2,047.30 £/moUnchanged by 0.00 %
- Est rental Yield
- 4.92 %Decreased by 23.48 %
- Crime Rate
- 6.00 %Unchanged by 0.00 %
Agent Activity
Foxtons created the listing.
Nearby Schools
| Name | Type | Ofsted | Distance |
|---|---|---|---|
| Newhaven Pupil Referral Unit | Pupil Referral Unit | Good | 0.15 KM |
| Ealdham Primary School | Community School | Good | 0.35 KM |
| Storkway And Shooter'S Hill Children'S Centre | Children's Centre | 0.45 KM | |
| Wize Up | Other Independent Special School | Good | 0.50 KM |
| Henwick Primary School | Community School | Good | 0.65 KM |
Images
Nearby Streets
| Name | Average Price | Average Sqft | Distance |
|---|---|---|---|
| Meadowside | £ 0 | 0 | 0.00 KM |
| Kimbell Place | £ 300,000 | 0 | 0.00 KM |
| Rydons Close | £ 0 | 0 | 0.00 KM |
| Green Way | £ 485,000 | 0 | 0.00 KM |
| Dowding Way | £ 0 | 0 | 0.00 KM |
Nearby Transport
| Name | NLC | TLC | Distance |
|---|---|---|---|
| Kidbrooke | 5108 | KDB | 1.15 KM |
| Eltham | 5103 | ELW | 1.71 KM |
| Mottingham | 5118 | MTG | 2.58 KM |
| Lee | 5110 | LEE | 2.89 KM |
| Charlton | 5144 | CTN | 3.09 KM |
Nearby Listings
| Address | Price | Type | Score | Distance |
|---|---|---|---|---|
| Purneys Road, Kidbrooke, London, SE9 | £ 625,000 | BUY | 7 / 10 | 0.00 KM |
| Bland Street, Eltham SE9 | £ 350,000 | BUY | 6 / 10 | 0.03 KM |
| Purneys Road, Eltham, London, SE9 | £ 625,000 | BUY | 7 / 10 | 0.03 KM |
| Will Crooks Gardens, London, SE9 | £ 425,000 | BUY | 5 / 10 | 0.04 KM |
| Purneys Road, Eltham SE9 | £ 425,000 | BUY | 6 / 10 | 0.07 KM |
Nearby Properties
| Address | Price | Distance |
|---|---|---|
| 70 Purneys Road | £ 415,000 | 0.02 KM |
| 12 Purneys Road | £ 330,000 | 0.02 KM |
| 64 Purneys Road | £ 325,000 | 0.02 KM |
| 1 Bland Street | £ 169,995 | 0.03 KM |
| 24 Will Crooks Gardens | £ 340,000 | 0.12 KM |