BLaK Property says ..
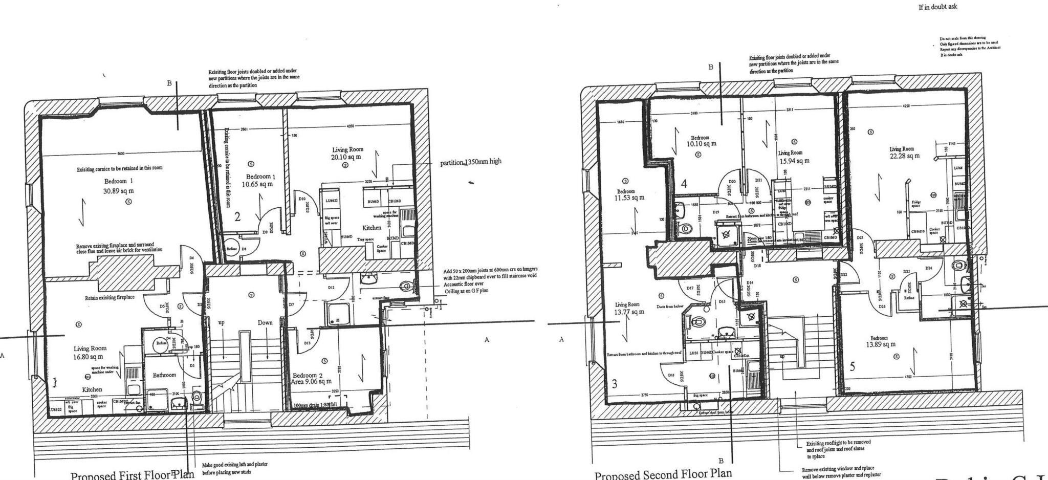
A rare opportunity to acquire a Freehold Investment Property comprising 5 1 and 2 Bedroom Flats producing a Gross income in excess of £30,000 The Business below, Cafe Collective is Un-affected
Property Oracle says ..
This property is a 6 bedroom, 5 bathroom flat located on High Street in Bideford, Devon. The list price is £350,000, and the property has 1,883.79 sqft of space. The average price for properties in the area is £265,283, with an average price per sqft of £251. While the property is situated on the High Street, which is generally a desirable location, the provided images suggest the property is in need of modernisation. The lack of plot size information prevents a full assessment of the land aspect. Given the condition and the higher-than-average price per sqft, the list price may be considered slightly high compared to other similar properties in the area.
Therefore, we give this property 4 / 10. *Disclaimer: This is our option and does constitute a recommendation or financial advice. Do your own research. *
- Price
- 5
- Condition
- 4
- Location
- 7
- Land
- 1
- Bedrooms
- 6
- Bathrooms
- 5
- Sqft (est)
- 1,883.79
The heatmap indicates the level of crime in the area. The color of the heatmap indicates the crime severity and recency.
Metrics Year-on-Year
- Average area value
- 236,000.00 £Decreased by 21.21 %
- Est sale value
- 459,644.76 £Decreased by 6.51 %
- Average area rental value
- 913.00 £/moIncreased by 21.90 %
- Est letting value
- 0.00 £/mo
- Est rental Yield
- 4.64 %Increased by 54.67 %
- Crime Rate
- 105.00 %Unchanged by 0.00 %
Agent Activity
BLaK Property created the listing.
Nearby Schools
| Name | Type | Ofsted | Distance |
|---|---|---|---|
| St Mary'S Church Of England Primary School | Voluntary Controlled School | Good | 0.82 KM |
| West Croft School | Community School | Requires improvement | 0.90 KM |
| Bideford Bay Children'S Centre | Children's Centre | 1.02 KM | |
| Kingsley School | Other Independent School | 1.42 KM | |
| Bideford College | Academy Sponsor Led | Requires improvement | 1.55 KM |
Images
Nearby Streets
| Name | Average Price | Average Sqft | Distance |
|---|---|---|---|
| New Street | £ 175,000 | 0 | 0.00 KM |
| Cooper Street | £ 0 | 0 | 0.00 KM |
| Chapel Street | £ 0 | 0 | 0.00 KM |
| The Quay | £ 550,000 | 0 | 0.00 KM |
| Grenville Street | £ 0 | 0 | 0.00 KM |
Nearby Listings
| Address | Price | Type | Score | Distance |
|---|---|---|---|---|
| High Street, Bideford | £ 350,000 | BUY | 4 / 10 | 0.00 KM |
| Mill Street, Bideford | £ 275,000 | BUY | Unknown | 0.07 KM |
| King Street, Bideford, Devon, EX39 | £ 130,000 | BUY | 6 / 10 | 0.10 KM |
| Lower Gunstone, Bideford, Devon, EX39 | £ 20,000 | BUY | Unknown | 0.11 KM |
| Chapel Street & Shop, Bideford, EX39 | £ 245,000 | BUY | 5 / 10 | 0.11 KM |
Nearby Properties
| Address | Price | Distance |
|---|---|---|
| 7a High Street | £ 153,000 | 0.03 KM |
| 12 Allhalland Street | £ 225,000 | 0.10 KM |
| 17a Allhalland Street | £ 75,000 | 0.12 KM |
| 49a Mill Street | £ 145,000 | 0.12 KM |
| 19 Mill Street | £ 100,000 | 0.12 KM |