Kirkwood Grove, Leeds, West Yorkshire, LS16
By Hardisty & co
£ 249,950
Reviews
3 out of 5 stars
Hardisty & co says ..
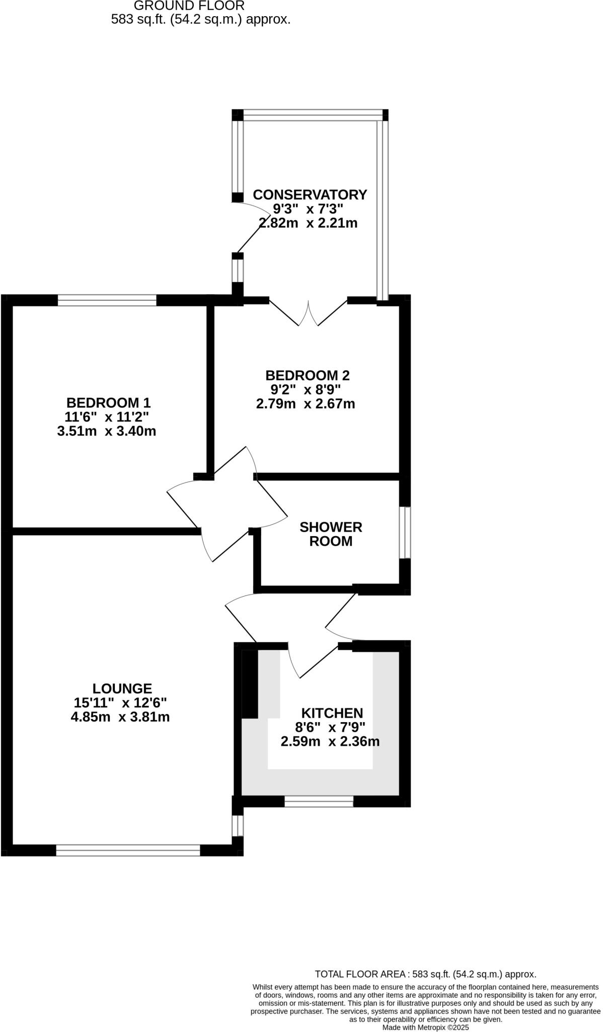
NO CHAIN This well-proportioned two-bedroom semi-detached bungalow offers comfortable and accessible living, complete with driveway parking, a detached garage and a low-maintenance rear garden. The home benefits from central heating, a modern wet-room upgrade and bright living spaces, while...
Property Oracle says ..
This is a two-bedroom bungalow located in Cookridge, Leeds. The property offers a blend of suburban living with convenient access to local amenities, schools, and transportation links. The bungalow includes a front garden, a reasonable-sized back garden, and a detached garage. While the property is functional, it would benefit from modernisation, particularly in the kitchen and bathroom. The property is located close to Wood Hill Garth, Black Wood Rise, Elder Close, Troy Hill and Grove Farm Crescent. The closest train station is Horsforth which is 1.06 KM away. The property is located 0.37 KM away from Cookridge Holy Trinity Church Of England Primary School.
Therefore, we give this property 6 / 10. *Disclaimer: This is our option and does constitute a recommendation or financial advice. Do your own research. *
- Price
- 7
- Condition
- 5
- Location
- 7
- Land
- 7
- Bedrooms
- 2
- Bathrooms
- 1
- Sqft (est)
- 543.87
The heatmap indicates the level of crime in the area. The color of the heatmap indicates the crime severity and recency.
Metrics Year-on-Year
- Average area value
- 444,966.00 £Increased by 5.54 %
- Est sale value
- 244,741.50 £Increased by 32.35 %
- Average area rental value
- 1,480.00 £/moDecreased by 0.34 %
- Est letting value
- 543.87 £/moUnchanged by 0.00 %
- Est rental Yield
- 3.99 %Decreased by 5.67 %
- Crime Rate
- 6.00 %Unchanged by 0.00 %
Agent Activity
Hardisty & co created the listing.
Nearby Schools
| Name | Type | Ofsted | Distance |
|---|---|---|---|
| Cookridge Holy Trinity Church Of England Primary School | Voluntary Aided School | Good | 0.37 KM |
| Cookridge Primary School | Foundation School | Good | 1.05 KM |
| Lighthouse School Leeds | Free Schools Special | Good | 1.71 KM |
| Ralph Thoresby School | Foundation School | Good | 1.87 KM |
| St Mary'S Catholic Primary School, Horsforth | Academy Converter | 1.88 KM |
Images
Nearby Streets
| Name | Average Price | Average Sqft | Distance |
|---|---|---|---|
| Wood Hill Garth | £ 270,000 | 0 | 0.00 KM |
| Black Wood Rise | £ 0 | 0 | 0.00 KM |
| Elder Close | £ 0 | 0 | 0.00 KM |
| Troy Hill | £ 180,000 | 0 | 0.00 KM |
| Grove Farm Crescent | £ 0 | 0 | 0.00 KM |
Nearby Transport
| Name | NLC | TLC | Distance |
|---|---|---|---|
| Horsforth | 8499 | HRS | 1.06 KM |
| Kirkstall Forge | 6544 | KLF | 3.55 KM |
| Headingley | 8498 | HDY | 5.37 KM |
| Bramley (West Yorkshire) | 8496 | BLE | 5.75 KM |
| Burley Park | 8500 | BUY | 7.09 KM |
Nearby Listings
| Address | Price | Type | Score | Distance |
|---|---|---|---|---|
| Kirkwood Grove, Leeds, West Yorkshire, LS16 | £ 249,950 | BUY | 6 / 10 | 0.00 KM |
| Green Lane, Cookridge, Leeds | £ 345,000 | BUY | 7 / 10 | 0.08 KM |
| Dale Park Walk, Leeds | £ 370,000 | BUY | 7 / 10 | 0.09 KM |
| Green Lane, Cookridge, Leeds | £ 347,500 | BUY | Unknown | 0.10 KM |
| Kirkwood Close, Leeds, West Yorkshire | £ 290,000 | BUY | 7 / 10 | 0.10 KM |
Nearby Properties
| Address | Price | Distance |
|---|---|---|
| 133 Green Lane | £ 223,500 | 0.05 KM |
| 139 Green Lane | £ 196,000 | 0.05 KM |
| 149 Green Lane | £ 310,500 | 0.05 KM |
| 135 Green Lane | £ 295,000 | 0.05 KM |
| 110 Green Lane | £ 175,000 | 0.08 KM |