NE
Queens Drive, Leicester Forest East, LE3
By Newton Fallowell
£ 274,950
Reviews
3 out of 5 stars
Newton Fallowell says ..
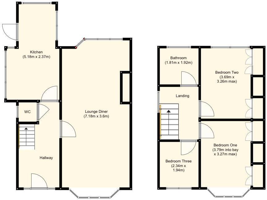
Enjoying a larger than normal garden to the rear, walk in and be surprised by this traditional three bedroom bay fronted semi detached home ideal for growing families being within close proximity to local schooling. Boasting amazing potential for extension subject to necessary consent and feat...
Property Oracle says ..
Therefore, we give this property 7 / 10. *Disclaimer: This is our option and does constitute a recommendation or financial advice. Do your own research. *
- Price
- 9
- Condition
- 6
- Location
- 7
- Land
- 8
- Bedrooms
- 3
- Bathrooms
- 1
- Sqft (est)
- 759.59
The heatmap indicates the level of crime in the area. The color of the heatmap indicates the crime severity and recency.
Metrics Year-on-Year
- Average area value
- 508,948.00 £Increased by 6.99 %
- Est sale value
- 494,493.09 £Increased by 48.63 %
- Average area rental value
- 1,944.00 £/moIncreased by 29.95 %
- Est letting value
- 1,519.18 £/moIncreased by 100.00 %
- Est rental Yield
- 4.58 %Increased by 21.49 %
- Crime Rate
- 10.00 %Unchanged by 0.00 %
from 475,711.00 £
from 332,700.42 £
from 1,496.00 £/mo
from 759.59 £/mo
from 3.77 %
from 10.00 %
Agent Activity
Newton Fallowell created the listing.
Nearby Schools
| Name | Type | Ofsted | Distance |
|---|---|---|---|
| Stafford Leys Community Primary School | Academy Converter | Good | 0.50 KM |
| Fossebrook Primary School | Academy Sponsor Led | Good | 1.15 KM |
| New Lubbesthorpe Primary School | Free Schools | 1.34 KM | |
| Kirby Muxloe Primary School | Academy Converter | Good | 2.41 KM |
| Braunstone Frith Primary Academy | Academy Converter | 2.77 KM |
Images
Nearby Streets
| Name | Average Price | Average Sqft | Distance |
|---|---|---|---|
| Hebrides Drive | £ 215,000 | 0 | 0.00 KM |
| Ullapool Street | £ 0 | 0 | 0.00 KM |
| Alness Drive | £ 0 | 0 | 0.00 KM |
| Kirby Lane | £ 700,000 | 0 | 0.00 KM |
| Tay Road | £ 247,000 | 0 | 0.00 KM |
Nearby Transport
| Name | NLC | TLC | Distance |
|---|---|---|---|
| Narborough | 1881 | NBR | 5.84 KM |
| Leicester | 1947 | LEI | 9.90 KM |
| South Wigston | 1949 | SWS | 9.95 KM |
Nearby Listings
| Address | Price | Type | Score | Distance |
|---|---|---|---|---|
| Queens Drive, Leicester Forest East, LE3 | £ 274,950 | BUY | 7 / 10 | 0.00 KM |
| Queens Drive, Leicester Forest East, LE3 | £ 309,950 | BUY | 7 / 10 | 0.04 KM |
| Queens Drive, Leicester Forest East, Leicester, LE3 3JL | £ 275,000 | BUY | 7 / 10 | 0.07 KM |
| 33 Kings Drive, Leicester Forest East, Leicester, Leicestershire LE3 3JD | £ 199,000 | BUY | 6 / 10 | 0.11 KM |
| Acres Road, Leicester Forest East, LE3 | £ 300,000 | BUY | 6 / 10 | 0.13 KM |
Nearby Properties
| Address | Price | Distance |
|---|---|---|
| 52 Queens Drive | £ 215,000 | 0.08 KM |
| 20 Queens Drive | £ 179,950 | 0.08 KM |
| 10 Queens Drive | £ 174,950 | 0.08 KM |
| 4 Queens Drive | £ 326,500 | 0.08 KM |
| 44 Queens Drive | £ 160,000 | 0.08 KM |