WE
Braefield, Hemingford Abbots, Huntingdon, PE28
By WellingtonWise
£ 1,200,000
Reviews
4 out of 5 stars
WellingtonWise says ..
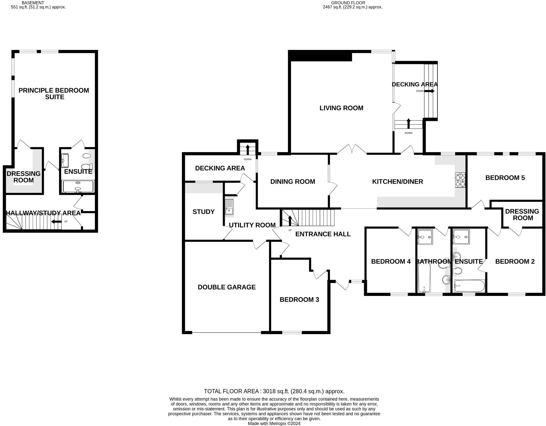
This immaculately presented, unique and high specification home is nestled towards the end of this private cul de sac of just three homes leading from Common Lane, Hemingford Abbots. With accommodation of over 3000 sqft, a warm spacious feel and a unique twist which has to experiences first hand!
Property Oracle says ..
Therefore, we give this property 8 / 10. *Disclaimer: This is our option and does constitute a recommendation or financial advice. Do your own research. *
- Price
- 8
- Condition
- 9
- Location
- 8
- Land
- 7
- Bedrooms
- 5
- Bathrooms
- 3
- Sqft (est)
- 3,018.00
The heatmap indicates the level of crime in the area. The color of the heatmap indicates the crime severity and recency.
Metrics Year-on-Year
- Average area value
- 265,066.00 £Increased by 22.85 %
- Est sale value
- 1,312,830.00 £Increased by 59.34 %
- Average area rental value
- 1,330.00 £/moIncreased by 2.94 %
- Est letting value
- 6,036.00 £/moIncreased by 100.00 %
- Est rental Yield
- 6.02 %Decreased by 16.27 %
- Crime Rate
- 12.00 %Unchanged by 0.00 %
from 215,770.00 £
from 823,914.00 £
from 1,292.00 £/mo
from 3,018.00 £/mo
from 7.19 %
from 12.00 %
Agent Activity
WellingtonWise created the listing.
Nearby Schools
| Name | Type | Ofsted | Distance |
|---|---|---|---|
| Houghton Primary School | Community School | Good | 1.13 KM |
| Wyton On The Hill Community Primary School | Community School | Good | 2.84 KM |
| Hemingford Grey Primary School | Community School | Good | 3.77 KM |
| Godmanchester Bridge Academy | Academy Sponsor Led | Good | 4.03 KM |
| Hartford Infant School | Academy Converter | 4.63 KM |
Images
Nearby Streets
| Name | Average Price | Average Sqft | Distance |
|---|---|---|---|
| Meadow Lane | £ 0 | 0 | 0.00 KM |
| Green Lane | £ 0 | 0 | 0.00 KM |
| Manor Lane | £ 0 | 0 | 0.00 KM |
| The Green | £ 0 | 0 | 0.00 KM |
| Manorside | £ 160,000 | 0 | 0.00 KM |
Nearby Transport
| Name | NLC | TLC | Distance |
|---|---|---|---|
| Huntingdon | 6108 | HUN | 7.00 KM |
Nearby Listings
| Address | Price | Type | Score | Distance |
|---|---|---|---|---|
| Braefield, Hemingford Abbots, Huntingdon, PE28 | £ 1,200,000 | BUY | 8 / 10 | 0.00 KM |
| Common Lane, Hemingford Abbots, Huntingdon, Cambridgeshire, PE28 | £ 1,250,000 | BUY | 7 / 10 | 0.31 KM |
| Common Lane, Hemingford Abbots, Huntingdon, Cambridgeshire, PE28 | £ 3,000,000 | BUY | 7 / 10 | 0.34 KM |
| 13 Common Lane, Hemingford Abbots, Huntingdon, Cambridgeshire, PE28 | £ 2,350,000 | BUY | 7 / 10 | 0.61 KM |
| Rectory Lane, Wyton, PE28 | £ 699,950 | BUY | 7 / 10 | 0.98 KM |
Nearby Properties
| Address | Price | Distance |
|---|---|---|
| 3 Abbots Close | £ 550,000 | 0.17 KM |
| Willows | £ 1,450,000 | 0.20 KM |
| The Stilts | £ 950,000 | 0.20 KM |
| Compton | £ 500,000 | 0.20 KM |
| Ash Meadow | £ 960,000 | 0.20 KM |