Barnard Marcus says ..
Located along a tree lined cul-de-sac road you will find this well-presented two/three bedroom end terraced home. The residence has been cared for by the current owner and offers bright and spacious accommodation throughout.
Property Oracle says ..
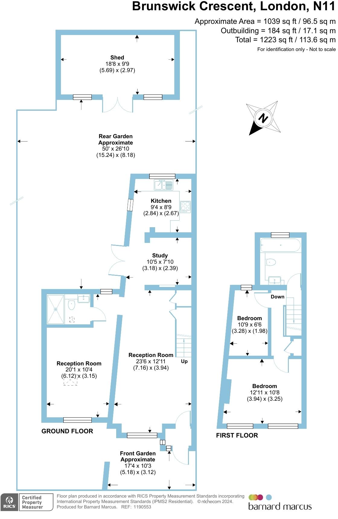
This three-bedroom, two-bathroom property located in Brunswick Crescent, Barnet, is presented as a well-maintained family home. The images showcase a modern and updated interior, with newly fitted kitchen and bathrooms. The property benefits from a good layout, seemingly with both a living area and separate dining area. The photographs suggest recently installed flooring and an updated interior design. A loft conversion shows extra living space, potentially a bonus room. However, a precise plot size is missing from the listing, which makes it difficult to assess the overall value and garden space accurately. The nearby railway station is a significant positive, offering convenient access to London. Proximity to schools rated ‘Good’ or ‘Outstanding’ adds to the appeal for families, particularly those looking for a property in a residential setting. The asking price of £550,000 sits within the range of other properties listed on Brunswick Crescent, although these lack comparable square footage making it hard to determine the price-per-square-foot, A lack of detailed information on plot size and the absence of a definitive price per square foot comparison, make a fully comprehensive market valuation analysis impossible with the information provided.
Therefore, we give this property 6 / 10. *Disclaimer: This is our option and does constitute a recommendation or financial advice. Do your own research. *
- Price
- 7
- Condition
- 8
- Location
- 7
- Land
- 4
- Bedrooms
- 3
- Bathrooms
- 2
- Sqft (est)
- 1,223.00
The heatmap indicates the level of crime in the area. The color of the heatmap indicates the crime severity and recency.
Metrics Year-on-Year
- Average area value
- 875,000.00 £Increased by 18.07 %
- Est sale value
- 967,393.00 £Increased by 32.50 %
- Average area rental value
- 2,050.00 £/moDecreased by 21.70 %
- Est letting value
- 1,223.00 £/moDecreased by 50.00 %
- Est rental Yield
- 2.81 %Decreased by 33.73 %
- Crime Rate
- 7.00 %Unchanged by 0.00 %
Agent Activity
Barnard Marcus marked this listing as sold.
Barnard Marcus created the listing.
Nearby Schools
| Name | Type | Ofsted | Distance |
|---|---|---|---|
| St Andrew The Apostle Greek Orthodox School | Free Schools | Good | 0.48 KM |
| Brunswick Park Primary And Nursery School | Community School | Good | 0.71 KM |
| Holly Park Primary School | Community School | Good | 0.81 KM |
| St Paul'S Cofe Primary School N11 | Voluntary Aided School | Good | 0.99 KM |
| St John'S Cofe Junior Mixed And Infant School | Voluntary Aided School | Outstanding | 1.10 KM |
Images
Nearby Streets
| Name | Average Price | Average Sqft | Distance |
|---|---|---|---|
| St Ninian's Court | £ 302,500 | 0 | 0.00 KM |
| Beaconsfield Close | £ 0 | 0 | 0.00 KM |
| Regal Drive | £ 0 | 0 | 0.00 KM |
| Cross Road | £ 0 | 0 | 0.00 KM |
| Marlborough Avenue | £ 0 | 0 | 0.00 KM |
Nearby Transport
| Name | NLC | TLC | Distance |
|---|---|---|---|
| New Southgate | 6019 | NSG | 1.27 KM |
| Oakleigh Park | 6020 | OKL | 2.46 KM |
| Bowes Park | 6027 | BOP | 3.65 KM |
| New Barnet | 6018 | NBA | 3.83 KM |
| Alexandra Palace | 6025 | AAP | 4.29 KM |
Nearby Listings
| Address | Price | Type | Score | Distance |
|---|---|---|---|---|
| Brunswick Grove, London | £ 550,000 | BUY | 7 / 10 | 0.04 KM |
| Brunswick Crescent, New Southgate, N11 | £ 525,000 | BUY | 7 / 10 | 0.05 KM |
| Brunswick Crescent, London, N11 | £ 550,000 | BUY | 7 / 10 | 0.05 KM |
| Brunswick Crescent, London | £ 585,000 | BUY | 8 / 10 | 0.06 KM |
| Brunswick Crescent, London, N11 | £ 500,000 | BUY | 6 / 10 | 0.06 KM |
Nearby Properties
| Address | Price | Distance |
|---|---|---|
| 76 Brunswick Crescent | £ 290,000 | 0.01 KM |
| 84 Brunswick Crescent | £ 420,000 | 0.01 KM |
| 40 Brunswick Crescent | £ 150,000 | 0.01 KM |
| 4 Brunswick Crescent | £ 280,000 | 0.01 KM |
| 90 Brunswick Crescent | £ 284,000 | 0.01 KM |