Sherwood Drive, QUARRY BANK, Brierley Hill.
By Taylors Estate Agents
£ 299,950
Reviews
3 out of 5 stars
Taylors Estate Agents says ..
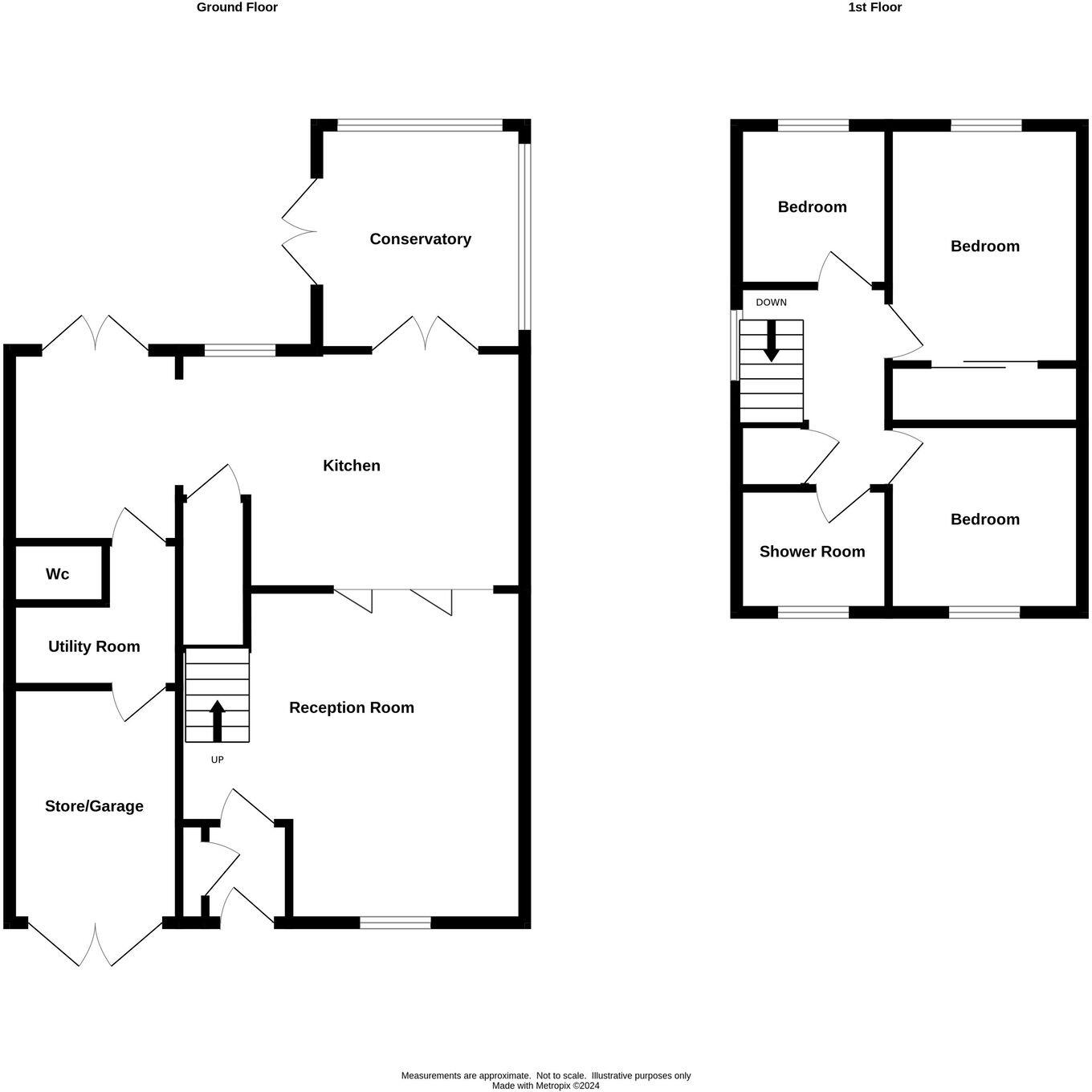
This EXPENSIVELY APPOINTED, BEAUTIFULLY PRESENTED & COMPREHENSIVELY REFURBISHED, THREE BEDROOM, LINK-DETACHED RESIDENCE enjoys a LOVELY POSITION within this SOUGHT AFTER RESIDENTIAL AREA of QUARRY BANK, which has Merry Hill Shopping Complex & Saltwells Nature Reserve within walking dis...
Property Oracle says ..
This three-bedroom semi-detached house in Quarry Bank, Brierley Hill, is presented in good condition, with a modern and well-maintained interior and exterior. The kitchen and bathroom have been clearly updated, offering contemporary finishes. The property benefits from a decent-sized tiered garden with artificial turf, providing sufficient outdoor space. The location in Sherwood Drive offers access to well-regarded primary schools and is within reach of several train stations, beneficial for commuters. While Brierley Hill isn’t a high-end area, the property itself seems to be priced competitively within its immediate neighborhood. The absence of a precise plot size in the initial data is a small drawback, and without more comprehensive square footage data on comparable sales, a fully precise evaluation of price per square foot is impossible. Overall, it appears to be a suitable family home for those seeking a comfortable and well-presented property in a convenient yet not overly central location.
Therefore, we give this property 7 / 10. *Disclaimer: This is our option and does constitute a recommendation or financial advice. Do your own research. *
- Price
- 7
- Condition
- 8
- Location
- 7
- Land
- 6
- Bedrooms
- 3
- Bathrooms
- 1
- Sqft (est)
- 1,000.00
The heatmap indicates the level of crime in the area. The color of the heatmap indicates the crime severity and recency.
Metrics Year-on-Year
- Average area value
- 225,619.00 £Decreased by 6.60 %
- Est sale value
- 217,000.00 £Decreased by 18.73 %
- Average area rental value
- 850.00 £/moDecreased by 4.92 %
- Est letting value
- 0.00 £/mo
- Est rental Yield
- 4.52 %Increased by 1.80 %
- Crime Rate
- 7.00 %Unchanged by 0.00 %
Agent Activity
Taylors Estate Agents created the listing.
Nearby Schools
| Name | Type | Ofsted | Distance |
|---|---|---|---|
| Quarry Bank Primary School | Community School | Good | 0.73 KM |
| Mount Pleasant Primary School | Community School | Good | 0.77 KM |
| Quarry Bank Children'S Centre | Children's Centre | 0.85 KM | |
| St Mary'S Rc Primary School | Academy Converter | Good | 1.03 KM |
| Thorns Primary School | Community School | Requires improvement | 1.39 KM |
Images
Nearby Streets
| Name | Average Price | Average Sqft | Distance |
|---|---|---|---|
| Sherwood Drive | £ 289,975 | 0 | 0.00 KM |
| Marion Close | £ 269,950 | 0 | 0.00 KM |
| Coppice Close | £ 350,000 | 0 | 0.00 KM |
| Sun Street | £ 0 | 0 | 0.00 KM |
| School Road | £ 124,750 | 0 | 0.00 KM |
Nearby Transport
| Name | NLC | TLC | Distance |
|---|---|---|---|
| Cradley Heath | 4639 | CRA | 1.91 KM |
| Lye (West Midlands) | 4640 | LYE | 2.14 KM |
| Stourbridge Junction | 4646 | SBJ | 4.45 KM |
| Stourbridge Town | 4643 | SBT | 4.58 KM |
| Old Hill | 4641 | OHL | 5.57 KM |
Nearby Listings
| Address | Price | Type | Score | Distance |
|---|---|---|---|---|
| Sherwood Drive, QUARRY BANK, Brierley Hill. | £ 299,950 | BUY | 7 / 10 | 0.00 KM |
| Sherwood Drive, Quarry Bank, Brierley Hill, DY5 1UW | £ 280,000 | BUY | 6 / 10 | 0.01 KM |
| Nottingham Way, Quarry Bank, Brierley Hill, DY5 1UH | £ 260,000 | BUY | 6 / 10 | 0.10 KM |
| Nottingham Way, BRIERLEY HILL, DY5 1UH | £ 210,000 | BUY | 7 / 10 | 0.10 KM |
| Ladywood Close, Brierley Hill, DY5 1DJ | £ 230,000 | BUY | 6 / 10 | 0.10 KM |
Nearby Properties
| Address | Price | Distance |
|---|---|---|
| 27 Sherwood Drive | £ 116,000 | 0.01 KM |
| 21 Sherwood Drive | £ 170,000 | 0.01 KM |
| 33 Sherwood Drive | £ 162,000 | 0.02 KM |
| 9 Sherwood Drive | £ 175,000 | 0.02 KM |
| 32 Ladywood Close | £ 132,000 | 0.09 KM |