& Co says ..
The Freedom Of Your Own Place - With Time To Enjoy It. This move-in ready end terrace is only a short walk from fast trains, trams, shops and the local park - giving you your own space to relax and time to enjoy the best of Croydon on your doorstep
Property Oracle says ..
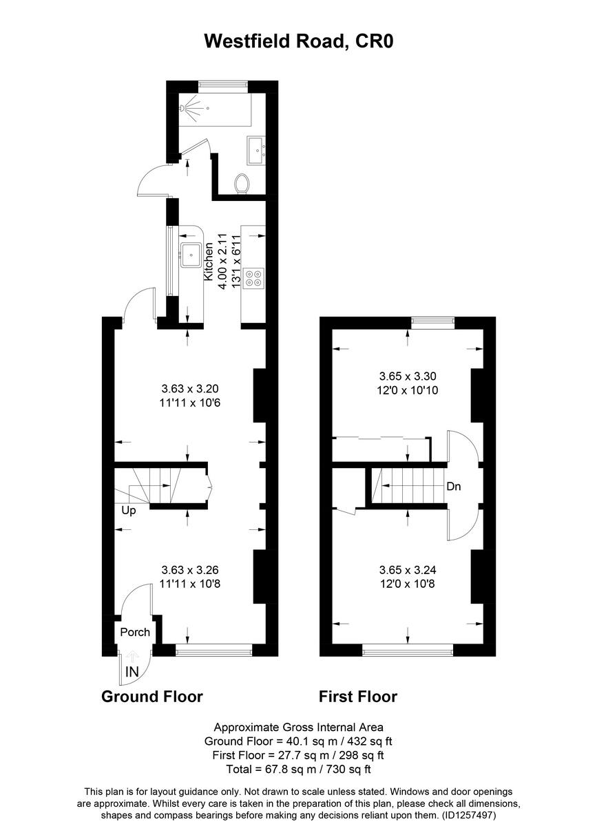
This end-of-terrace property in Croydon offers two bedrooms and one bathroom. The interior features a modern kitchen and bathroom, suggesting recent updates. The property benefits from a garden, adding to its appeal. Located in Waddon, it’s conveniently close to transportation options like West Croydon station and several schools. The listing price of £325,000 is slightly above the average price per square foot for the area, but seems reasonable considering the condition and location. Overall, this property presents a solid opportunity for potential buyers.
Therefore, we give this property 7 / 10. *Disclaimer: This is our option and does constitute a recommendation or financial advice. Do your own research. *
- Price
- 8
- Condition
- 7
- Location
- 7
- Land
- 6
- Bedrooms
- 2
- Bathrooms
- 1
- Sqft (est)
- 600.31
The heatmap indicates the level of crime in the area. The color of the heatmap indicates the crime severity and recency.
Metrics Year-on-Year
- Average area value
- 381,364.00 £Increased by 0.63 %
- Est sale value
- 316,963.68 £Increased by 11.63 %
- Average area rental value
- 1,567.00 £/moDecreased by 7.93 %
- Est letting value
- 1,200.62 £/moUnchanged by 0.00 %
- Est rental Yield
- 4.93 %Decreased by 8.53 %
- Crime Rate
- 4.00 %Unchanged by 0.00 %
Agent Activity
& Co created the listing.
Nearby Schools
| Name | Type | Ofsted | Distance |
|---|---|---|---|
| Al-Khair School Preparatory School | Other Independent School | Good | 0.20 KM |
| Old Palace Of John Whitgift School | Other Independent School | 0.46 KM | |
| Harris Invictus Academy Croydon | Free Schools | Outstanding | 0.68 KM |
| The Write Time | Other Independent Special School | Good | 0.68 KM |
| The Minster Junior School | Voluntary Aided School | Good | 0.72 KM |
Images
Nearby Streets
| Name | Average Price | Average Sqft | Distance |
|---|---|---|---|
| Hart Close | £ 0 | 0 | 0.00 KM |
| Reeves Corner | £ 0 | 0 | 0.00 KM |
| Ridge's Yard | £ 380,000 | 0 | 0.00 KM |
| Eland Place | £ 350,000 | 0 | 0.00 KM |
| Station Road | £ 0 | 0 | 0.00 KM |
Nearby Transport
| Name | NLC | TLC | Distance |
|---|---|---|---|
| West Croydon | 5411 | WCY | 0.66 KM |
| Waddon | 5392 | WDO | 1.39 KM |
| East Croydon | 5355 | ECR | 1.67 KM |
| South Croydon | 5410 | SCY | 2.14 KM |
| Thornton Heath | 5388 | TTH | 2.70 KM |
Nearby Listings
| Address | Price | Type | Score | Distance |
|---|---|---|---|---|
| Westfield Road, Croydon, CR0 | £ 325,000 | BUY | 7 / 10 | 0.00 KM |
| Cuthbert Road, Croydon, CR0 | £ 350,000 | BUY | 6 / 10 | 0.09 KM |
| Cornwall Road, Croydon, CR0 | £ 350,000 | BUY | 7 / 10 | 0.10 KM |
| Cuthbert Road, Croydon, Old Town, CR0 | £ 325,000 | BUY | 6 / 10 | 0.11 KM |
| St Edmunds Court, 26 Cornwall Road, Croydon, CR0 3RD | £ 125,000 | BUY | 6 / 10 | 0.11 KM |
Nearby Properties
| Address | Price | Distance |
|---|---|---|
| 2 Westfield Road | £ 190,000 | 0.07 KM |
| 25 Westfield Road | £ 162,000 | 0.07 KM |
| 34 Westfield Road | £ 165,000 | 0.07 KM |
| 1 Westfield Road | £ 185,500 | 0.07 KM |
| 24 Westfield Road | £ 360,000 | 0.07 KM |