Barnard Marcus says ..
This ground floor, generous conversion flat, situated in a prime area of Ealing, Grange Park Road offers the best of both worlds—peaceful surroundings with easy access to the vibrant amenities of Ealing Broadway, including top-rated schools, shops, local parks and excellent transport links.
Property Oracle says ..
Therefore, we give this property 8 / 10. *Disclaimer: This is our option and does constitute a recommendation or financial advice. Do your own research. *
- Price
- 8
- Condition
- 8
- Location
- 9
- Land
- 7
- Bedrooms
- 2
- Bathrooms
- 2
- Sqft (est)
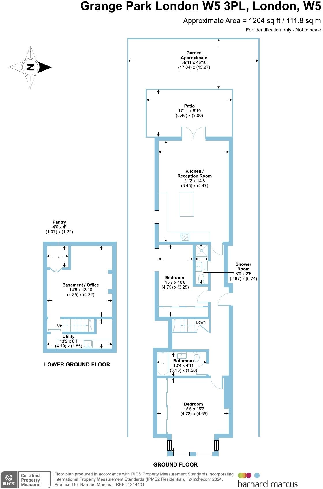
- 1,204.00
The heatmap indicates the level of crime in the area. The color of the heatmap indicates the crime severity and recency.
Metrics Year-on-Year
- Average area value
- 683,580.00 £Decreased by 10.48 %
- Est sale value
- 942,732.00 £Increased by 44.46 %
- Average area rental value
- 2,333.00 £/moIncreased by 12.11 %
- Est letting value
- 2,408.00 £/moIncreased by 100.00 %
- Est rental Yield
- 4.10 %Increased by 25.38 %
- Crime Rate
- 5.00 %Unchanged by 0.00 %
from 763,602.00 £
from 652,568.00 £
from 2,081.00 £/mo
from 1,204.00 £/mo
from 3.27 %
from 5.00 %
Agent Activity
Barnard Marcus created the listing.
Nearby Schools
| Name | Type | Ofsted | Distance |
|---|---|---|---|
| Blooming Tree Primary School | Other Independent Special School | 0.51 KM | |
| University Of West London | Higher Education Institutions | Good | 0.55 KM |
| La Chouette School | Other Independent School | Good | 0.62 KM |
| Grange Primary School | Community School | Good | 0.85 KM |
| Grange Children'S Centre | Children's Centre Linked Site | 0.91 KM |
Images
Nearby Streets
| Name | Average Price | Average Sqft | Distance |
|---|---|---|---|
| Liverpool Road | £ 700,000 | 0 | 0.00 KM |
| Grove Road | £ 450,000 | 0 | 0.00 KM |
| Centre Square | £ 0 | 0 | 0.00 KM |
| High Street | £ 0 | 0 | 0.00 KM |
| Hamilton Court | £ 650,000 | 0 | 0.00 KM |
Nearby Transport
| Name | NLC | TLC | Distance |
|---|---|---|---|
| Ealing Broadway | 3190 | EAL | 0.75 KM |
| West Ealing | 3188 | WEA | 2.40 KM |
| Kew Bridge | 5593 | KWB | 2.51 KM |
| Brentford | 5552 | BFD | 2.64 KM |
| Gunnersbury | 5588 | GUN | 3.23 KM |
Nearby Listings
| Address | Price | Type | Score | Distance |
|---|---|---|---|---|
| Grange Park, London | £ 500,000 | BUY | 7 / 10 | 0.00 KM |
| Grange Park, London | £ 825,000 | BUY | 8 / 10 | 0.00 KM |
| Grange Park, London | £ 275,000 | BUY | 6 / 10 | 0.02 KM |
| Grange Park, London | £ 440,000 | BUY | 6 / 10 | 0.02 KM |
| Grange Park, London | £ 369,950 | BUY | 6 / 10 | 0.02 KM |
Nearby Properties
| Address | Price | Distance |
|---|---|---|
| 13 Grange Park | £ 275,000 | 0.00 KM |
| 15 Grange Park | £ 440,000 | 0.00 KM |
| 3 Grange Park | £ 2,625,000 | 0.00 KM |
| 8 Grange Park | £ 490,000 | 0.00 KM |
| 1 Grange Park | £ 1,300,000 | 0.00 KM |